Objektnr: 1069851
Dieses großzügige Einfamilienhaus bietet auf ca. 200 m² Wohnfläche ein komfortables und vielseitiges Wohnkonzept für Paare und Familien. Die 1992 erbaute Immobilie wurde stets sorgsam instand gehalten und befindet sich in einem soliden Zustand. Durch die bereits freigelegten Wandflächen bietet Ihnen zudem die ideale Gelegenheit, die Räume ganz nach Ihren eigenen Vorstellungen zu gestalten.
Im Erdgeschoss erwarten Sie helle und großzügig geschnittene Räume, die durch eine Fußbodenheizung angenehm temperiert werden. Das Wohnzimmer mit Kaminofen schafft eine behagliche Atmosphäre und lädt zu entspannten Stunden ein. Ergänzt wird das Raumangebot durch eine funktionale Einbauküche sowie ein Gäste-WC.
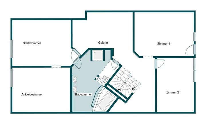
Im Obergeschoss stehen drei Schlafzimmer zur Verfügung, ideal für Familien oder Gäste. Ein Schlafzimmer verfügt über ein angrenzendes Ankleidezimmer, zwei weitere bieten direkten Zugang zur Loggia. Ergänzt wird das Geschoss durch ein Badezimmer mit Badewanne, Dusche und ebenfalls Fußbodenheizung, das Komfort und Praktikabilität vereint.
Der Vollkeller bietet zusätzlichen Platz für Hauswirtschaft, Hobby oder Lagerung und erweitert die Nutzungsmöglichkeiten des Hauses erheblich. Abgerundet wird das Wohnangebot durch zwei Carportstellplätze sowie eine Garage, die für ausreichend Stellfläche sorgen.
Die Immobilie überzeugt insgesamt durch eine gelungene Kombination aus großzügigem Raumangebot und durchdachtem Grundriss – ideal für alle, die komfortabel und flexibel wohnen möchten.
Stilvoll & großzügig! Behagliches Einfamilienhaus mit Kamin u. Loggia in beliebter, ruhiger Wohnlage
38477 Jembke
Die vollständige Adresse der Immobilie erhalten Sie vom Anbieter.
Auf Karte anzeigen
Die vollständige Adresse der Immobilie erhalten Sie vom Anbieter.
Finanzierungszertifikat
In nur zwei Minuten zu Ihrem persönlichen Finanzierungszertifkat.
Infos
| Haustyp | Einfamilienhaus |
|---|---|
| Etagenzahl | 1 |
| Wohnfläche ca. | 200 m2 |
| Grundstücksfläche | 917,15 m2 |
| Bezugsfrei ab | ab sofort |
| Zimmer | 7 |
| Schlafzimmer | 4 |
| Badezimmer | 1 |
| Anzahl Garage/Stellplatz | 4 |
Kosten
| Kaufpreis |
398.900 € |
|---|---|
| Provision |
3,57 % Die Provision i.H.v. 3,57 % inkl. MwSt. ist mit Kaufvertragsbeurkundung fällig, sofern der Verkaufspreis über 83.000,00 € liegt. Liegt der Verkaufspreis dagegen bei/unter 83.000,00 €, ist die fest vereinbarte Mindestprovision i.H.v. mind. 5.950,00 € inkl. MwSt. mit Kaufvertragsbeurkundung fällig. Die Mindestprovision fällt insg. nur einmal an, wodurch Verkäufer und Käufer die Mindestprovision dann jeweils mit 2.975,00 € inkl. MwSt. tragen. |
Finanzierungsrechner:
Kaufpreis:
600.000 €
Eigenkapital:
600.000 €
Monatliche Rate
0 €
Effektiver Jahreszins
0 %
Sollzinsbindung
10 Jahre
Bausubstanz & Energieausweis
| Baujahr | 1992 |
|---|---|
| Bauphase | Haus fertig gestellt |
| Objektzustand | Renovierungsbedürftig |
| Qualität der Austattung | Normal |
| Heizungsart | Zentralheizung |
| Wesentliche Energieträger | Öl |
| Energieausweis | liegt vor |
| Energieausweistyp | Bedarfsausweis |
| Energieverbrauchskennwert | 178,5 kWh/(m²*a) |
| Energieeffizienzklasse | F |
178,5
kWh/(m²*a)
Energieeffizienzklasse F
- A+
- A
- B
- C
- D
- E
- F
- G
- H
- 0
- 25
- 50
- 75
- 100
- 125
- 150
- 175
- 200
- 225
- >250
Beschreibung des Objekts
Ausstattung
+ In familienfreundlicher Umgebung von Jembke, ruhig und sicher in einer Nebenstraße
+ Der teils sichtgeschützte Garten auf ca. 917 m² Grund lädt zum Verweilen ein - eine Terrasse und eine Loggia bereichern das Erlebnis
+ Die Immobilie präsentiert sich in einem gepflegten, renovierungsbedürftigem Zustand
+ Solide ausgestattetes Haus mit einer Einbauküche, einem Kaminofen sowie einem Glasfaseranschluss
+ Objekt bietet Staufläche im Keller sowie Platz für Pkw dank einer Garage, 2 Carportstellplätze und 2 Freiplätzen
Lage
Lage: Attraktive Lage in Jembke mit guten Voraussetzungen zur Nähe an Wolfsburg
Bildung und Betreuung: Zu Fuß zu Kindergarten und Schule in max. 800 m Entfernung
Nahversorgung: Spontan einkaufen dank Supermarkt, Apotheke und Bankfiliale in max. 800 m Entfernung
Anbindung: Bushaltestelle, Bahnhof und Autobahn gut erreichbar
Sonstige Angaben
Vereinbaren Sie noch heute einen Besichtigungstermin!
_____________________________________________________
Alle Angaben sind ohne Gewähr und basieren ausschließlich auf Informationen, die uns von unserem Auftraggeber zur Verfügung gestellt wurden. Wir übernehmen keine Gewähr für die Vollständigkeit, Richtigkeit und Aktualität der Angaben.
Grundriss
Garage
>
>
Grundriss Skizze EG
>
>
Grundriss Skizze 1.OG
>
>
Grundriss Skizze UG
>
>
Adresse
38477 Jembke
Interessante Orte
Preis- und Lageinformationen
Preistrend für Bestandsimmobilien in Jembke