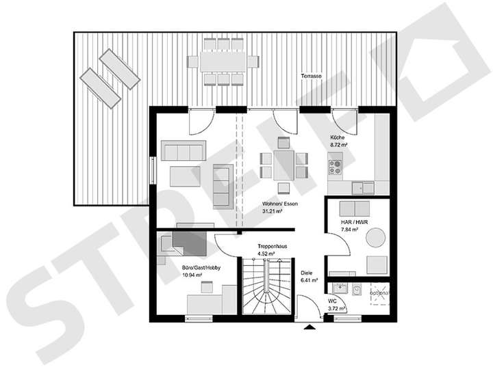
Erleben Sie die Freiheit, Ihr individuelles Traumhaus mit STREIF zu gestalten. Dieses projektiere Einfamilienhaus in Hohenhameln in Haber bietet Ihnen auf 142,64 m² Wohnfläche und einem großzügigen Grundstück von 732 m² ausreichend Platz für Ihre Wohnträume. Mit 5 Zimmern, davon 3 Schlafzimmern, sowie 2 Etagen bietet dieses Haus viel Raum für Familienleben und persönliche Rückzugsorte. Das durchdachte Raumkonzept umfasst ein elegantes Badezimmer mit Dusche, Wanne und Fenster sowie ein zusätzliches Gäste-WC. Genießen Sie die Vorzüge einer energieeffizienten KFW40 Bauweise und gestalten Sie Ihr Zuhause nach Ihren Wünschen - vom Dach bis zum Bodenbelag.
**Ein beliebter Ort zum Wachsen und Wohlfühlen mit Klinkeraktion!**
31249 Hohenhameln
Die vollständige Adresse der Immobilie erhalten Sie vom Anbieter.
Auf Karte anzeigen
Die vollständige Adresse der Immobilie erhalten Sie vom Anbieter.
Finanzierungszertifikat
In nur zwei Minuten zu Ihrem persönlichen Finanzierungszertifkat.
Infos
| Haustyp | Einfamilienhaus |
|---|---|
| Etagenzahl | 2 |
| Wohnfläche ca. | 142 m2 |
| Nutzfläche | 25 m2 |
| Grundstücksfläche | 732 m2 |
| Bezugsfrei ab | 2026 |
| Zimmer | 5 |
| Schlafzimmer | 3 |
| Badezimmer | 1 |
Kosten
| Kaufpreis |
542.666 € |
|---|---|
| Provision | Nein |
Finanzierungsrechner:
Kaufpreis:
600.000 €
Eigenkapital:
600.000 €
Monatliche Rate
0 €
Effektiver Jahreszins
0 %
Sollzinsbindung
10 Jahre
Bausubstanz & Energieausweis
| Baujahr | 2026 |
|---|---|
| Bauphase | Haus in Planung (projektiert) |
| Qualität der Austattung | Gehoben |
| Heizungsart | Wärmepumpe |
| Energieausweis | liegt zur Besichtigung vor |
Beschreibung des Objekts
Ausstattung
Freuen Sie sich auf eine gehobene Ausstattung, die keine Wünsche offen lässt. Die Kombination aus hochwertigen Fliesen und individuell wählbaren Bodenbelägen verleiht Ihrem neuen Zuhause eine exklusive Note. Die Wärmepumpe als Befeuerungsart garantiert umweltfreundliches und kostengünstiges Heizen. Im Badezimmer erwartet Sie pure Entspannung: Mit einer modernen Dusche, einer komfortablen Wanne und Tageslicht durch das Fenster wird es zur Wohlfühloase. Zusätzlicher Komfort entsteht durch das separate Gäste-WC.
Lage
Die Lage in Hohenhameln in Haber ist ideal für Familien und Naturliebhaber gleichermaßen. Das Wohngebiet ist ruhig gelegen und dennoch bestens angebunden: In der Nähe finden Sie Busverbindungen, Einkaufsmöglichkeiten sowie Bildungseinrichtungen wie Grundschule, Kindergarten und weiterführende Schule. Auch Spielplätze sind schnell erreichbar, was besonders Familien zugutekommt.
Sonstige Angaben
Achtung: Klinkeraktion ist verlängert!
STREIF Haus - der Pionier der deutschen Fertighausbranche
Die langjährige Firmentradition des Unternehmens reicht bis in das Jahr 1929 zurück. In den 50er und 60er Jahren wurde in Deutschland schnell und viel Wohnraum für Familien benötigt, seitdem konzentrierte sich das Unternehmen auf die Entwicklung und Produktion von Fertighaustypen, die im Werk in großen Stückzahlen hergestellt werden konnten. So kann das Unternehmen auf 90.000 gebaute Hausobjekte zurückblicken und sich zu Recht als Pionier der deutschen Fertighausbranche bezeichnen.
Die neuen Energiesparhäuser - So baut man heute.
Unser Anspruch ist es, in enger Partnerschaft mit unseren Kunden langlebige Häuser zu bauen, mit einer hohen architektonischen Qualität, individuell geplant und dabei energieeffizient und ressourcenschonend. Jedes STREIF-Haus ist einzigartig und wird speziell für jeden Kunden "maßgeschneidert" und gebaut. Passend zu den persönlichen Wünschen, dem vorgegebenen Budget und dem vorhandenen Grundstück planen und bauen wir jedes Haus mit viel Liebe zum Detail.
Grundriss
110143-8783-4-g
>
>
110144-8783-3-g
>
>
Adresse
31249 Hohenhameln
Interessante Orte
Preis- und Lageinformationen
Preistrend für Bestandsimmobilien in Hohenhameln