Mitten im Herzen von Frankfurt-Fechenheim, direkt an der belebten Einkaufsstraße, wartet dieses charmante Wohn- und Geschäftshaus auf Sie. Das genaue Baujahr des Fachwerkhauses ist zwar unbekannt, doch sein historischer Charakter und die erstklassige Lage machen es zu einer einmaligen Gelegenheit. Zum Verkauf steht der rechte Teil des aneinander gebauten Gebäudekomplexes mit gemeinsamer Einfahrt. Auf einem Grundstück von 165 m² erstrecken sich ca. 286 m² Gesamtfläche, die sich auf ein Ladengeschäft im Erdgeschoss sowie drei vermietete Wohnungen in den oberen Etagen verteilen.
Das Erdgeschoss ist derzeit an einen Friseursalon vermietet und sorgt für eine stabile Einnahmequelle. Auch die drei Wohnungen sind vollständig vermietet, sodass Sie hier von einer attraktiven Kapitalanlage profitieren. Die monatliche Nettomiete beträgt insgesamt 3.470 € und bietet Ihnen eine solide Rendite in einer gefragten Lage.
Dank der zentralen Position mitten in der Einkaufsstraße profitieren sowohl Ihre Mieter als auch potenzielle Gewerbetreibende von einer hohen Fußgängerfrequenz und einer hervorragenden Anbindung an den öffentlichen Nahverkehr. Fechenheim bietet eine perfekte Kombination aus urbanem Leben und gewachsener Nachbarschaft, die das Objekt besonders attraktiv macht.
Wenn Sie auf der Suche nach einer lukrativen Investitionsmöglichkeit in Frankfurt sind, dann lassen Sie sich diese Chance nicht entgehen. Vereinbaren Sie noch heute einen Besichtigungstermin und sichern Sie sich dieses besondere Wohn- und Geschäftshaus!
(Bilder von Wohnungen und Ladenfläche auf Anfrage)
Modernisiertes 6-Zimmer Haus in Frankfurt-Fechenheim
Alt-Fechenheim 116,
60386 Frankfurt am Main
Auf Karte anzeigen
Finanzierungszertifikat
In nur zwei Minuten zu Ihrem persönlichen Finanzierungszertifkat.
Infos
| Haustyp | Mehrfamilienhaus |
|---|---|
| Etagenzahl | 3 |
| Wohnfläche ca. | 200 m2 |
| Nutzfläche | 73 m2 |
| Grundstücksfläche | 165 m2 |
| Bezugsfrei ab | 12.1.2026 |
| Zimmer | 6 |
| Schlafzimmer | 4 |
| Badezimmer | 3 |
Kosten
| Kaufpreis |
785.000 € |
|---|---|
| Provision | Nein |
| Mieteinnahmen | 3.470 € |
Finanzierungsrechner:
Kaufpreis:
600.000 €
Eigenkapital:
600.000 €
Monatliche Rate
0 €
Effektiver Jahreszins
0 %
Sollzinsbindung
10 Jahre
Bausubstanz & Energieausweis
| Baujahr | unbekannt |
|---|---|
| Letzte Sanierung | 2025 |
| Bauphase | Haus fertig gestellt |
| Objektzustand | Modernisiert |
| Qualität der Austattung | Normal |
| Heizungsart | Gas-Heizung |
| Wesentliche Energieträger | Gas |
Beschreibung des Objekts
Lage
Ursprünglich war der Ort ein kleines Fischerdorf im Mainbogen, das 1928 nach Frankfurt eingemeindet wurde. Neben dem dörflichen Ortskern im Süden sind große Teile von Industrieanlagen und Gewerbegebieten im Nordwesten geprägt.
Die Straßenbahnlinien 11 und 12 bedienen diesen Stadtteil. Zusätzlich ist Fechenheim über den Bahnhof Frankfurt-Mainkur an das Regionalbahnnetz angebunden. Die Hanauer Landstraße verbindet Fechenheim über das Ostend mit der Innenstadt. Über sie ist Fechenheim an die A66 und A661 angebunden.
Für „den täglichen Bedarf“ stehen Ihnen Supermärkte, Apotheken und Restaurants zur Verfügung. Das Einzelhandelsangebot reicht von Bekleidung über Raumbedarf bis hin zu Angeboten aus dem regionalen Anbau.
Das schulische Angebot bietet eine verbundene Grund-, Haupt- und Realschule sowie eine Gesamtschule. Vielfältige Kinderbetreuungsmöglichkeiten können genutzt werden.
Für Ihre Freizeitgestaltung können Sie wählen zwischen den vielfältigen Sport-, Kunst- und Kulturvereinen und dem riesigen Kulturangebot Frankfurts.
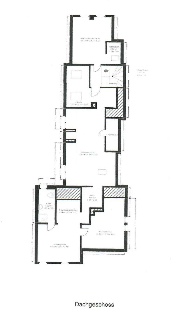
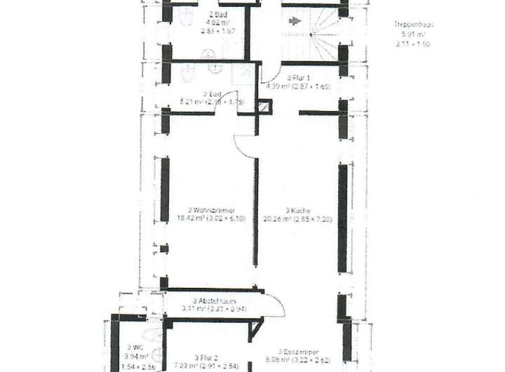
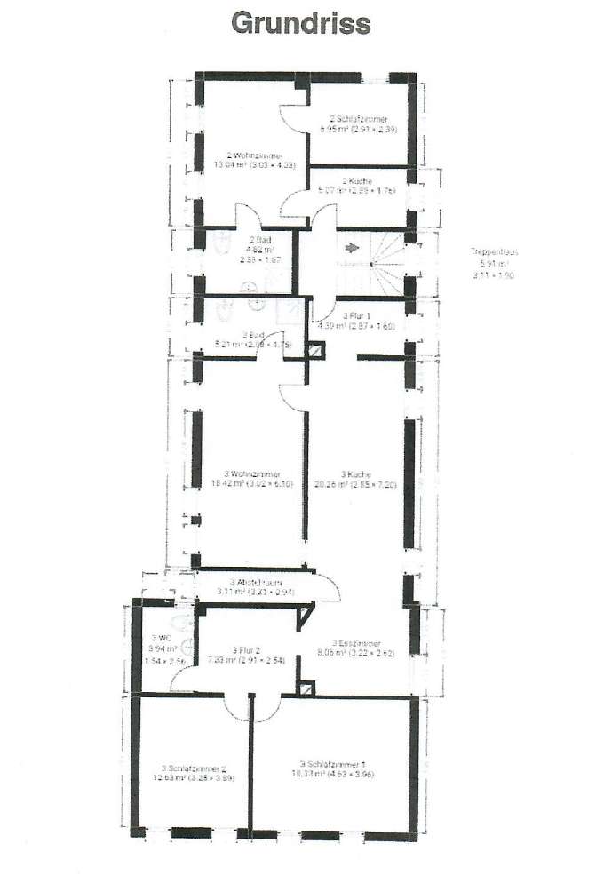
Grundriss
EG
>
>
OG
>
>
DG
>
>
Adresse
Alt-Fechenheim 116, 60386 Frankfurt am Main
Interessante Orte
Preis- und Lageinformationen
Preistrend für Bestandsimmobilien in Fechenheim