Das rechteckig geschnittene Grundstück befindet sich in einer sehr ruhigen und begehrten Wohnlage in Germering-Harthaus. Durch die Südwest-Ausrichtung ist das Grundstück sehr sonnig und hell.
Die Nachbarschaft im Allgemeinen ist geprägt von Einfamilien-, Doppel- und Reihenhäusern; in unmittelbarer Nachbarschaft entstanden hochwertige Neubauten.
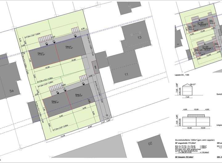
Auf dem Grundstück befinden sich aktuell ein Wohnhaus mit Nebengebäude, die zum Abriss bestimmt sind. Der Abriss ist vom Erwerber zu veranlassen. Danach kann das Grundstück neu bebaut werden. Die Neubebauung bietet im Rahmen der bauordnungsrechtlichen Vorschriften große Flexibilität. Da das Grundstück teilbar ist, ist auch eine Neubebauung mit Baupartner(n) möglich (z. B. Doppelhaus-Bebauung).
Die konkrete Bebauung kann der spätere Eigentümer direkt mit dem Bauamt Germering klären. Aufgrund der bereits gegebenen nachbarschaftlichen Bebauung ist laut Bauamt eine GFZ von 0,59 möglich.
Unverbindliches Beispiel der Bebaubarkeit mit Tiefgarage siehe Fotos.
Großes Baugrundstück in sehr guter Lage in Germering-Harthaus (bei München / provisionsfrei)
82110 Germering
Die vollständige Adresse der Immobilie erhalten Sie vom Anbieter.
Auf Karte anzeigen
Die vollständige Adresse der Immobilie erhalten Sie vom Anbieter.
Finanzierungszertifikat
In nur zwei Minuten zu Ihrem persönlichen Finanzierungszertifkat.
Infos
| Vermarktungsart | Kaufen |
|---|---|
| Grundstücksfläche | 1.206 m2 |
| Erschließung | Erschlossen |
| Verfügbar ab | nach Absprache |
Kosten
| Miete pro Jahr |
1.989.900 € |
|---|---|
| Provision | Nein |
Finanzierungsrechner:
Kaufpreis:
600.000 €
Eigenkapital:
600.000 €
Monatliche Rate
0 €
Effektiver Jahreszins
0 %
Sollzinsbindung
10 Jahre
Beschreibung des Objekts
Lage
Das Grundstück befindet sich im südöstlichen Bereich der Großen Kreisstadt Germering (Landkreis Fürstenfeldbruck) im Ortsteil Harthaus, ca. 1,5 Kilometer östlich vom Stadtzentrum von Germering und ca. 15 Kilometer westlich vom Stadtzentrum der Landeshauptstadt München entfernt. Der Ortsteil Harthaus grenzt an ein Waldstück, welches vom Grundstück aus in wenigen Minuten zu Fuß zu erreichen ist.
Germering selbst bietet ein hohes Maß an Wohn- und Lebensqualität, ergänzt auch durch das nahe gelegene Fünfseenland.
Das Verkehrsaufkommen in der Straße, über die das Grundstück erschlossen ist, ist gering, da diese im Wesentlichen nur von Anliegern genutzt wird. Durch die rund 750 Meter entfernte S-Bahn-Haltestelle "Harthaus" (MVV-Zone M) mit Anbindung an die Bahnlinie S8 (die S8 fährt auch direkt zum Flughafen München) besteht ein sehr guter Anschluss an den öffentlichen Personennahverkehr. Das Stadtzentrum der Landeshauptstadt München ist mit öffentlichen Verkehrsmitteln in ca. 25 Minuten zu erreichen.
Die Anschlussstelle "München-Freiham-Mitte" der Autobahn A 99 ist nach ca. 1,8 Kilometer nordöstlich zu erreichen. Die Anschlussstelle "Germering-Süd" der Autobahn A 96 ist ca. 1,6 Kilometer südlich entfernt. Somit kann das Zentrum der Landeshauptstadt München auch per Kraftfahrzeug schnell erreicht werden.
Eine Nahversorgung mit Waren des täglichen Bedarfs ist im Umkreis des Grundstückes von ca. einem Kilometer (fußläufig) gewährleistet. Ein darüberhinausgehendes Warenangebot ist im weiteren Stadtgebiet von Germering vorzufinden.
Kinderbetreuungseinrichtungen sowie Grund- und sämtliche weiterführende Schulen sind ebenfalls im Stadtgebiet vorhanden. Die sehr gute Infrastruktur in Germering umfasst auch eine Vielzahl von Ärzten, Apotheken, Kulturangeboten sowie Sport- und Freizeitmöglichkeiten.
Sonstige Angaben
Bitte kontaktieren Sie uns für weitere Informationen und zur Vereinbarung eines Besichtigungstermins.
ohne-makler (OM) ist weder Anbieter noch Vermittler der Immobilie. OM betreibt eine Plattform für Immobilieneigentümer, die unter anderem die gleichzeitige Veröffentlichung einzelner Inserate auf mehreren Immobilienportalen ermöglicht. Die Inhalte dieser Inserate werden ausschließlich von Dritten verantwortet. Für die Richtigkeit, Vollständigkeit oder Rechtmäßigkeit der Angaben übernimmt OM keine Haftung. Hinweise auf mögliche Rechtsverstöße können jederzeit gemeldet werden und werden nach Prüfung umgehend bearbeitet.