Dieses ca. 568 m² große Baugrundstück befindet sich in begehrter Lage von Königswinter-Niederdollendorf und bietet eine seltene Kombination aus sofortiger Bebaubarkeit, bereits genehmigtem Bauvorhaben sowie zusätzlicher architektonischer Entwicklungsperspektive.
Für das Grundstück liegt nach Angaben des Eigentümers eine rechtskräftige Baugenehmigung für die Errichtung eines Zweifamilienhauses vor. Damit besteht die Möglichkeit, das Grundstück kurzfristig und ohne zeitintensive Neuplanung zu bebauen.
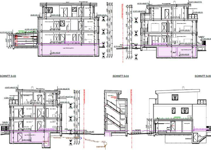
Darüber hinaus wurden durch den beauftragten Architekten bereits vollständige Planungsunterlagen für ein Mehrfamilienhaus mit bis zu vier Wohneinheiten ausgearbeitet. Diese Planungen sind derzeit noch nicht eingereicht, können jedoch vom Käufer übernommen und im Rahmen eines erneuten Genehmigungsverfahrens bei der zuständigen Bauaufsichtsbehörde eingereicht werden.
Die Anpassung, Weiterentwicklung sowie Einreichung der Unterlagen kann auf Wunsch durch den derzeitigen Entwurfsverfasser erfolgen. Eine Verpflichtung zur Beauftragung besteht nicht.
Das Grundstück ist derzeit unbebaut und mit niedriger Bepflanzung versehen, sodass ein zügiger Baubeginn ohne Abrissmaßnahmen möglich ist.
Diese Konstellation eröffnet vielseitige Möglichkeiten:
Eigennutzung mit zusätzlicher Vermietung
Mehrgenerationenwohnen
Kapitalanlage mit mehreren Wohneinheiten
Schrittweise Entwicklung vom Zweifamilien- zum Mehrfamilienhaus
Das Grundstück befindet sich in einem erschlossenen Wohngebiet. Die Anbindung an öffentliche Verkehrs-, Ver- und Entsorgungsnetze ist gegeben.
Das Grundstück liegt in einem Wasserschutzgebiet, wodurch besondere bauliche und technische Anforderungen gelten können. Diese sind vom Käufer eigenständig zu prüfen und im Rahmen der Bauausführung zu berücksichtigen.
Genehmigtes Baugrundstück mit Erweiterungsperspektive * attraktive Wohnlage nahe Rhein
Longenburger Straße 38,
53639 Königswinter
Auf Karte anzeigen
Finanzierungszertifikat
In nur zwei Minuten zu Ihrem persönlichen Finanzierungszertifkat.
Infos
| Vermarktungsart | Kaufen |
|---|---|
| Grundstücksfläche | 568 m2 |
| Bebaubar nach | Bebauungsplan |
| Verfügbar ab | Sofort bzw. nach Absprache |
Kosten
| Miete pro Jahr |
412.000 € |
|---|---|
| Provision |
1,785 % inkl. 19 % Ust. Im Falle des Abschlusses eines Kaufvertrages für das oben genannte Objekt fällt eine Käuferprovision in Höhe von 1,785 % des notariell beurkundeten Kaufpreises an, inklusive der gesetzlichen Mehrwertsteuer von 19 %. Diese wird nach der Beurkundung dem Käufer in Rechnung gestellt. Der Immobilienmakler hat einen provisionspflichtigen Maklervertrag mit dem Verkäufer abgeschlossen. |
Finanzierungsrechner:
Kaufpreis:
600.000 €
Eigenkapital:
600.000 €
Monatliche Rate
0 €
Effektiver Jahreszins
0 %
Sollzinsbindung
10 Jahre
Beschreibung des Objekts
Lage
Das Grundstück liegt an der Longenburger Straße in Königswinter-Niederdollendorf, nur wenige Gehminuten vom Rheinufer entfernt. Diese Lage vereint naturnahes Wohnen mit einer sehr guten infrastrukturellen Anbindung.
Durch die Nähe zur B42 sind Bonn, Bad Honnef sowie der Kölner Raum schnell erreichbar. Einkaufsmöglichkeiten, Schulen, Kindergärten, medizinische Versorgung sowie Freizeit- und Naherholungsangebote befinden sich im näheren Umfeld.
Die Umgebung ist geprägt von einer gewachsenen Wohnbebauung und erfreut sich seit Jahren einer konstant hohen Nachfrage, sowohl bei Eigennutzern als auch bei Mietinteressenten.
Sonstige Angaben
Für private Bauherren
Sicherer Einstieg durch bestehende Baugenehmigung
Möglichkeit, Wohnen und Vermögensaufbau zu kombinieren
Attraktive Perspektive durch zweite bzw. mehrere Wohneinheiten
Für Investoren
Genehmigte Basisbebauung
Erweiterungspotenzial durch vorhandene Mehrfamilienhausplanung
Gefragte Lage mit guter Vermietbarkeit
Alle Angaben in diesem Exposé beruhen auf Informationen des Eigentümers, vorliegenden Unterlagen sowie Aussagen Dritter. Sie dienen ausschließlich einer ersten Orientierung und stellen keine zugesicherten Eigenschaften im Sinne des Kaufrechts dar.
Der Makler übernimmt keine Haftung für die Richtigkeit, Vollständigkeit oder Aktualität der Angaben. Maßgeblich sind ausschließlich die im notariellen Kaufvertrag getroffenen Vereinbarungen sowie die jeweils erteilten behördlichen Genehmigungen. Änderungen, Irrtümer und Zwischenverkauf bleiben vorbehalten.
Wir freuen uns auf Ihre Anfragen und stehen Ihnen jederzeit
gerne zur Verfügung, um all Ihre Fragen zu diesem Objekt zu
beantworten.