Sonniges Grundstück mit Altbestand und mit altem Baumbestand in Gauting Hubertusstraße /Grundstück an der Bahn gelegen.
Das Haus ist geräumt eine Neubebauung kann zeitnah erfolgen.
Bebauungsplan vorhanden. Das Haus zu erhalten ist denkbar aber schwierig - aufgrund des Zustands.
Anschauen lohnt sich! Eine Besichtigung ist kurzfristig möglich ! Telefon 0163 - 738 71 71 Herr Müller - Einfach anrufen. Täglich erreichbar ab 9Uhr auch am Wochenende.
Bitte besichtigen Sie das Haus / Grundstück nur mit mir bei einem persönlichen Termin, um die
Privatsphäre der Eigentümer des bewohnten vorderen Hauses zu wahren!
Vielen Dank für Ihr Verständnis!
Hammergrundstück - über die Einfahrt / Zuweg (muss noch auf die Nordseite gelegt werden) erreichen Sie den Bauplatz mit schönem altem Baumbestand. Auf dem vorderen Teil des Grundstücks zur Straße gibt es schon ein Haus, im hinteren Teil steht ein Altbestand mit Garage. Bebauungsplan und baurechtliche Grundlagen erhalten Sie nach Anfrage.
Der Altbestand ist BJ 1969 wurde bis 2019 bewohnt.
Um Ihnen die Unterlagen zukommen zu lassen geben Sie bitte Ihre vollständige Adresse Telefonnummer und auch Ihre E-Mail-Adresse an.. sie erhalten dann ein ausführliches Exposé.
Sonniges Grundstück gegen Gebot * Baurecht EFH 2 Vollgeschosse
82131 Gauting
Die vollständige Adresse der Immobilie erhalten Sie vom Anbieter.
Auf Karte anzeigen
Die vollständige Adresse der Immobilie erhalten Sie vom Anbieter.
Finanzierungszertifikat
In nur zwei Minuten zu Ihrem persönlichen Finanzierungszertifkat.
Infos
| Vermarktungsart | Kaufen |
|---|---|
| Grundstücksfläche | 624 m2 |
| Bebaubar nach | Bebauungsplan |
| Verfügbar ab | sofort |
Kosten
| Miete pro Jahr |
0 € |
|---|---|
| Provision |
3,57% inkl. MwSt. 3,57% inkl.19% vom Käufer zu zahlen. |
Finanzierungsrechner:
Kaufpreis:
600.000 €
Eigenkapital:
600.000 €
Monatliche Rate
0 €
Effektiver Jahreszins
0 %
Sollzinsbindung
10 Jahre
Beschreibung des Objekts
Lage
Familienfreundliches Wohngebiet - Hubertusstraße / Anliegerstraße
Grundstück an der Bahn gelegen.
Hubertusstraße
82131 Gauting
Willkommen in Gauting, Willkommen im 5 - Seenland
www.gauting.de
Alles Fußläufig
2 min Bus
5 min S-Bahn S6 Bahnhof Gauting
Schulen in Fußnähe 1000m
Einkaufsmöglichkeiten EDEKA, Drogerie usw. im Einkaufzentrum beim Bahnhof 7min Fußweg .
Ärztehaus, Apotheke, Post , neues Kino ...
10 min zum Starnbergersee
10 min Weßlinger See
15 min Pilsensee und Wörthsee
20 min nach Herrsching zum Ammersee
Weitere Dokumente
g_131_1_komplettg_131_komplett
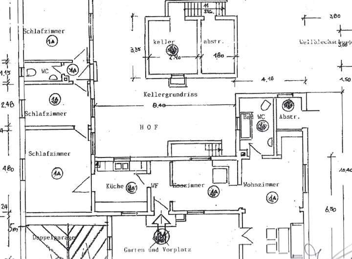
Grundriss
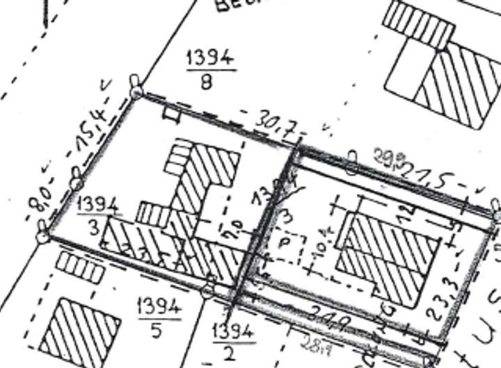
Lageplan EG u UG
>
>
Mix pics23
>
>