In bester Lage von Springe, zentral zwischen Bahnhof und Fußgängerzone, entsteht ein exklusives Neubauprojekt, das Wohnkomfort und ideale Anbindung in einem beliebten Umfeld vereint. Springe ist ein begehrter Wohnort in der Region Hannover, bekannt für seine hervorragende Verkehrsanbindung sowohl an den öffentlichen Nahverkehr als auch an das Autobahnnetz über die nahe gelegenen Bundesstraßen, die Anschluss an die A2 und A7 bieten. Die Nähe zum Naturgebiet Deister lädt zusätzlich zu Freizeit und Erholung ein.
Auf einem erschlossenen Grundstück von 1.772 m² entsteht ein modernes Mehrfamilienhaus mit einer gültigen Baugenehmigung und einer durchdachten Bauplanung. Die Teilung nach WEG ist bereits abgeschlossen, was den Kauf der einzelnen Wohneinheiten für Selbstnutzer, sowie für private und institutionelle Investoren attraktiv gestaltet. Geplant sind 20 großzügig geschnittene Wohneinheiten mit 2,5 bis 3 Zimmern, die Wohnflächen zwischen 74 und 134 m² bieten und insgesamt eine Gesamtwohnfläche von 1.793,20 m² schaffen.
Ein besonderes Highlight dieses Projekts sind die Dachgeschosswohnungen mit großzügigen Dachterrassen, sowie die Tiefgarage mit einem speziellen KFZ-Aufzug, die Platz für 22 Stellplätze bietet. Zusätzlich sind acht Stellplätze für Motorräder sowie drei Außenstellplätze für PKWs vorhanden, um den Bewohnern und ihren Gästen ausreichend Parkmöglichkeiten zu bieten.
Dieses Neubauvorhaben besticht nicht nur durch seine hochwertige Planung und das moderne, ansprechende Design, sondern auch durch die hervorragende Lage mit hoher Nachfrage. Ein Zuhause mit exzellentem Wohnkomfort, in dem sich der Alltag ideal mit Freizeit und Erholung verbinden lässt.
Grundstück mit bestehender Baugenehmigung für Mehrfamilienhaus in bester Lage von Springe!
Fünfhausenstraße 8-10,
31832 Springe
Auf Karte anzeigen
Finanzierungszertifikat
In nur zwei Minuten zu Ihrem persönlichen Finanzierungszertifkat.
Infos
| Vermarktungsart | Kaufen |
|---|---|
| Grundstücksfläche | 1.772 m2 |
| Verfügbar ab | sofort |
Kosten
| Miete pro Jahr |
700.000 € |
|---|---|
| Provision |
Käuferprovisionsfrei Käuferprovisionsfrei |
Finanzierungsrechner:
Kaufpreis:
600.000 €
Eigenkapital:
600.000 €
Monatliche Rate
0 €
Effektiver Jahreszins
0 %
Sollzinsbindung
10 Jahre
Beschreibung des Objekts
Lage
Springe befindet sich südwestlich der Landeshauptstadt Hannover mitten im Städtedreieck Hannover – Hameln – Hildesheim und es leben aktuell ca. 30.000 Menschen im Stadtgebiet, das sich auf 12 Stadtteile aufteilt. In der Kernstadt Springe leben ca. 13.000 Menschen.
Dieses Bauvorhaben ist in zentraler Lage in Springe gelegen. Nur ca. 8 Gehminuten zum Bahnhof (S-Bahnlinie 5 mit der Verbindung Flughafen Hannover - Hannover - Hameln - Paderborn) und ca. 5 Minuten Fußweg in die Innenstadt mit Fußgängerzone, div. Einkaufsmöglichkeiten und Gastronomiebetrieben. Die nächste Bushaltestelle liegt in ca. 150 Meter Entfernung. Kindergärten, sämtliche Schulformen, Fachärzte, Banken, Sport- und Freizeiteinrichtungen und div. gute Einkaufsmöglichkeiten (u. a. das Einkaufszentrum an der Osttangente mit EDEKA, ALDI, Baumarkt und Elektrofachhandel) befinden sich vor Ort. Zu den weiterführenden Schulen sind es 10-15 Minuten Fußweg.
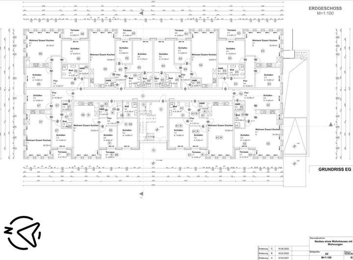
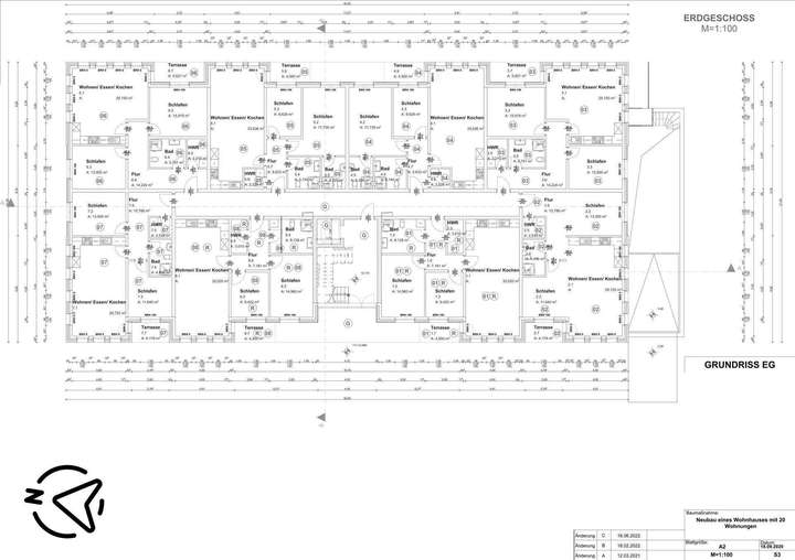
Grundriss
Grundriss_EG
>
>
Grundriss_OG
>
>
Grundriss_DG
>
>
Grundriss_UG
>
>