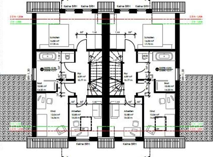
Diese Doppelhaushälfte in Plaidt bietet Ihnen und Ihrer Familie ein perfektes Zuhause. Mit einer Wohnfläche von bis zu 149 Quadratmetern und einer Grundstücksfläche von ca. 250 Quadratmetern haben Sie genügend Platz, um sich wohlzufühlen. Die Immobilie verfügt optional über eine Garage, ideal für das Parken Ihres Autos oder als zusätzlicher Stauraum. Der Verwendungszweck ist klar definiert: Wohnen in einem schönen, massiven Gebäude, das ab Frühjahr 2026 erbaut wird und somit einen erstklassigen Erstbezug bietet. Das Dach ist optional voll ausgebaut, was zusätzlichen Wohnraum oder Speicherplatz bietet. Die Erschließung des Grundstücks ist vollständig abgeschlossen, so dass Sie nach Fertigstellung direkt einziehen können. Ein eigener Garten lädt zum Verweilen und Spielen ein, ideal für Kinder und Erwachsene gleichermaßen. Insgesamt stehen Ihnen bis zu fünf Zimmer zur Verfügung, darunter vier gemütliche Schlafzimmer für eine gute Nachtruhe. Ein Badezimmer bietet Ihnen alle notwendigen Annehmlichkeiten für den täglichen Bedarf. Diese Immobilie ist perfekt für Familien, die ein schönes, modernes Zuhause mit guter Infrastruktur suchen.
Ihr neues Eigenheim in der Nähe des Schulzentrums.
56637 Plaidt
Die vollständige Adresse der Immobilie erhalten Sie vom Anbieter.
Auf Karte anzeigen
Die vollständige Adresse der Immobilie erhalten Sie vom Anbieter.
Finanzierungszertifikat
In nur zwei Minuten zu Ihrem persönlichen Finanzierungszertifkat.
Infos
| Vermarktungsart | Kaufen |
|---|---|
| Grundstücksfläche | 250 m2 |
| Erschließung | Erschlossen |
| Verfügbar ab | 2027 |
Kosten
| Miete pro Jahr |
399.000 € |
|---|---|
| Provision |
1,785 % inkl. ges. MwSt. |
Finanzierungsrechner:
Kaufpreis:
600.000 €
Eigenkapital:
600.000 €
Monatliche Rate
0 €
Effektiver Jahreszins
0 %
Sollzinsbindung
10 Jahre
Beschreibung des Objekts
Lage
Tolle zentrale Wohnlage Nähe Schulzentrum.
Die Gemeinde hat eine hervorragende Infrastruktur. Einkaufsmöglichkeiten, Ärzte, Apotheken, Schulen und die Sport- und Freizeitanlagen sind sehr schnell und gut erreichbar. Das Plaidter Vereinsleben und die reizvolle Landschaft der Region Pellenz bieten Ihnen ein vielfältiges Angebot zur Freizeitgestaltung. Und wer im Sommer nach einer erfrischenden Abkühlung sucht, findet sie im "Freibad Pellenz". Die Städte Koblenz, Andernach und Mayen sind kurzfristig zu erreichen. Die Autobahnen A 61 und A 48 befinden sich in unmittelbarer Nähe. Krankenhäuser und weiterführende Schulen sind in Koblenz, Andernach und Mayen vorhanden. Quelle, sowie zahlreiche weitere Informationen zur Ortsgemeinde Plaidt finden Sie unter: www.plaidt.de
Sonstige Angaben
Auf dem Weg zu Ihrem Wohntraum / Ihrer Traumimmobilie begleiten wir Sie von der ersten Kontaktaufnahme bis zur Schlüsselübergabe in allen Schritten als starker Partner. Wir freuen uns auf Ihre Anfrage.
Ansprechpartner für diese Immobilie:
Michael Rausch
02651-873171, 0171-6574657
michael.rausch@kskmayen.de
www.kskmayen.de/immobilien
Sie wollen eine Immobilie verkaufen ??
Der Verkauf einer Immobilie beginnt oft mit einer Entscheidung, die nicht leichtfällt: Ob nach einem Umzug, einer Erbschaft oder einer Veränderung im Leben. Plötzlich geht es um Werte, Fristen, Dokumente und den richtigen Moment. Gut, wenn Sie dabei auf fundierte Informationen und erfahrene Partner zählen können. Gerne erfahren Sie durch uns, wie Sie den Verkauf Ihrer Immobilie am besten vorbereiten: rechtlich, steuerlich und ganz praktisch. Und wenn Sie möchten, unterstützen wir Sie bei der Vermarktung für Häuser, Wohnungen, Grundstücke und auch Gewerbeobjekte – mit der Kompetenz des größten Maklerverbunds für Wohnimmobilien in Deutschland. Weil es um mehr geht als nur einen guten Preis.