Zum Verkauf steht ein attraktives Grundstück in Ortrandlage der Gemeinde Pliening. Die ruhige Lage in einem gewachsenen Wohnumfeld sowie die unmittelbare Nähe zur Natur machen dieses Grundstück zu einer idealen Basis für die Verwirklichung des eigenen Wohntraums.
Das Grundstück verfügt über eine Fläche von ca. 396 m². Ein besonderer Mehrwert ist der bereits genehmigte Bauplan für ein Einfamilienhaus mit EG, OG, DG sowie KG. Damit sparen Sie sich den langwierigen Genehmigungsprozess und könne kurzfristig loslegen!
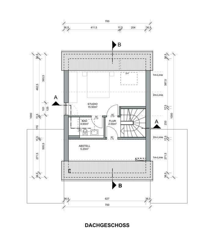
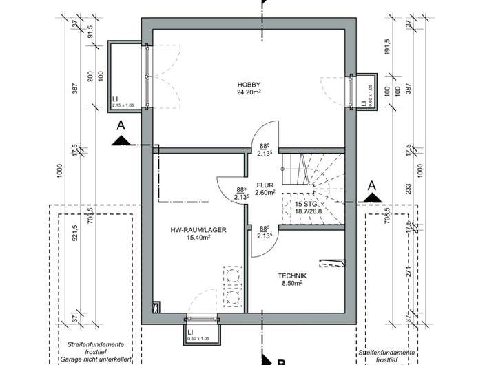
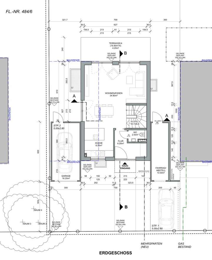
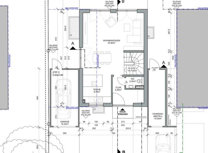
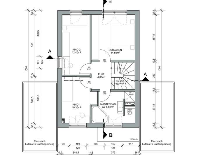
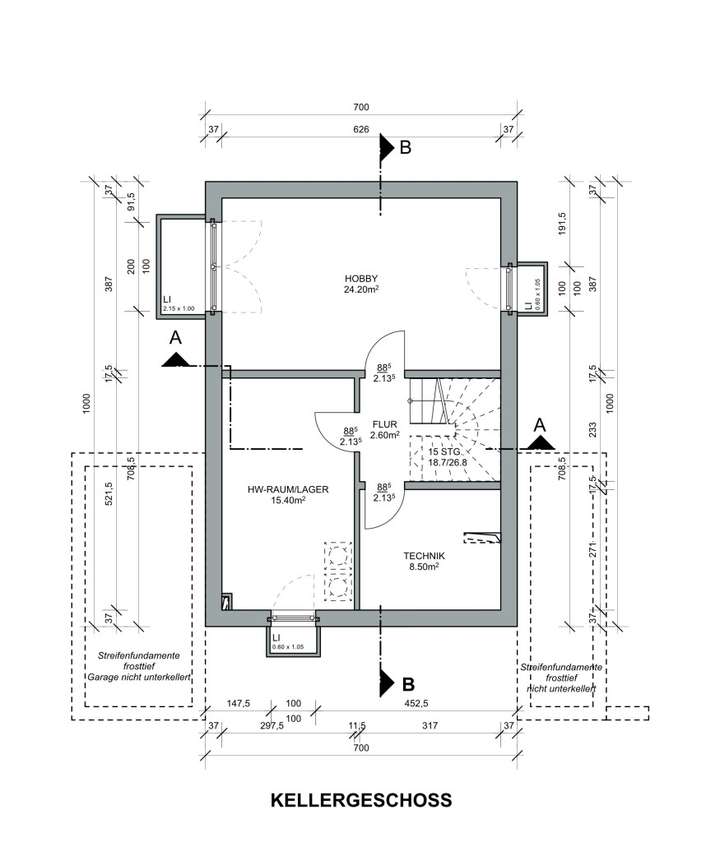
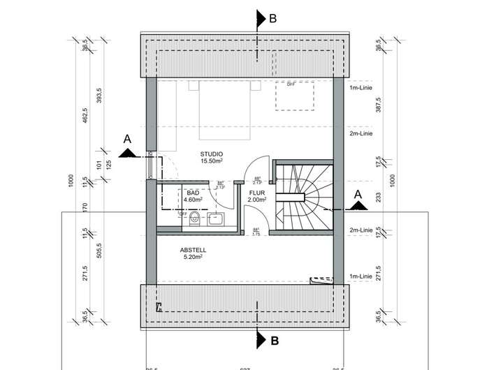
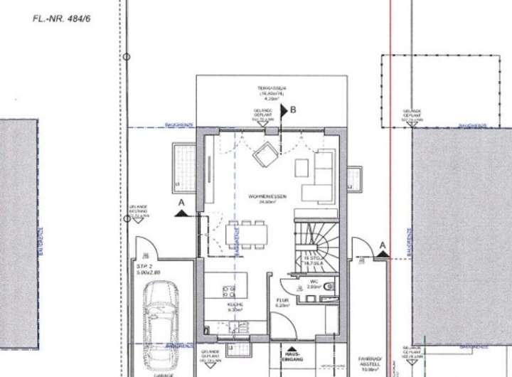
Das geplante Haus bietet eine Wohnfläche von ca. 133 m² und zusätzlich ca. 51 m² Nutzfläche, wodurch ausreichend Raum für komfortables Wohnen sowie funktionale Nebenflächen zur Verfügung steht.
Neben dem Wohnhaus ist die Errichtung einer Einzelgarage vorgesehen. Auf der anderen Seite ist ein praktischer Fahrradabtelle geplant, der zusätzlichen Stauraum schafft und den Alltag komfortabel ergänzt.
Dieses Grundstück stellt eine seltene Gelegenheit dar, ein genehmigtes Bauprojekt in ruhiger, naturnaher Lage zeitnah zu realisieren und individuelle Wohnvorstellungen ohne Verzögerung umzusetzen.
Am besten Sie machen sich selbst ein Bild dieses wirklich außergewöhnlichen Grundstücks! Gerne vereinbaren wir einen Beratungs- bzw. Besichtigungstermins bei uns im Büro bzw. direkt am Grundstück.
Grundstück für EFH inkl. genehmigten Plan in Ortsrandlage Pliening
85652 Pliening
Die vollständige Adresse der Immobilie erhalten Sie vom Anbieter.
Auf Karte anzeigen
Die vollständige Adresse der Immobilie erhalten Sie vom Anbieter.
Finanzierungszertifikat
In nur zwei Minuten zu Ihrem persönlichen Finanzierungszertifkat.
Infos
| Vermarktungsart | Kaufen |
|---|---|
| Grundstücksfläche | 396 m2 |
| Erschließung | Teilerschlossen |
| Empfohlene Nutzung | Einfamilienhaus |
| Bebaubar nach | Bebauungsplan |
| Verfügbar ab | kurzfristig |
Kosten
| Miete pro Jahr |
440.000 € |
|---|---|
| Provision |
3,57 % vom Gesamtkaufpreis inkl. MwSt. |
Finanzierungsrechner:
Kaufpreis:
600.000 €
Eigenkapital:
600.000 €
Monatliche Rate
0 €
Effektiver Jahreszins
0 %
Sollzinsbindung
10 Jahre
Beschreibung des Objekts
Lage
Das zum Verkauf stehende Grundstück liegt in sehr schöner Ortsrandlage von Pliening.
Die Gemeinde Pliening liegt ca. 15 km östlich von der Landeshauptstadt München entfernt und ist dem Landkreis Ebersberg zugehörig.
Die Nähe zu München in Kombination mit dem ländlichen Charakter und der guten Infrastruktur bieten ein lebens- und liebenswertes Wohnumfeld.
So kann die Verkehrsanbindung nach München, zum Flughafen, sowie nach Erding bequem und schnell über die Autobahnen A94 und A99 erfolgen.
Die S-Bahnhaltestelle Poing (S2 Erding-München) ist ca. 4 km entfernt und mit dem Bus gut zu erreichen. Das nette Städtchen Markt Schwaben ist ebenfalls nur 6 km entfernt.
Nur wenige Gehminuten entfernt befinden sich Kita, Kindergarten und Grundschule; die weiterführenden Schulen finden Sie in den Nachbargemeinden.
Im Ort selbst finden Sie einige Einkaufsmöglichkeiten des täglichen Bedarfs, sowie einen großen Edeka-Markt.
Die Wege in die Natur und zu Freizeiteinrichtungen sind kurz. Wiesen und Felder liegen Ihnen praktisch zu Füßen, zahlreiche Badeseen erreichen Sie mit dem Fahrrad z.T. in nur wenigen Minuten.
Weitere Freizeit- und Erholungsmöglichkeiten bieten Ihnen der Wildpark Poing, das Erholungsgebiet Speichersee oder der Ebersberger Forst.
Sonstige Angaben
Für einen Besichtigungstermin stehen wir Ihnen nach Terminvereinbarung gerne zur Verfügung!
Alle im Exposé angegebenen Daten beruhen auf Angaben des Verkäufers. Für diese Angaben übernehmen wir keine Gewähr.
Bei direkten Vertragsverhandlungen sind Sie verpflichtet, darauf aufmerksam zu machen, dass wir Sie auf dieses Objekt hingewiesen haben. Entsprechendes gilt, wenn Sie unser Angebot an Dritte weitergeben.
Grundriss
EFH - EG
>
>
EFH - OG
>
>
EFH - DG
>
>
EFH - KG
>
>