Hier wird hier eine Seite des Grundstückes für den Bau einer DHH angeboten, gerne können Sie auch beide Grundstücke erwerben zum Bau eines Freistehenden EFH erwerben.
Bauen Sie sofort! Ihr Grundstück mit genehmigter Bauvoranfrage & Bauplänen. Für 2 DHH.
Nutzen Sie diese einzigartige Chance für Ihr neues Zuhause! Dieses vollerschlossene Baugrundstück ist sofort bebaubar und bietet Ihnen zwei faszinierende Möglichkeiten: Bauen Sie Ihre individuelle Doppelhaushälfte auf Basis vorhandener, genehmigter Pläne oder erwerben Sie das gesamte Grundstück für Ihre persönliche Traumvilla.
Mit der bereits vorliegenden genehmigten Bauvoranfrage vom 15.08.2024 und den fertigen Bauplänen eines Architekten sparen Sie wertvolle Zeit und Planungskosten – Sie können ohne Verzögerung mit der Realisierung starten!
Die zwei Kaufoptionen im Überblick:
Option A (Aktuelles Angebot):
Linke Doppelhaushälfte (ca. 276 m²)
Preis: 134.000 €
Inklusive aller Planungsunterlagen und der genehmigten Bauvoranfrage.
Option B (Perfekt für Ihr Großprojekt):
Gesamtgrundstück (ca. 564 m²)
Ideal für ein großzügiges Einfamilienhaus (EFH) oder eine repräsentative Stadtvilla.
Preis auf Anfrage.
Details zum (linken) Baugrundstück:
Grundstücksgröße: ca. 276 m²
Bauweise: 1,5-geschossig
Genehmigte Bauvoranfrage: vom 15.08.2024
Erschließung: Vollerschlossen
Baugenehmigungsrelevante Kennzahlen:
Grundflächenzahl (GRZ): 0,4
Geschossflächenzahl (GFZ): 0,5
Das macht dieses Angebot einzigartig:
Sofort startbereit: Genehmigte Bauvoranfrage und Architektenpläne für 2 Doppelhaushälften liegen vor – kein Planungsrisiko, keine Wartezeit.
Maximale Flexibilität: Wählen Sie zwischen dem Kauf einer Doppelhaushälfte oder des gesamten Grundstücks für ein individuelles Einfamilienhaus.
Attraktive Lage: Brüggen ist eine beliebte Wohnlage mit guter Anbindung und Infrastruktur.
Luftbild 360 Grad Panorama Grundstück:
https://app2.ricoh360.com/viewer/02662f13-b466-45c4-b707-69aeda8ccc55
Exklusives Baugrundstück für DHH mit genehmigter Bauvoranfrage in Brüggen
41379 Brüggen
Die vollständige Adresse der Immobilie erhalten Sie vom Anbieter.
Auf Karte anzeigen
Die vollständige Adresse der Immobilie erhalten Sie vom Anbieter.
Finanzierungszertifikat
In nur zwei Minuten zu Ihrem persönlichen Finanzierungszertifkat.
Infos
| Vermarktungsart | Kaufen |
|---|---|
| Grundstücksfläche | 276 m2 |
| Empfohlene Nutzung | Doppelhaus, Einfamilienhaus |
Kosten
| Miete pro Jahr |
134.000 € |
|---|---|
| Provision |
3,57 % inkl. MwSt. Es fällt bei notarieller Beurkundung eine Käuferprovision i.H.v. 3,57 % inkl. MwSt. an. |
Finanzierungsrechner:
Kaufpreis:
600.000 €
Eigenkapital:
600.000 €
Monatliche Rate
0 €
Effektiver Jahreszins
0 %
Sollzinsbindung
10 Jahre
Beschreibung des Objekts
Lage
Lagebeschreibung für das Grundstück in 41379 Brüggen
Die Lage bietet eine hervorragende Verkehrsanbindung und eine gut ausgebaute Infrastruktur mit Einkaufsmöglichkeiten, Schulen, Kindergärten und einem vielfältigen Angebot an Freizeitmöglichkeiten in der näheren Umgebung.
Brüggen und bietet eine schnelle Anbindung an die Autobahn A52, die eine bequeme Fahrt in Richtung Mönchengladbach und Düsseldorf ermöglicht. Der öffentliche Nahverkehr ist ebenfalls gut ausgebaut, mit regelmäßigen Busverbindungen, die eine einfache Fortbewegung innerhalb der Region gewährleisten.
In unmittelbarer Nähe zum Grundstück finden Sie eine Vielzahl von Einkaufsmöglichkeiten, darunter Supermärkte, Boutiquen und lokale Geschäfte, die für den täglichen Bedarf sorgen. Mehrere renommierte Schulen und Kindergärten sind ebenfalls nur einen kurzen Spaziergang entfernt, was diese Lage ideal für Familien macht.
Für Freizeit und Entspannung bietet Brüggen eine Vielzahl von Möglichkeiten. Der nahegelegene Naturpark Maas-Schwalm-Nette lädt zu ausgiebigen Wanderungen und Fahrradtouren ein. Zudem gibt es mehrere Seen und Freizeiteinrichtungen, die für Sportbegeisterte und Naturliebhaber gleichermaßen attraktiv sind.
Die Kombination aus hervorragender Verkehrsanbindung, gut ausgebauter Infrastruktur und vielfältigen Freizeitmöglichkeiten macht diese Lage zu einem besonders attraktiven Angebot für potenzielle Käufer.
Sonstige Angaben
Alle Angaben sind ohne Gewähr und basieren ausschließlich auf Informationen, die uns von unserem Auftraggeber übermittelt wurden. Wir übernehmen keine Gewähr für die Vollständigkeit, Richtigkeit und Aktualität dieser Angaben.
Es fällt bei notarieller Beurkundung eine Käuferprovision i.H.v. 3,57 % inkl. MwSt. an.
Sie wollen selbst eine Immobilie verkaufen? Wir erstellen für Sie eine realistische Wertermittlung Ihrer Immobilie und stimmen unser Vermarktungskonzept individuell auf Sie ab.
Sie wollen selbst nicht verkaufen und kennen jemanden, der verkaufen möchte? Profitieren Sie von unserem Tippgebermodell:
https://immobye.de/ueber-uns/tippgeber/
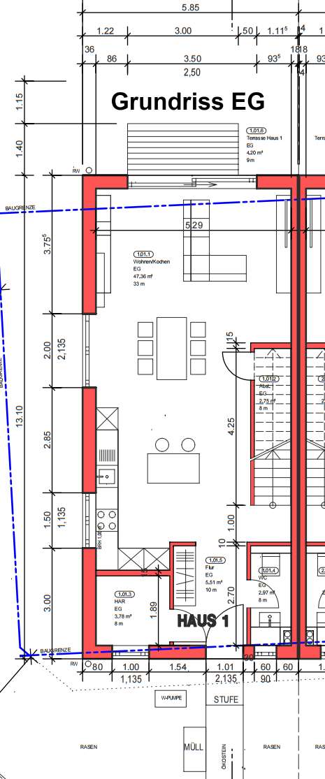
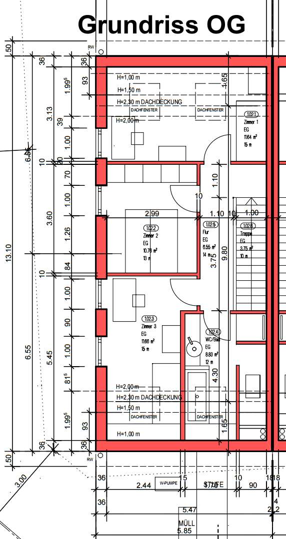
Grundriss
Grundriss EG
>
>
Grundriss OG
>
>