Die WURTZ bauen + wohnen GmbH verkauft im Auftrag ein Baugrundstück mit ca. 466 m² Grundstücksfläche.
Da es sich hierbei um eine Aufteilung eines 880 m² Einfamilienhaus-Grundstückes in zwei Grundstücke für zwei Doppelhaushälften handelt, sind Änderungen der tatsächlichen Grundstücksgröße und des (entsprechenden) Preises noch vorbehalten.
Die von uns erstellte Konzeptionierung ist ein unverbindlicher Vorentwurf.
Bei dem unbebauten Grundstück handelt es sich um eine Baulücke in Ortsrandlage in einem
gewachsenen reinen Wohngebiet im nordöstlichen Heimsheim inmitten des Heckengäu.
Wie die anderen Grundstücke dieser Lage verfügt das Baugrundstück über eine Hanglage mit
Südausrichtung und aufgrund der Geländetopographie über einen unverbaubaren Ausblick auf die Ausläufer des Nordschwarzwaldes.
Nördlich des Baugrundstücks schließen sich malerische Freiflächen und Streuobstwiesen an.
Baugrundstück DHH in Heimsheim | Süd- und Aussichtslage
71296 Heimsheim
Die vollständige Adresse der Immobilie erhalten Sie vom Anbieter.
Auf Karte anzeigen
Die vollständige Adresse der Immobilie erhalten Sie vom Anbieter.
Finanzierungszertifikat
In nur zwei Minuten zu Ihrem persönlichen Finanzierungszertifkat.
Infos
| Vermarktungsart | Kaufen |
|---|---|
| Grundstücksfläche | 466 m2 |
| Empfohlene Nutzung | Doppelhaus, Einfamilienhaus |
| Bebaubar nach | Bebauungsplan |
Kosten
| Miete pro Jahr |
306.600 € |
|---|---|
| Provision |
4,76 Nach Abschluss eines notariellen Kaufvertrages berechnen wir vom Käufer eine Provision in Höhe von 4,76 % inkl. gesetzlicher Mehrwertsteuer. Die Höhe der Bruttocourtage unterliegt einer Anpassung bei Steuersatzänderung. Der Maklervertrag für den Käufer kommt mit Inanspruchnahme unserer Maklertätigkeit zustande. |
Finanzierungsrechner:
Kaufpreis:
600.000 €
Eigenkapital:
600.000 €
Monatliche Rate
0 €
Effektiver Jahreszins
0 %
Sollzinsbindung
10 Jahre
Beschreibung des Objekts
Lage
Die Stadt Heimsheim, gelegen ca. 15 km südöstlich von Pforzheim, gehört zur Region Nordschwarzwald und zur
europäischen Metropolregion Stuttgart.
Im Wahrzeichen Heimsheims, dem Graevenitschen Schloss, ist das Rathaus
untergebracht. Heimsheim ist durch die Anschlussstelle 46 der A8 an das überregionale Straßennetz und über die
Buslinien 652 und 653 nach Leonberg an den öffentlchen Nahverkehr angebunden.
Mit seinen knapp 5.500 Einwohnern, seiner über 500-jährigen Stadtgeschichte, der Stadtbücherei sowie regelmäßigen Veranstaltungen wie beispielsweise der SchlossHOFspiele bietet Heimsheim eine attraktive Mischung aus Nähe zur Natur und aktivem Stadtleben.
Die Mikrolage verspricht naturnahes Wohnen in nordöstlicher Ortsrandlage mit guter Anbindung an den Stadtkern und direktem Zugang zu Feldern und Wiesen.
Die umgebende Landschaft lädt
zu erholsamen Spaziergängen im Bereich der Feuerbacher Heide ein.
Auch der Freizeitpark im benachbarten
Rutesheim und das nördlich gelegene Friolzheim sind per Fahrrad oder zu Fuß problemlos zu erreichen.
Sonstige Angaben
Die Firma Wurtz bauen + wohnen GmbH ist mit ihrer 55 jährigen Baugeschichte ein etablierter Dienstleister für Immobilien in der Region. Mehr als 1.300 gebaute Wohnungen und Einfamilienhäuser in und um Rutesheim,
Leonberg, Stuttgart sowie Pforzheim sprechen für das Vertrauen der Bauherren in dieser Zeit.
Die drei Leistungsfelder Planen, Bauen, Beraten schaffen in vielen Bereichen Symbiosen. So generieren wir Vorteile
und Schnittmengen, z.B. in Sachen Qualität und Wirtschaftlichkeit.
Sei es als Kunde im Bestandsmarkt, als Erwerber
einer Neubauwohnung oder Auftraggeber von Architektenleistungen.
Als ausschließlich regionaler Partner im Bereich Beraten nutzen wir unser hervorragendes Netzwerk und eine breite Datenbank an Interessenten. Unsere Makler arbeiten eng mit firmeneigenen Architekten zusammen.
Als Sanierungspartner oder Komplettdienstleister sind wir mit unserer Erfahrung und unseren vielfältigen Kompetenzen Ihr Ansprechpartner in der Region.
Gerne übersenden wir Ihnen die exakte Adresse und ein Exposee mit weiterführenden Unterlagen auf schriftliche Anfrage.
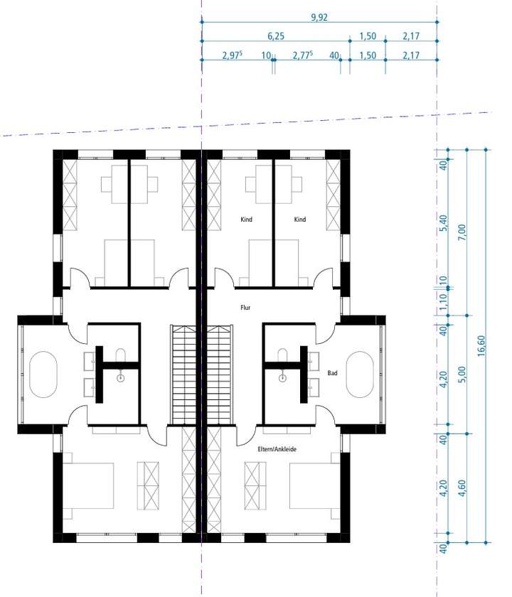
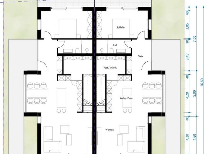
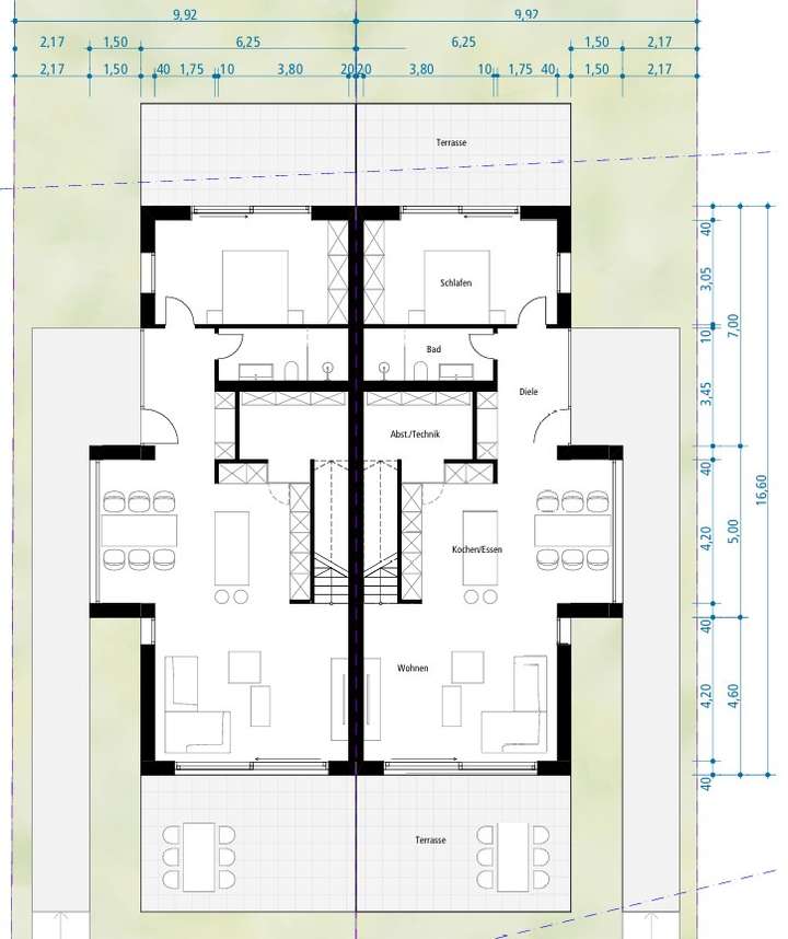
Grundriss
EG_Dez25
>
>
DG_Dez25
>
>