Dieses Baugrundstück befindet sich in Ostrach-Burgweiler und ist teilweise erschlossen.
Die baurechtliche Baugenehmigung zur Bebauung einer Doppelhaushälfte liegt vor.
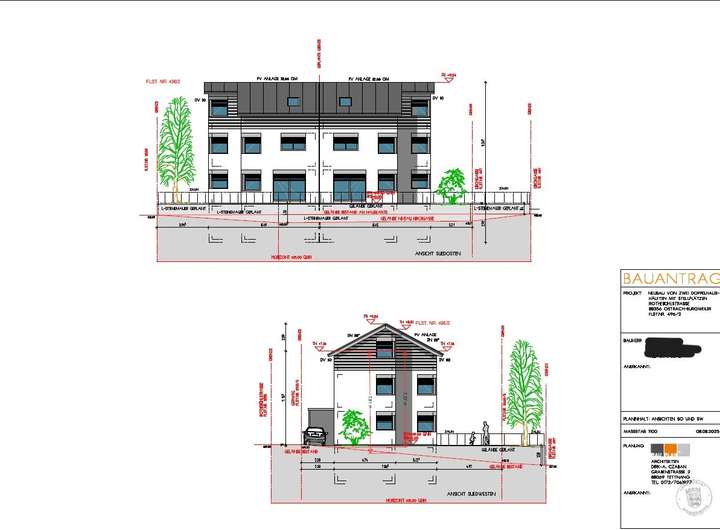
Die Planung ist modern und zeitgemäß mit Keller, zwei Vollgeschosse und ein Dachgeschoss.
Die Gesamtwohnfläche nach DIN beläuft sich auf 124,60 m² Wohnfläche zzgl. einer Nutzfläche im Untergeschoss von ca. 45,24 m².
Im Kaufpreis sind enthalten:
-die Architektenkosten
-Planungsphase 1-4
-Erstellung des
Lageplans/Geometerkosten
-Geotechnischer Kurzbericht
-Baugenehmigungskosten
Baugrundstück mit einer Baugenehmigung in Ostrach-Burgweiler!!
88356 Ostrach
Die vollständige Adresse der Immobilie erhalten Sie vom Anbieter.
Auf Karte anzeigen
Die vollständige Adresse der Immobilie erhalten Sie vom Anbieter.
Finanzierungszertifikat
In nur zwei Minuten zu Ihrem persönlichen Finanzierungszertifkat.
Infos
| Vermarktungsart | Kaufen |
|---|---|
| Grundstücksfläche | 162 m2 |
| Erschließung | Teilerschlossen |
| Empfohlene Nutzung | Doppelhaus |
| Bebaubar nach | Bebauungsplan |
| Verfügbar ab | sofort |
Kosten
| Miete pro Jahr |
56.000 € |
|---|---|
| Provision |
3,57% inkl. 19% MwSt. vom notariell beglaubigten Kaufpreis |
Finanzierungsrechner:
Kaufpreis:
600.000 €
Eigenkapital:
600.000 €
Monatliche Rate
0 €
Effektiver Jahreszins
0 %
Sollzinsbindung
10 Jahre
Beschreibung des Objekts
Lage
In Ostrach-Burgweiler.