Diese anspruchsvoll gestaltete Gründerzeitvilla wurde von einem Fabrikanten im Jahr 1896 erbaut und 1913 wesentlich erweitert und mit einem Turm versehen.
1987 sanierte der nächste Eigentümer das historische Gebäude grundlegend und umfassend und ließ die Doppelgarage errichten.
Im Jahr 2012 erwarben die jetzigen Eigentümer das Ensemble und renovierten die meisten Räume liebevoll in Zusammenarbeit mit dem Denkmalamt. Auch der Garten wurde vollumfänglich neu angelegt und um einen Schwimmteich erweitert. Aufgrund der perfekten Süd/West-Ausrichtung kann man hier den ganzen Tag die Sonne genießen und bis in die späten Abendstunden auf den verschiedenen Terrassen den Tag ausklingen lassen.
Das Dachgeschoss ist aktuell nicht ausgebaut, beherbergt jedoch ein märchenhaftes Turmzimmer mit Geschichte.
In diesen historischen Gemäuern lässt es sich stilvoll leben und große Feste feiern. Fernab vom Trubel der Mainmetropole kann man hier seine Kinder behütet aufwachsen sehen und trotzdem sind alle strategischen Punkte in wenigen Minuten Fahrzeit erreichbar.
Lassen Sie sich von dieser außergewöhnlichen Immobilie verzaubern!
Gründerzeitvilla auf parkähnlichem Grundstück mit Schwimmteich
65719 Hofheim am Taunus
Die vollständige Adresse der Immobilie erhalten Sie vom Anbieter.
Auf Karte anzeigen
Die vollständige Adresse der Immobilie erhalten Sie vom Anbieter.
Finanzierungszertifikat
In nur zwei Minuten zu Ihrem persönlichen Finanzierungszertifkat.
Infos
| Haustyp | Villa |
|---|---|
| Etagenzahl | 4 |
| Wohnfläche ca. | 314 m2 |
| Nutzfläche | 118 m2 |
| Grundstücksfläche | 1.700 m2 |
| Zimmer | 12 |
| Schlafzimmer | 6 |
| Badezimmer | 3 |
| Garage/Stellplatz | Garage |
| Anzahl Garage/Stellplatz | 2 |
Kosten
| Kaufpreis |
2.900.000 € |
|---|---|
| Provision |
2,98 % des Kaufpreises (inkl. MwSt.) |
Finanzierungsrechner:
Kaufpreis:
600.000 €
Eigenkapital:
600.000 €
Monatliche Rate
0 €
Effektiver Jahreszins
0 %
Sollzinsbindung
10 Jahre
Bausubstanz & Energieausweis
| Baujahr | 1896 |
|---|---|
| Denkmalschutzobjekt | Ja |
| Qualität der Austattung | Luxus |
| Wesentliche Energieträger | Gas |
| Energieausweis | laut Gesetz nicht erforderlich |
Beschreibung des Objekts
Ausstattung
- anspruchsvoll gestaltete Gründerzeitvilla mit Turm
- Einzelkulturdenkmal
- ca. 314 m² Wohnfläche
- 12 Zimmer - bis zu 6 Schlafzimmer
- Masterbad und zwei weitere Duschbäder
- ursprüngliches Kaminzimmer mit buntem Bleiglasfenster
- Einbauküche mit Markengeräten
- Parkettböden in allen Wohn- und Schlafräumen
- teilweise Stuckdecken
- Natursteinböden in der Küche und den Bädern
- Schachbrettfliesen im Eingangsbereich
- Fußbodenheizung in der Küche und den Bädern
- umlaufende Balustrade auf Sandsteinsäulen im Erdgeschoss
- Loggia mit Sandsteinbögen im Obergeschoss
- Fassade mit hellem und rotem Klinker, Form- und Sandstein
- Vollunterkellerung sowie nicht ausgebautes Dachgeschoss
- Wildkammer
- Gartentor mit Sandsteinpfosten und Weintraubenrelief
- Schwimmteich
- freistehende Doppelgarage mit begehbarem Dachboden
- mehrere Stellplätze auf dem Grundstück
- alter Baumbestand
Lage
Das Objekt befindet sich in Hofheim-Lorsbach, einem malerischen Stadtteil von Hofheim am Taunus, der für seine idyllische Lage im Taunus bekannt ist. Die Umgebung ist geprägt von grünen Wäldern, sanften Hügeln und malerischen Wanderwegen, die zu erholsamen Sparziergängen und ausgedehnten Radtouren einladen. Die landschaftlich schöne Lage und der liebevoll gestaltete Ortskern machen Lorsbach zu einem attraktiven Naherholungsziel und Wohnstandort für alle Naturliebhaber. Hier kann man der umtriebigen Metropole Frankfurt in einigen Fahrminuten entfliehen und seine Freizeit fernab von Stress und Lärm genießen.
Neben des Erholungswerts ist der größte Vorteil wohl die angenehme und schnelle Anbindung an viele strategische Punkte im Rhein-Main-Gebiet. Sie arbeiten in Frankfurt? Kein Problem mit einer Fahrzeit von ca. 20-30 Minuten erreichen Sie die City sowohl mit dem Auto als auch mit der S-Bahn. Der Flughafen Frankfurt am Main ist lediglich ca. 15 Minuten entfernt und auch die Landeshauptstadt Wiesbaden erreicht man in einer knappen halben Stunde.
Für die Kinder beherbergt Lorsbach sowohl einen Kindergarten als auch eine Grundschule. Viele weiterführende Schulen, ob privat oder staatlich, befinden sich im nahen Umfeld.
All diese Faktoren garantieren ein idyllisches Familienleben gepaart mit der Nähe zu einer der schönsten Metropolen Deutschlands.
Genießen Sie die Aussicht auf diesen zauberhaften Ort!
Sonstige Angaben
Dieses Inserat stellt nur eine Kurzbeschreibung des Objektes dar. Gerne senden wir Ihnen auf Anfrage ein ausführliches Exposé. Sie erreichen uns per E-Mail hello@katrinziesel.de oder per Telefon unter 0151 24 0000 02.
Sämtliche Fotos, Texte und grafische Darstellungen sind Eigentum von Katrin Ziesel Real Estate und dürfen nicht von Dritten verwendet oder weitergegeben werden.
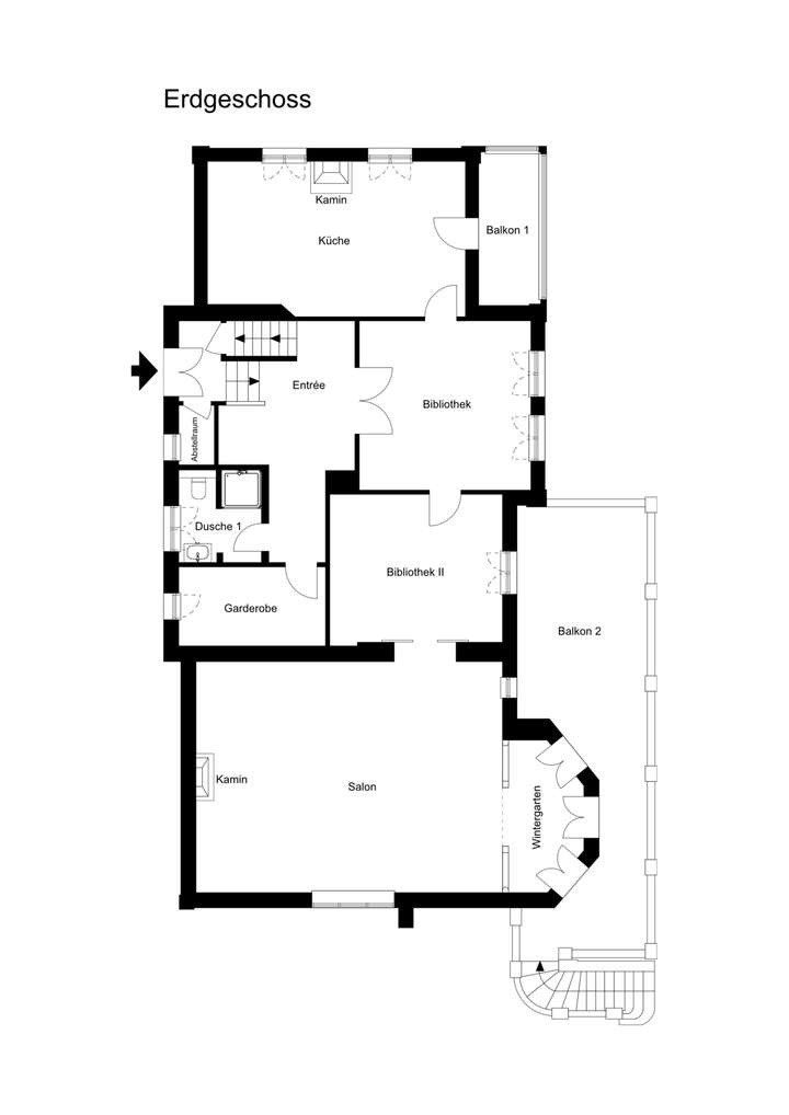
Grundriss
Grundriss Erdgeschoss_web
>
>
Grundriss Obergeschoss_web
>
>
Grundriss Kellergeschoss_web
>
>
Adresse
65719 Hofheim am Taunus
Interessante Orte
Preis- und Lageinformationen
Preistrend für Bestandsimmobilien in Hofheim am Taunus