Starten Sie den Bau Ihres neuen und energieeffizienten KAMPA-Hauses!
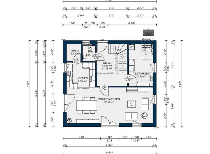
In diesem Haus erwartet Sie eine funktionale Gestaltung, die Ihren Komfort und Ihre Bedürfnisse in den Vordergrund stellt. Das Erdgeschoss präsentiert eine geschickte Raumaufteilung mit einer kompakten Küche, die genügend Platz für kulinarische Kreationen bietet, sowie einem großzügigen Wohnzimmer mit Essbereich, in dem Sie entspannte Stunden mit Ihren Liebsten verbringen können.
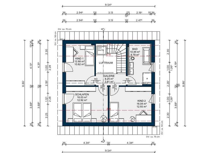
Im Dachgeschoss dieses Hauses finden Sie Ihre privaten Rückzugsorte, die Ruhe und Entspannung versprechen. Das geräumige Hauptschlafzimmer lädt zum Ausruhen ein, während die beiden Kinderzimmer genügend Platz bieten, damit Ihre Kinder sich entfalten und ihre Träume verwirklichen können. Hier können Sie die Geborgenheit und Harmonie eines echten Familienlebens spüren und wertvolle Erinnerungen schaffen.
Nicht Zögern, dieses Angebot ist nur noch bis zum 31.3.2026 gültig!
Neues Haus und Grundstück für unter 400.000 €
06386 Scheuder
Die vollständige Adresse der Immobilie erhalten Sie vom Anbieter.
Auf Karte anzeigen
Die vollständige Adresse der Immobilie erhalten Sie vom Anbieter.
Finanzierungszertifikat
In nur zwei Minuten zu Ihrem persönlichen Finanzierungszertifkat.
Infos
| Vermarktungsart | Kaufen |
|---|---|
| Grundstücksfläche | 550 m2 |
| Erschließung | Erschlossen |
| Verfügbar ab | sofort |
Kosten
| Miete pro Jahr |
399.000 € |
|---|---|
| Provision | Nein |
Finanzierungsrechner:
Kaufpreis:
600.000 €
Eigenkapital:
600.000 €
Monatliche Rate
0 €
Effektiver Jahreszins
0 %
Sollzinsbindung
10 Jahre
Beschreibung des Objekts
Lage
Das Grundstück liegt in einer attraktiven und ruhigen Wohnlage. Die Umgebung ist von einer gepflegten Wohnstruktur umgeben; gleichzeitig ist man in wenigen Minuten im Grünen.
Sonstige Angaben
Ihr KAMPA-Haus kommt Serienmäßig mit:
- Wärmepumpe vom Testsieger Viessmann
- Sommerliche Kühlfunktion und Lüftungsanlage mit Wärme-
Rückgewinnung
- Kunststoff-Alu-Fenster
- 90*120 Dusche und 80*180 Badewanne
Worauf warten Sie noch? Schreiben Sie uns an!