Das angebotene Grundstück umfasst zusätzlich zwei genehmigte Mehrfamilienhäuser mit insgesamt sechs Wohneinheiten.
Baugenehmigung, Statik und Wärmeschutznachweis liegen vollständig vor.
Der Baubeginn kann unmittelbar erfolgen, wodurch eine erhebliche Zeitersparnis gegenüber vergleichbaren Projekten entsteht.
Die Baugenehmigung ist bereits seit 2022 gültig, was die Finanzierung unter Einbindung eines KfW-55-Förderdarlehens mit einem effektiven Jahreszins von derzeit ca. 1,90 % wieder seit dem 16.12.2025 möglich macht.
Grundstück inkl. Planung für zwei Mehrfamilienhäuser KFW 55 Förderung mit 1,90% Zins möglich!
Schillerstraße 17-19,
65599 Dornburg
Auf Karte anzeigen
Finanzierungszertifikat
In nur zwei Minuten zu Ihrem persönlichen Finanzierungszertifkat.
Infos
| Vermarktungsart | Kaufen |
|---|---|
| Grundstücksfläche | 1.175 m2 |
| Erschließung | Teilerschlossen |
| Verfügbar ab | sofort |
Kosten
| Miete pro Jahr |
169.000 € |
|---|---|
| Provision | Nein |
Finanzierungsrechner:
Kaufpreis:
600.000 €
Eigenkapital:
600.000 €
Monatliche Rate
0 €
Effektiver Jahreszins
0 %
Sollzinsbindung
10 Jahre
Beschreibung des Objekts
Lage
Das angebotene Grundstück befindet sich in Langendernbach, einer gewachsenen und familienfreundlichen Gemeinde im Landkreis Limburg-Weilburg in Hessen.
Langendernbach überzeugt durch seine ruhige, naturnahe Lage in Kombination mit einer sehr guten regionalen Anbindung.
Der Ort liegt zwischen Limburg an der Lahn und Montabaur und bietet damit eine attraktive Wohnlage für Pendler, Familien und Kapitalanleger.
Gute Anbindung an die B49 sowie die A3 (Köln-Frankfurt)
Schnelle Erreichbarkeit der Städte Limburg, Montabaur und Westerburg
ICE-Bahnhof Montabaur und Limburg in ca. 15-20 Minuten erreichbar
Gute Busverbindungen in die umliegenden Orte.
Kindergarten und Grundschule direkt im Ort!
Weiterführende Schulen in den Nachbarstädten Einkaufsmöglichkeiten, Ärzte, Apotheken und Banken im nahen Umfeld.
Vielfältiges Vereins- und Freizeitangebot
Infrastruktur (im Umkreis von 5 km):
Apotheke, Lebensmittel-Discount, Allgemeinmediziner, Kindergarten, Grundschule, Hauptschule, Realschule, Gesamtschule, Öffentliche Verkehrsmittel
Sonstige Angaben
Makleranfragen nicht erwünscht. Nach § 7 UWG sind unaufgeforderte Kontaktaufnahmen durch Makler ohne ausdrückliche Einwilligung des Empfängers verboten!
ohne-makler (OM) ist weder Anbieter noch Vermittler der Immobilie. OM betreibt eine Plattform für Immobilieneigentümer, die unter anderem die gleichzeitige Veröffentlichung einzelner Inserate auf mehreren Immobilienportalen ermöglicht. Die Inhalte dieser Inserate werden ausschließlich von Dritten verantwortet. Für die Richtigkeit, Vollständigkeit oder Rechtmäßigkeit der Angaben übernimmt OM keine Haftung. Hinweise auf mögliche Rechtsverstöße können jederzeit gemeldet werden und werden nach Prüfung umgehend bearbeitet.
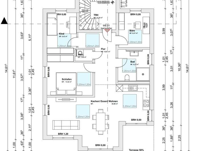
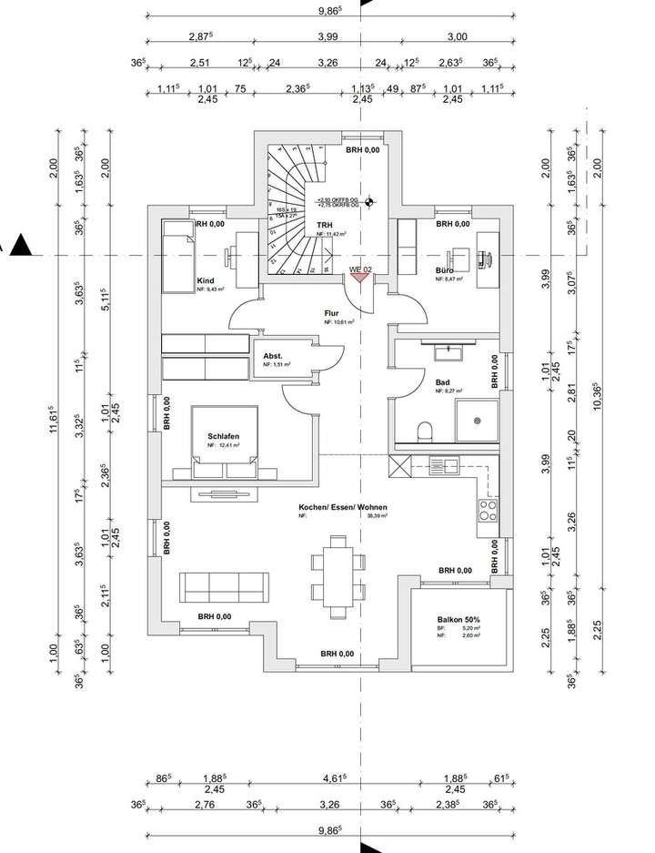
Grundriss
Grundriss
>
>
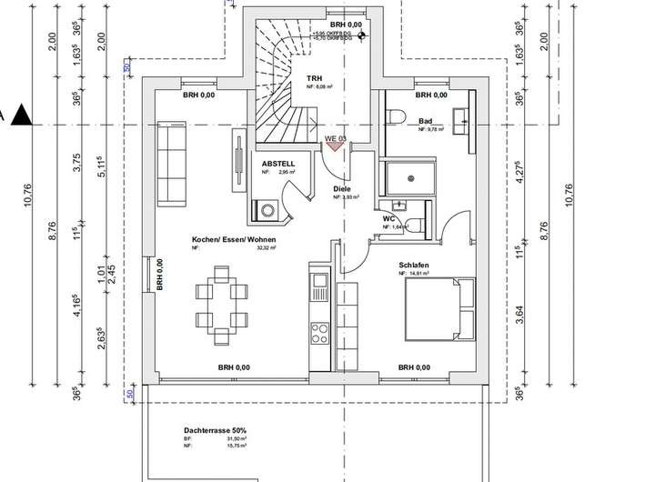
Grundriss
>
>
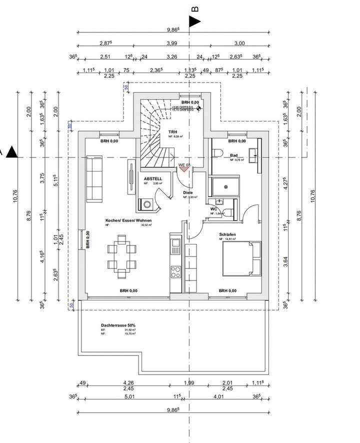
Grundriss
>
>