Im Rahmen der innerörtlichen Nachverdichtung ist dieser Bauplatz mit unverbaubarer Südausrichtung entstanden.
Es liegt bereits eine Baugenehmigung für ein Zweifamilienhaus vor.
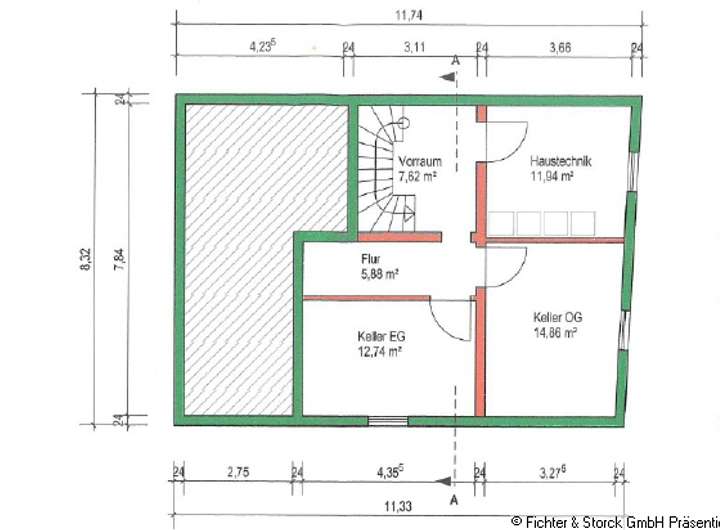
Dieses besteht aus einer Erdgeschosswohnung: 3- Zimmer, Küche, Flur, Bad, Abstellraum, Terrasse, Garten, Kellerraum, 2 Kfz-Stellplätze, Wohnfläche: 68,35 m²
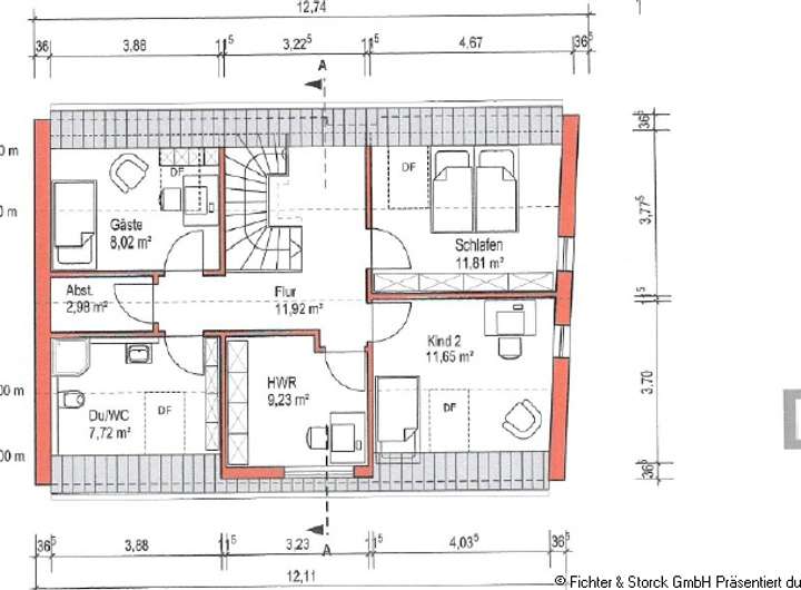
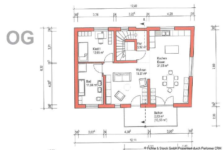
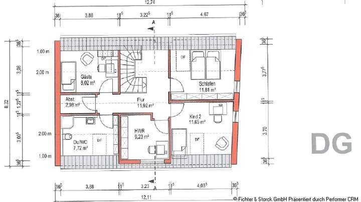
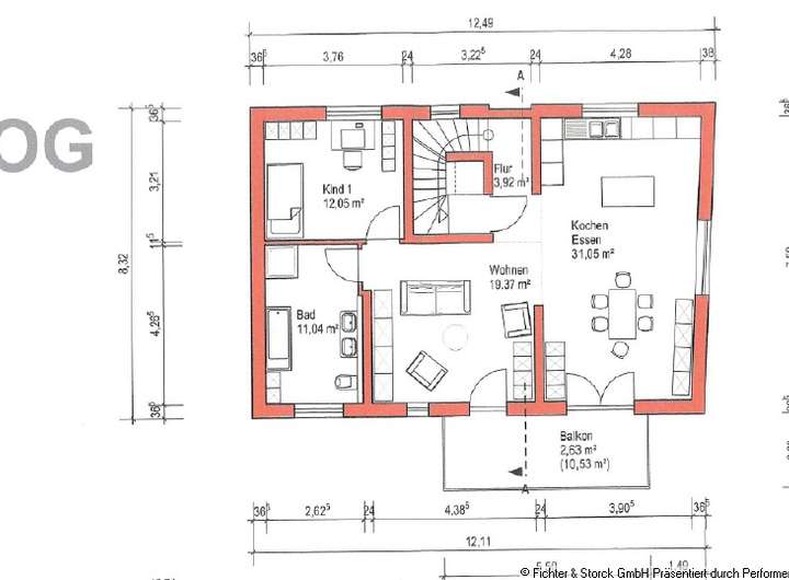
Sowie aus einer Maisonette-Wohnung im Obergeschoss und Dachgeschoss: 5 Zimmer, Küche, 2 Bäder, Balkon, Flur, 2 Kfz-Stellplätze, Wohnfläche: 143,39 m².
Gesamtwohnfläche: 207,43 m²
Die Vermittlung dieses Grundstückes erfolgt provisionsfrei.
Bauplatz mit Baugenehmigung für 2-Familienhaus
Karlstr. 2a,
76689 Karlsdorf-Neuthard
Auf Karte anzeigen
Finanzierungszertifikat
In nur zwei Minuten zu Ihrem persönlichen Finanzierungszertifkat.
Infos
| Vermarktungsart | Kaufen |
|---|---|
| Grundstücksfläche | 224 m2 |
| Erschließung | Erschlossen |
| Grundflächenzahl (GRZ) | 0.6 |
| Bebaubar nach | Bebauungsplan |
Kosten
| Miete pro Jahr |
166.000 € |
|---|---|
| Provision | Nein |
Finanzierungsrechner:
Kaufpreis:
600.000 €
Eigenkapital:
600.000 €
Monatliche Rate
0 €
Effektiver Jahreszins
0 %
Sollzinsbindung
10 Jahre
Beschreibung des Objekts
Lage
Das Grundstück ist derzeit ein Garten in der Karlstraße in Neuthard. Durch die Bauleitplanung, die auf dem Nachbargrundstück keine rückwärtige Bebauung zulässt, ist die Südausrichtung auf Dauer unverbaubar.
Die Verbundgemeinde Karlsdorf-Neuthard liegt mit Ihren ca. 10500 Einwohnern direkt an dem Knotenpunkt B35/ A 5, etwa in der Mitte zwischen Karlsruhe (25km) und Heidelberg (35km). Es besteht direkter Anschluss an die A5 und an die Stadtbahn Bruchsal- Germersheim.
Die Gemeinde verfügt über Grundschulen, mehrere Kindergärten und über eine Jugendmusik- und Kunstschule mit Bibliothek. Einkaufsmöglichkeiten des täglichen Bedarfs sind vorhanden. Die benachbarte Stadt Bruchsal ist ca. 6 km entfernt, hierher pendeln die Schüler der Realschule und der insgesamt 5 Gymnasien.
Umfangreiche Freizeitmöglichkeiten sowie ein reges Vereinsleben tragen zu einer hohen Wohnqualität bei.
Grundriss
Grundriss EG
>
>
Grundriss OG
>
>
Grundriss DG
>
>
Grundriss KG
>
>