KAMPA: Modernes Wohnen mit lichtdurchfluteten Räumen.
Durchdachte Raumaufteilung für maximalen Komfort:
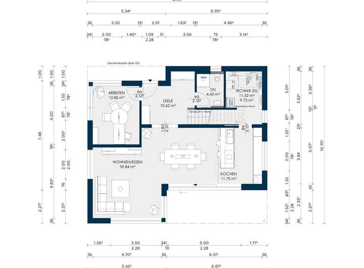
Das Erdgeschoss überzeugt mit einer geräumigen Diele, die den Zugang zu allen Bereichen ermöglicht. Das angrenzende Arbeitszimmer bietet einen ruhigen Rückzugsort für konzentriertes Arbeiten. Der Technik- und Hauswirtschaftsraum sorgt für praktische Lösungen im Alltag und ist über eine in der Wand geschobene Tür direkt mit der Küche verbunden. Im Dachgeschoss eröffnet sich eine lichtdurchflutete Galerie, von der aus sich alle Räume erschließen: das komfortable Elternschlafzimmer, zwei Kinderzimmer sowie ein großzügiges Badezimmer mit Badewanne, Dusche und Doppelwaschbecken.
Hochwertige Ausstattung für ein modernes Zuhause:
Das Haus beeindruckt mit durchdachten Details und einer hochwertigen Ausstattung. Große Fensterfronten sorgen für ein helles Wohngefühl und lassen Innen- und Außenbereich harmonisch verschmelzen. Die geschickt platzierte Wandöffnung und die Schiebetür zwischen Küche und Technikraum bieten maximale Flexibilität im Alltag. Die Galerie im Dachgeschoss verstärkt das offene Raumgefühl und sorgt für eine angenehme Wohnatmosphäre.
Einmalige Gelegenheit!
06295 Lutherstadt Eisleben
Die vollständige Adresse der Immobilie erhalten Sie vom Anbieter.
Auf Karte anzeigen
Die vollständige Adresse der Immobilie erhalten Sie vom Anbieter.
Finanzierungszertifikat
In nur zwei Minuten zu Ihrem persönlichen Finanzierungszertifkat.
Infos
| Vermarktungsart | Kaufen |
|---|---|
| Grundstücksfläche | 650 m2 |
| Erschließung | Erschlossen |
| Empfohlene Nutzung | Einfamilienhaus |
| Bebaubar nach | Bebauungsplan |
| Verfügbar ab | sofort |
Kosten
| Miete pro Jahr |
91.000 € |
|---|---|
| Provision | Nein |
Finanzierungsrechner:
Kaufpreis:
600.000 €
Eigenkapital:
600.000 €
Monatliche Rate
0 €
Effektiver Jahreszins
0 %
Sollzinsbindung
10 Jahre
Beschreibung des Objekts
Lage
Die Lutherstadt Eisleben ist die zweitgrößte Stadt im Landkreis Mansfeld-Südharz in Sachsen-Anhalt und liegt ca. 30 km westlich von Halle (Saale).
Die historische Altstadt bietet viele geschichtsträchtige Sehenswürdigkeiten und darf mit der Luthergedenkstätte sogar ein UNESCO-Weltkulturerbe ihr eigen nennen.
Sonstige Angaben
Ihr KAMPA-Haus kommt Serienmäßig mit:
- Zero-Bills-Konzept
- Wärmepumpe vom Testsieger Viessmann
- Sommerliche Kühlfunktion und Lüftungsanlage mit Wärme-
Rückgewinnung
- Kunststoff-Alu-Fenster mit elektrischer Beschattung
- 90*120 Dusche und 80*180 Badewanne
Worauf warten Sie noch? Schreiben Sie uns an!