Das modulare Hauskonzept für alle, die das perfekte Haus suchen. Ein Haus in Bestform mit attraktiver und vielfältiger
Architektur, individuellen Design-Lösungen, vielseitigen Grundriss-Varianten und innovativer Energiespar-Technologie.
Vollkommen individuell entsteht so ein Haus, das zu 100 Prozent passt - von modern über mediterran bis klassisch lassen
sich die unterschiedlichsten Wünsche in der passenden Hausgröße und dem idealen Grundriss-Konzept realisieren.
Rundum wohlfühlen in den eigenen 4 Wänden
36433 Bad Salzungen
Die vollständige Adresse der Immobilie erhalten Sie vom Anbieter.
Auf Karte anzeigen
Die vollständige Adresse der Immobilie erhalten Sie vom Anbieter.
Finanzierungszertifikat
In nur zwei Minuten zu Ihrem persönlichen Finanzierungszertifkat.
Infos
| Haustyp | Einfamilienhaus |
|---|---|
| Etagenzahl | 2 |
| Wohnfläche ca. | 142 m2 |
| Grundstücksfläche | 800 m2 |
| Zimmer | 5 |
| Schlafzimmer | 3 |
| Badezimmer | 2 |
Kosten
| Kaufpreis |
521.461 € |
|---|
Finanzierungsrechner:
Kaufpreis:
600.000 €
Eigenkapital:
600.000 €
Monatliche Rate
0 €
Effektiver Jahreszins
0 %
Sollzinsbindung
10 Jahre
Bausubstanz & Energieausweis
| Baujahr | unbekannt |
|---|---|
| Bauphase | Haus in Planung (projektiert) |
| Qualität der Austattung | Gehoben |
| Heizungsart | Wärmepumpe |
Beschreibung des Objekts
Ausstattung
Wir erstellen Ihr Haus komplett bezugsfertig, deshalb sind folgende Leistungen in diesem Haus enthalten:
- Ausführung als förderfähiges Effizienzhaus 55, nach Ihrer Wahl selbstverständlich auch als Effizienzhaus 40 oder 40 plus,
- Inklusive Wohlfühl-Klima-Heizung mit Kühlfunktion
- Inklusive Bodenplatte mit Perimeterdämmung des Sockels
- Elektroenergie, Trinkwasser ab Hausanschluss betriebsbereit installiert
- Inklusive Kunststofffenster mit Dreischeibenverglasung und einem u-Wert von 0,5 W/m²K
- Inklusive in der Wand eingebaute Rollläden mit Kurbelantrieb
- Inklusive Holzwangentreppe in Buche
- Inklusive Maler- und Fußbodenarbeiten
- Inklusive Wand- und Bodenfliesenarbeiten
- Inklusive Innentüren lt. Plan und Sanitärobjekte.
Natürlich können Sie gern einzelne Gewerke in Eigenleistung ausführen. Wir beraten Sie gern über die möglichen Einsparungen.
Lage
Langenfeld ist ein Stadtteil der Stadt Bad Salzungen im Wartburgkreis in Thüringen. Langenfeld liegt unmittelbar südwestlich von Bad Salzungen. Durch den Ort führt die Bundesstraße 285, die Bad Salzungen in südliche Richtung mit Dermbach, Kaltennordheim und Mellrichstadt verbindet. Geografisch liegt die Gemarkung des Ortsteils am Fuß der nordöstlichen Abdachung der Rhön.
Die Nähe zur Stadt Bad Salzungen und zum Fluss Werra sowie die Wälder beeinflussten das Leben der Landbevölkerung maßgeblich.
Sonstige Angaben
Im angegebenen Preis für dieses projektierte Haus ist das Grundstück, welches Sie direkt von Dritten erwerben, bereits enthalten. Das Angebot ist unverbindlich und freibleibend, exklusive der Baunebenkosten wie z.B. Hausanschlüsse, Außenanlagen, Notar- und Gerichtskosten.
Abbildungen und Grundrisse zeigen Extras!
Gerne planen wir den Hausbau gemeinsam mit Ihnen auch auf Ihrem bereits vorhandenen Grundstück. In einem ausführlichen Beratungsgespräch ermitteln wir für Sie gerne eine detaillierte Gesamtkostenaufstellung.
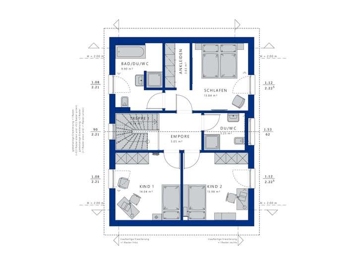
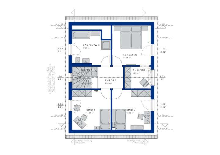
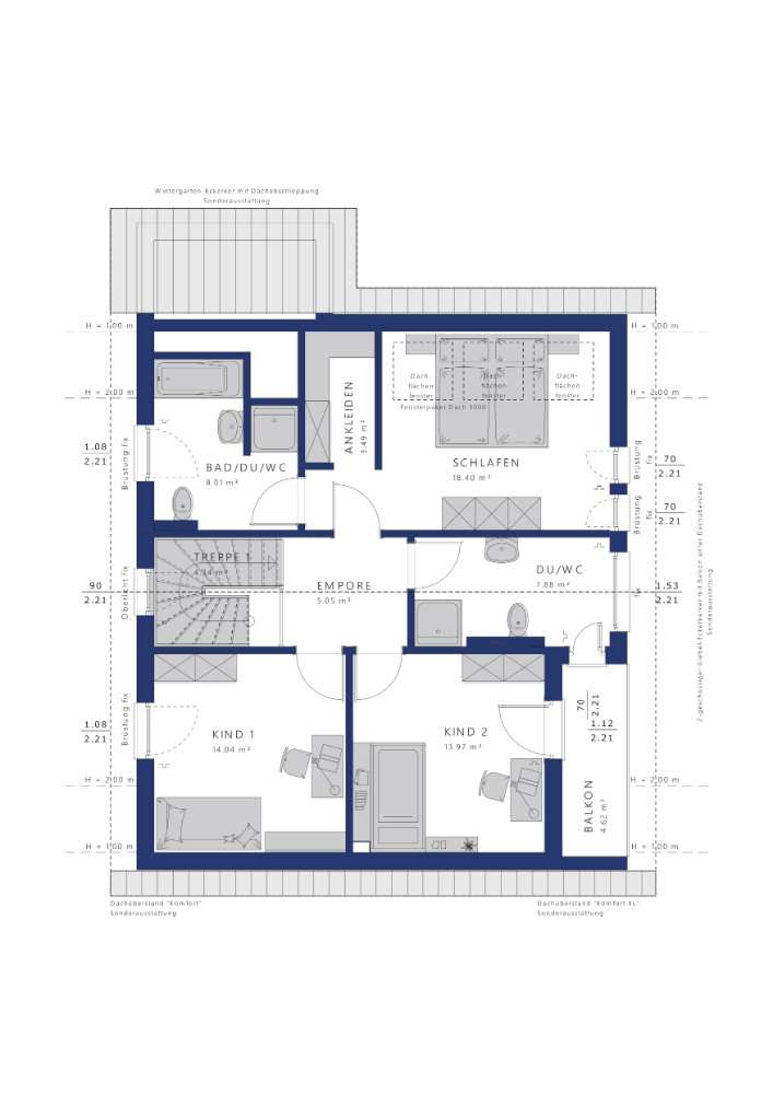
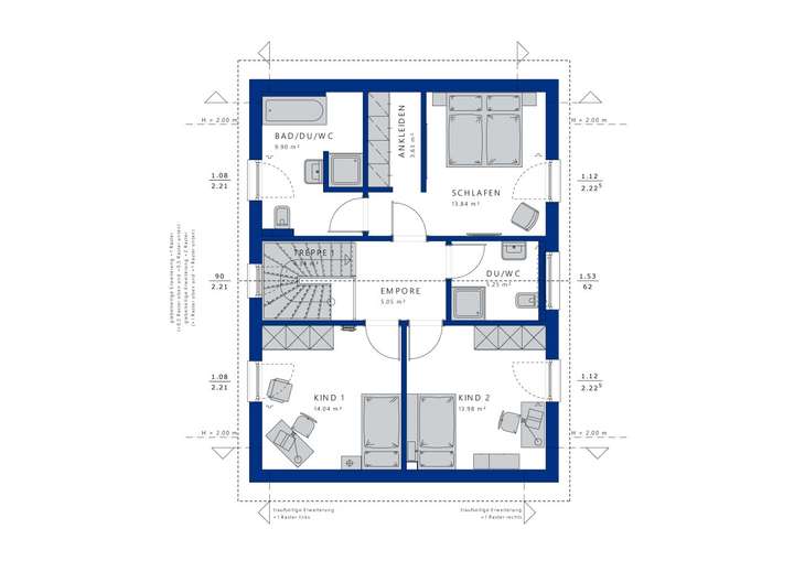
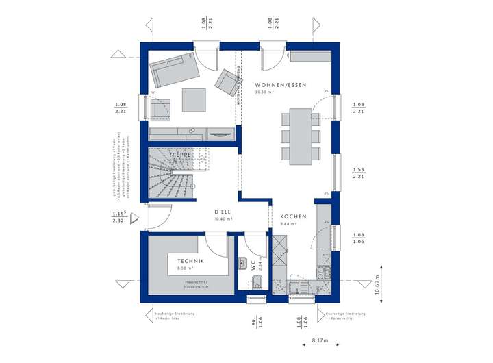
Grundriss
Evolution 139 EG traufseitiger
>
>
Evolution 139 EG giebelseitige
>
>
Evolution 139 DG mit Elterntra
>
>
Evolution 139 DG mit Ankleide
>
>
Evolution 139 V2 EG
>
>
Evolution 139 V2 DG
>
>
Evolution 139 V3 EG
>
>
Evolution 139 V3 DG
>
>
Adresse
36433 Bad Salzungen
Interessante Orte
Preis- und Lageinformationen
Preistrend für Bestandsimmobilien in Bad Salzungen