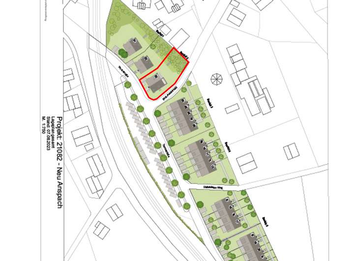
Dieses Grundstück liegt im schönen Neu‑Anspach und bietet die Möglichkeit zur Errichtung eines Zweifamilienhauses. Die Lage am Ortsrand ist geprägt durch viel Grün und kurze Wege ins Umland sowie Richtung Frankfurt.
Das Grundstück ist voll erschlossen und real geteilt. Eine bestehende Planung samt Baugenehmigung für ein Zweifamilienhaus kann auf Wunsch übernommen werden – eine attraktive Option für Eigennutzer mit mehreren Generationen oder Kapitalanleger mit Fokus auf Vermietung.
Baugrundstück für 2-Familienhaus in Neu‑Anspach
Stapelsteiner Weg ,
61267 Neu-Anspach
Auf Karte anzeigen
Finanzierungszertifikat
In nur zwei Minuten zu Ihrem persönlichen Finanzierungszertifkat.
Infos
| Vermarktungsart | Kaufen |
|---|---|
| Grundstücksfläche | 647 m2 |
| Erschließung | Erschlossen |
| Bebaubar nach | Bebauungsplan |
| Verfügbar ab | sofort |
Kosten
| Miete pro Jahr |
345.000 € |
|---|---|
| Provision | Nein |
Finanzierungsrechner:
Kaufpreis:
600.000 €
Eigenkapital:
600.000 €
Monatliche Rate
0 €
Effektiver Jahreszins
0 %
Sollzinsbindung
10 Jahre
Beschreibung des Objekts
Sonstige Angaben
Keyfacts:
- Grundstücksgröße: 647m²
- Nutzung: 2-Familienhaus
- Voll erschlossen
- Provisionsfrei
- Optional mit Planung & Baugenehmigung