Willkommen in Ihrem zukünftigen Traumparadies in Nußbach, Oberösterreich!
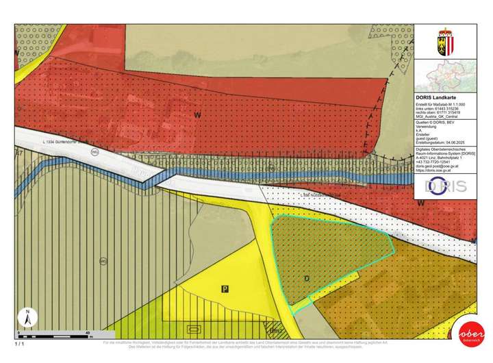
Hier bieten wir Ihnen die einmalige Gelegenheit, ein attraktives Baugrundstück für Ihr Eigenheim zu erwerben. Auf stolzen 668m2 Fläche können Sie Ihre Wohnträume verwirklichen und ein Zuhause schaffen, das Ihren individuellen Bedürfnissen entspricht.
Mit einem Kaufpreis von nur 107.000,00 € ist dieses Grundstück nicht nur eine hervorragende Investition in Ihre Zukunft, sondern auch der perfekte Ausgangspunkt für ein Leben in einer der schönsten Regionen Oberösterreichs.
Die Lage des Grundstücks könnte nicht besser sein. Nußbach ist eine charmante Gemeinde, die Ihnen sowohl Ruhe und Erholung als auch eine ausgezeichnete Anbindung an das öffentliche Verkehrsnetz bietet. Der nahegelegene Bus bringt Sie schnell und bequem in die umliegenden Städte und Gemeinden, sodass Sie immer mobil sind und die Vorteile des ländlichen Lebens mit den Annehmlichkeiten der Stadt verbinden können.
In der unmittelbaren Umgebung finden Sie alles, was Sie für den täglichen Bedarf benötigen. Ob Arzt, Schule oder Kindergarten – alles ist nur einen kurzen Fußweg entfernt. So wird die Erziehung Ihrer Kinder ebenso leicht gemacht wie der Zugang zu medizinischer Versorgung. Auch ein Supermarkt ist in der Nähe, der Ihnen die täglichen Einkäufe erleichtert und den Komfort einer kurzen Anfahrt bietet.
Stellen Sie sich vor, wie Sie an einem sonnigen Nachmittag auf Ihrer eigenen Terrasse sitzen, umgeben von einem liebevoll gestalteten Garten, während Ihre Kinder im Freien spielen. Dieses Grundstück bietet Ihnen die Möglichkeit, Ihre Vision eines perfekten Zuhauses zu realisieren – ob als modernes Einfamilienhaus, gemütliches Doppelhaus oder als großzügige Villa, die keine Wünsche offenlässt.
Nutzen Sie diese Chance und gestalten Sie Ihre Zukunft in Nußbach! Lassen Sie sich von der einzigartigen Atmosphäre dieser Gemeinde verzaubern und profitieren Sie von der harmonischen Verbindung aus ländlichem Leben und urbanen Annehmlichkeiten.
Zögern Sie nicht länger! Kontaktieren Sie uns noch heute für weitere Informationen oder zur Vereinbarung eines Besichtigungstermins. Ihr Traum vom Eigenheim beginnt hier – auf diesem wunderbaren Baugrundstück in 4542 Nußbach. Wir freuen uns darauf, Ihnen bei der Verwirklichung Ihrer Wohnträume zur Seite zu stehen!
Infrastruktur / Entfernungen
Gesundheit
Arzt <225m
Apotheke <3.600m
Klinik <8.475m
Krankenhaus <7.600m
Kinder & Schulen
Schule <125m
Kindergarten <175m
Nahversorgung
Supermarkt <300m
Bäckerei <3.775m
Einkaufszentrum <8.000m
Sonstige
Bank <200m
Geldautomat <200m
Post <275m
Polizei <7.850m
Verkehr
Bus <175m
Bahnhof <2.800m
Autobahnanschluss <4.800m
Angaben Entfernung Luftlinie / Quelle: OpenStreetMap
Ihr Traumgrundstück in Nußbach: 668m² für nur 107.000 € - Bauen Sie Ihr Eigenheim!
Hauptstraße ,
4542 Nußbach
Auf Karte anzeigen
Finanzierungszertifikat
In nur zwei Minuten zu Ihrem persönlichen Finanzierungszertifkat.
Infos
| Vermarktungsart | Kaufen |
|---|---|
| Grundstücksfläche | 668 m2 |
Kosten
| Miete pro Jahr |
107.000 € |
|---|---|
| Provision |
3% des Kaufpreises zzgl. 20% USt. |
Finanzierungsrechner:
Kaufpreis:
600.000 €
Eigenkapital:
600.000 €
Monatliche Rate
0 €
Effektiver Jahreszins
0 %
Sollzinsbindung
10 Jahre