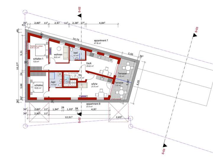
Zum Verkauf steht ein attraktives innerstädtisches Grundstück in 72622 Nürtingen inklusive rechtskräftiger Baugenehmigung für ein hochwertiges Neubau- und Umbauprojekt. Genehmigt ist die Realisierung eines Apartmenthauses mit insgesamt 8 Apartments und 18 Wohn- und Schlafräumen.
Die geplanten Einheiten bieten je nach Apartment 1 bis 3 Zimmer und überzeugen durch durchdachte, funktionale Grundrisse. Die Apartmentgrößen variieren zwischen ca. 26 m² und 67 m², teilweise ergänzt durch attraktive Dachterrassen. Das genehmigte Nutzungskonzept ist hotelähnlich ausgelegt und verzichtet bewusst auf Keller- und Abstellräume, was eine effiziente und wirtschaftliche Bewirtschaftung ermöglicht.
Zum Projekt gehören außerdem 8 vollständig genehmigte Kfz-Stellplätze, die bereits mit der Leitungsinfrastruktur für Elektromobilität ausgestattet sind und damit den aktuellen und zukünftigen Anforderungen des Marktes entsprechen.
Bestandteil der Genehmigung sind der Abbruch des bestehenden Haupthauses, der Neubau sowie die Umnutzung einer bestehenden Scheune zur Schaffung eines Apartmenthauses für die gewerbliche Kurz- und Langzeitvermietung.
Die Baugenehmigung wurde am 26.06.2025 nach § 34 BauGB (Innenbereich) gemäß § 58 LBO Baden-Württemberg erteilt und gilt ausdrücklich auch für den Rechtsnachfolger des Bauherrn. Dadurch kann das Projekt ohne zeitliche Verzögerung übernommen und unmittelbar realisiert werden.
Dieses Grundstück bietet eine seltene Gelegenheit, ein vollständig genehmigtes, wirtschaftlich fundiertes Apartmentprojekt in gefragter innerstädtischer Lage von Nürtingen umzusetzen. Ideal geeignet für Projektentwickler, Investoren oder Bestandshalter, die ohne Planungs- und Genehmigungsrisiko direkt in die Bau- und Realisierungsphase einsteigen möchten.
Grundstück mit aktueller Baugenehmigung für 8 Apartments
72622 Nürtingen
Die vollständige Adresse der Immobilie erhalten Sie vom Anbieter.
Auf Karte anzeigen
Die vollständige Adresse der Immobilie erhalten Sie vom Anbieter.
Finanzierungszertifikat
In nur zwei Minuten zu Ihrem persönlichen Finanzierungszertifkat.
Infos
| Vermarktungsart | Kaufen |
|---|---|
| Grundstücksfläche | 598 m2 |
| Erschließung | Erschlossen |
| Empfohlene Nutzung | Mehrfamilienhaus |
| Grundflächenzahl (GRZ) | 0.36 |
| Geschossflächenzahl (GFZ) | 0.78 |
| Bebaubar nach | Bebauungsplan |
Kosten
| Miete pro Jahr |
495.000 € |
|---|---|
| Provision |
3,57 % inkl. 19 % gesetzl. MwSt. Bei Abschluss eines Kaufvertrags wird eine Provision in Höhe von 3,57 % inkl. 19 % gesetzlicher MwSt. an uns fällig. |
Finanzierungsrechner:
Kaufpreis:
600.000 €
Eigenkapital:
600.000 €
Monatliche Rate
0 €
Effektiver Jahreszins
0 %
Sollzinsbindung
10 Jahre
Beschreibung des Objekts
Lage
Der Standort befindet sich in Nürtingen, einem wirtschaftlich stabilen Mittelzentrum im Landkreis Esslingen innerhalb der Metropolregion Stuttgart. Die Stadt zählt rund 42.000 Einwohner und weist seit Jahren eine konstante Bevölkerungs- und Haushaltsnachfrage auf.
Nürtingen profitiert unmittelbar von seiner Lage im Einzugsgebiet Stuttgart (ca. 30 km) sowie von der Nähe zu wirtschaftsstarken Standorten wie Esslingen, Reutlingen, Filderstadt und dem Flughafen Stuttgart. Der Landkreis Esslingen gehört zu den einkommensstärksten Regionen Baden-Württembergs und weist eine überdurchschnittliche Arbeitsplatzdichte auf.
+++ Nachfrageindikatoren für temporäres Wohnen: +++
- Hoher Anteil an Berufspendlern und Projektbeschäftigten
- Nachfrage durch mittelständische Unternehmen, Industrie, Handwerk und Dienstleister
- Studierenden- und Weiterbildungsstandort (Hochschule Nürtingen-Geislingen)
- Zunehmender Bedarf an möblierten Wohnungen auf Zeit
Gerade im Segment der Kurz- und Langzeitvermietung besteht ein strukturelles Angebotsdefizit, da klassische Wohnungsbestände überwiegend auf Dauerwohnen ausgelegt sind und flexible Nutzungskonzepte kaum abdecken.
+++ Miet- und Ertragsperspektive: +++
- überdurchschnittliche Auslastungsquoten bei möblierten Einheiten
- höhere Monatsmieten pro m² im Vergleich zu peripheren Lagen
- geringere Leerstandsrisiken durch breite Zielgruppenansprache
Für Boardinghouse-ähnliche Konzepte lassen sich marktüblich stabile Cashflows mit kurzer Wiedervermietungsdauer realisieren.
+++ Verkehr & Infrastruktur als Renditefaktor: +++
- Bahnhof mit direkter Anbindung Richtung Stuttgart
- Gute Erreichbarkeit der B27 / A8
- Vollständige innerstädtische Infrastruktur (Einkauf, Gastronomie, Ärzte, Dienstleistungen)
- Hohe Standortakzeptanz bei zeitlich befristeten Mietern
Diese Faktoren wirken sich direkt auf Vermietungsgeschwindigkeit, Mietpreisniveau und Exit-Fähigkeit aus.
Sonstige Angaben
Eine Besichtigung ist nach Absprache in unserer Begleitung möglich. Alle genannten Angaben zum Objekt beruhen auf den Angaben des Eigentümers, für deren Richtigkeit wir keine Gewähr übernehmen können. Bei Abschluss eines Kaufvertrags wird eine Provision in Höhe von 3,57 % inkl. 19 % gesetzlicher MwSt. an uns fällig.