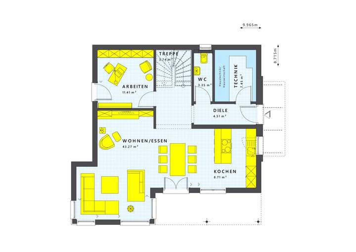
Diese beeindruckende Stadtvilla in Braunschweig bietet dir ein individuelles Wohnkonzept, das nach deinen persönlichen Wünschen und Vorstellungen realisiert wird. Mit einer großzügigen Wohnfläche von 145,38 m² und insgesamt 6 Zimmern, darunter 3 Schlafzimmer und ein modernes Badezimmer, ist diese Immobilie ideal für Familien und aktive Lebensstile. Das coole Walmdach sorgt für eine angenehme Deckenhöhe im Obergeschoss und ermöglicht dir den Zugang zu einem großen Balkon, der gleichzeitig als Überdachung für deinen Freisitz dient. Der Balkon ist harmonisch in den Übereck-Erker integriert, wodurch dein Wohn- und Essbereich im Erdgeschoss auf über 43 Quadratmeter vergrößert wird. Dies schafft ein lichtdurchflutetes und einladendes Ambiente, das zum Verweilen einlädt.
LivingHaus bietet dir zahlreiche zusätzliche Leistungen, um dein Bauprojekt so reibungslos wie möglich zu gestalten. Die Traumküche wird speziell auf deinen Grundriss angepasst und enthält modernste Technik sowie clevere Stauraumlösungen, damit du sofort nach dem Einzug loskochen kannst. Mit dem Living Haus Bau-Cockpit hast du jederzeit den Überblick über dein Bauprojekt - alles ist digital und einfach zugänglich, was dir hilft, stressfrei zu bauen.
Das I-KON-Konzept sorgt dafür, dass dein Zuhause nicht nur modern, sondern auch energieeffizient ist. Das I-KON Effizienzhaus 55 benötigt nur 55 % der Energie eines Standardhauses, was nicht nur der Umwelt zugutekommt, sondern auch deine Energiekosten senkt. Dank des Zuhause-Darlehens kannst du dein Traumhaus zu einem besonders günstigen Zinssatz finanzieren, während das Zuhause-Paket dir eine hochwertige Grundausstattung mit modernen Böden, edlen Türen und stilvollen Sanitäranlagen bietet.
Für die DIY-Enthusiasten unter euch bietet das DIY-Ausbau-Coaching die Möglichkeit, den Innenausbau selbst in die Hand zu nehmen. In nur drei Tagen lernst du von Experten, wie du dein Zuhause nach deinen Vorstellungen gestalten kannst. Mit LivingHaus erhältst du nicht nur ein durchdachtes Konzept, sondern auch die Unterstützung, die du benötigst, um deine Wohnträume zu verwirklichen.
Dein individuelles Traumhaus in Braunschweig - mit LivingHaus zum perfekten Zuhause
38108 Braunschweig
Die vollständige Adresse der Immobilie erhalten Sie vom Anbieter.
Auf Karte anzeigen
Die vollständige Adresse der Immobilie erhalten Sie vom Anbieter.
Finanzierungszertifikat
In nur zwei Minuten zu Ihrem persönlichen Finanzierungszertifkat.
Infos
| Haustyp | Einfamilienhaus |
|---|---|
| Etagenzahl | 2 |
| Wohnfläche ca. | 145 m2 |
| Nutzfläche | 145,38 m2 |
| Grundstücksfläche | 547 m2 |
| Zimmer | 6 |
| Schlafzimmer | 3 |
| Badezimmer | 1 |
Kosten
| Kaufpreis |
635.333 € |
|---|
Finanzierungsrechner:
Kaufpreis:
600.000 €
Eigenkapital:
600.000 €
Monatliche Rate
0 €
Effektiver Jahreszins
0 %
Sollzinsbindung
10 Jahre
Bausubstanz & Energieausweis
| Baujahr | 2026 |
|---|---|
| Bauphase | Haus in Planung (projektiert) |
| Qualität der Austattung | Gehoben |
| Energieausweis | liegt vor |
| Energieausweistyp | Bedarfsausweis |
| Energieverbrauchskennwert | 18,0 kWh/(m²*a) |
| Energieeffizienzklasse | A+ |
18,0
kWh/(m²*a)
Energieeffizienzklasse A+
- A+
- A
- B
- C
- D
- E
- F
- G
- H
- 0
- 25
- 50
- 75
- 100
- 125
- 150
- 175
- 200
- 225
- >250
Beschreibung des Objekts
Ausstattung
Dein neues Zuhause bietet dir eine Vielzahl an hochwertigen Ausstattungsmerkmalen. Die Grundausstattung umfasst moderne Böden, edle Innentüren und stilvolle Sanitäranlagen, die optimal aufeinander abgestimmt sind. Du erhältst eine Küche, die individuell geplant und auf deinen Grundriss abgestimmt ist, ohne dass du dich mit Gutscheinen herumschlagen musst. Zusätzlich profitierst du von einer hochwertigen Dämmung, die für ein angenehmes Raumklima sorgt. Die Energieeffizienz wird durch eine moderne Wärmepumpentechnik mit Komfortlüftung und Wärmerückgewinnung gewährleistet. Große Fenster sorgen für viel Licht und eine angenehme Atmosphäre. Das DIY-Ausbau-Coaching ermöglicht es dir, persönliche Akzente zu setzen und dein Zuhause nach deinen Vorstellungen zu gestalten. Mit LivingHaus realisierst du dein "Wie ich es will Fertighaus".
Lage
Braunschweig bietet dir eine hervorragende Lebensqualität mit einer Vielzahl an Bildungseinrichtungen, Gesundheitsangeboten und Freizeitmöglichkeiten. In unmittelbarer Nähe findest du mehrere Schulen, wie die Grundschule im Westlichen Ringgebiet, die für ihre gute Betreuung und moderne Ausstattung bekannt ist. Kindergärten sind ebenfalls zahlreich vorhanden, sodass du für die Kleinsten eine optimale Betreuung sicherstellen kannst.
Für den täglichen Einkauf stehen dir zahlreiche Supermärkte wie REWE, EDEKA und ALDI zur Verfügung, die alle in wenigen Minuten erreichbar sind. Auch Ärzte und Apotheken sind in der Nähe, sodass du und deine Familie stets gut versorgt sind. Freizeitangebote wie der Bürgerpark und der Stadtwald laden zu ausgedehnten Spaziergängen und Aktivitäten im Freien ein, während das nahegelegene Theater und diverse Museen kulturelle Abwechslung bieten.
Die Anbindung an den öffentlichen Nahverkehr ist ebenfalls ausgezeichnet, mit mehreren Buslinien, die dich schnell ins Stadtzentrum bringen. Die Autobahn A39 ist in wenigen Minuten erreichbar, was Pendlern eine unkomplizierte Anreise zur Arbeit ermöglicht. Braunschweig ist somit nicht nur ein Ort zum Wohnen, sondern ein Ort, der Lebensqualität, Bildung und Freizeitvergnügen in einem vereint.
Grundriss
Gestaltungsbeispiel EG
>
>
Gestaltungsbeispiel DG
>
>
Adresse
38108 Braunschweig
Interessante Orte
Preis- und Lageinformationen
Preistrend für Bestandsimmobilien in Wabe-Schunter