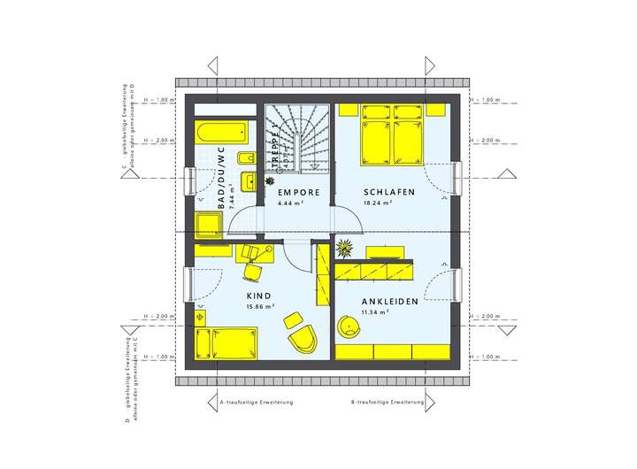
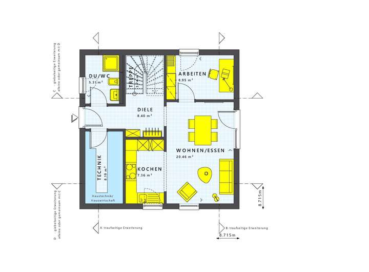
Dein zukünftiges Zuhause in Braunschweig ist ein einzigartiges Fertighaus, das ganz nach deinen Wünschen und Vorstellungen projektiert wird. Mit 124 Quadratmetern Wohnfläche und fünf Zimmern, darunter drei Schlafzimmer, bietet es ausreichend Raum für die ganze Familie. Das Haus glänzt durch ein klassisches Satteldach mit einer Neigung von 38 Grad, das nicht nur optisch ansprechend ist, sondern auch für eine optimale Raumausnutzung sorgt. Durch den Einsatz eines Erkers oder Giebels kannst du deinen Wohnbereich zusätzlich vergrößern, während bodentiefe Fenster für einen lichtdurchfluteten Wohnraum sorgen und ein Gefühl von Offenheit und Freiheit vermitteln.
LivingHaus bietet dir zahlreiche zusätzliche Leistungen, die dein Bauprojekt zu einem stressfreien Erlebnis machen. Beginnen wir mit der Traumküche von LivingHaus, die perfekt auf deinen Grundriss abgestimmt ist. Sie vereint moderne Technik, clevere Stauraumlösungen und ästhetisches Design, sodass du sofort nach dem Einzug mit dem Kochen beginnen kannst.
Mit dem LivingHaus Bau-Cockpit hast du dein Bauprojekt stets im Blick. Die digitale App ermöglicht dir eine einfache Einsicht in Zeitpläne, Dokumente und alle wichtigen Informationen, was den Bauprozess enorm erleichtert.
Das Konzept I-KON - Intelligentes Bauen sorgt dafür, dass dein Zuhause nicht nur nachhaltig ist, sondern auch energiesparend. Mit dem I-KON Effizienzhaus 55 benötigst du nur 55 % der Energie eines herkömmlichen Standardhauses.
Wenn es um die Finanzierung geht, stellt dir das Zuhause-Darlehen bis zu 250.000 EUR zu einem besonders günstigen Zinssatz zur Verfügung. So profitierst du von attraktiven Konditionen und staatlichen Förderprogrammen.
Das Zuhause-Paket bietet dir eine hochwertige Grundausstattung, einschließlich moderner Böden, edler Türen und stilvoller Sanitäranlagen, die allesamt perfekt aufeinander abgestimmt sind.
Zusätzlich hast du die Möglichkeit, mit dem DIY-Ausbau-Coaching zum Profi im Innenausbau deines eigenen Zuhauses zu werden. In nur drei Tagen erhältst du praxisnahe Tipps und Unterstützung von Experten.
Mit LivingHaus erhältst du ein durchdachtes Gesamtkonzept, das dir nicht nur hilft, dein Traumhaus zu verwirklichen, sondern auch dafür sorgt, dass alles reibungslos abläuft.
Gestalte dein individuelles Traumhaus mit LivingHaus in Braunschweig
38110 Braunschweig
Die vollständige Adresse der Immobilie erhalten Sie vom Anbieter.
Auf Karte anzeigen
Die vollständige Adresse der Immobilie erhalten Sie vom Anbieter.
Finanzierungszertifikat
In nur zwei Minuten zu Ihrem persönlichen Finanzierungszertifkat.
Infos
| Haustyp | Einfamilienhaus |
|---|---|
| Etagenzahl | 2 |
| Wohnfläche ca. | 124 m2 |
| Nutzfläche | 124 m2 |
| Grundstücksfläche | 590 m2 |
| Zimmer | 5 |
| Schlafzimmer | 3 |
| Badezimmer | 1 |
Kosten
| Kaufpreis |
583.541 € |
|---|
Finanzierungsrechner:
Kaufpreis:
600.000 €
Eigenkapital:
600.000 €
Monatliche Rate
0 €
Effektiver Jahreszins
0 %
Sollzinsbindung
10 Jahre
Bausubstanz & Energieausweis
| Baujahr | 2026 |
|---|---|
| Bauphase | Haus in Planung (projektiert) |
| Qualität der Austattung | Gehoben |
| Energieausweis | liegt vor |
| Energieausweistyp | Bedarfsausweis |
| Energieverbrauchskennwert | 18,0 kWh/(m²*a) |
| Energieeffizienzklasse | A+ |
18,0
kWh/(m²*a)
Energieeffizienzklasse A+
- A+
- A
- B
- C
- D
- E
- F
- G
- H
- 0
- 25
- 50
- 75
- 100
- 125
- 150
- 175
- 200
- 225
- >250
Beschreibung des Objekts
Ausstattung
Die Ausstattung deines neuen Lebensraums umfasst eine Vielzahl von hochwertigen Materialien und modernen Lösungen. Du erhältst eine umfassende Grundausstattung, die unter anderem moderne Böden, stilvolle Türen und hochwertige Sanitäranlagen beinhaltet. Die Innenausbaumaterialien sind im Zuhause-Paket enthalten und garantieren eine perfekte Abstimmung. Zusätzlich kannst du dich auf eine individuelle Planung deiner Küche freuen, die keine unerwünschten Gutscheine erfordert. Das DIY-Ausbau-Coaching ermöglicht es dir, die Innenausstattung selbst in die Hand zu nehmen, während du von Experten angeleitet wirst. Der hohe Vorfertigungsgrad sorgt für einen effizienten Bauprozess, und du profitierst von einer 18-monatigen Festpreisgarantie sowie umfassenden Versicherungen. Dein »Wie ich es will Fertighaus« ist in greifbarer Nähe!
Lage
Braunschweig bietet dir eine herausragende Lebensqualität mit einem breiten Spektrum an Bildungseinrichtungen, Gesundheitsangeboten und Freizeitmöglichkeiten. Schulen wie die Grundschule Wenden und das Gymnasium Martino-Katharineum sind in der Nähe und genießen hervorragende Bewertungen. Für die Kleinsten stehen zahlreiche Kindergärten zur Verfügung, darunter die Kita Pusteblume und die Kita Kunterbunt, die bei Eltern sehr beliebt sind.
Einkaufsmöglichkeiten sind mit dem Einkaufszentrum Schlossarkaden und verschiedenen Supermärkten wie REWE und EDEKA gut abgedeckt. Ärzte und Apotheken sind ebenfalls in der Umgebung leicht erreichbar, sodass du immer bestens versorgt bist.
Die Freizeitangebote sind vielseitig: Ob im Bürgerpark, der sich ideal für entspannte Spaziergänge eignet, oder im nahegelegenen Naturpark Elm, wo du ausgedehnte Wanderungen unternehmen kannst. Braunschweig überzeugt auch durch seine gute Anbindung an den öffentlichen Nahverkehr, sodass du schnell in die Innenstadt gelangst. Die Autobahn A39 ist ebenfalls in der Nähe und ermöglicht dir eine unkomplizierte Anbindung an die umliegenden Städte und die Region.
Adresse
38110 Braunschweig
Interessante Orte
Preis- und Lageinformationen
Preistrend für Bestandsimmobilien in Wenden-Thune-Harxbüttel