Willkommen in deinem zukünftigen Zuhause, einem großzügigen Fertighaus mit 201,37 m² Wohnfläche, das genau nach deinen Wünschen und Vorstellungen projektiert wird. Mit einer stilvollen Satteldachkonstruktion und einer Neigung von 25 Grad strahlt das Haus Eleganz und Modernität aus. Die Übereck-Erker sorgen für einen lichtdurchfluteten Wohn- und Essbereich im Erdgeschoss, der viel Platz für unvergessliche Momente mit Familie und Freunden bietet.
Hier wirst du das Gefühl von Zuhause spüren. Die durchdachte Architektur ermöglicht dir ein Wohnen auf zwei Etagen, mit insgesamt sieben Zimmern, darunter fünf Schlafzimmer und ein Badezimmer. Du kannst deine Räume ganz nach deinem Geschmack gestalten und einrichten. Die individuelle Planung ermöglicht es dir, jedes Detail deines neuen Zuhauses zu bestimmen.
Zusätzlich zu deinem Traumhaus bietet LivingHaus eine Vielzahl von Dienstleistungen, die das Bauprojekt noch einfacher und stressfreier gestalten. Mit der Traumküche von LivingHaus erhältst du eine maßgeschneiderte Küche, die nicht nur ästhetisch ansprechend ist, sondern auch mit modernster Technik und cleveren Stauraumlösungen ausgestattet ist. Sie wird rechtzeitig zum Einzug geliefert, sodass du sofort mit dem Kochen beginnen kannst.
Das Living Haus Bau-Cockpit ist eine praktische App, die dir hilft, den Überblick über dein Bauprojekt zu behalten. Von der Zeitplanung bis hin zur Dokumentenverwaltung hast du alles digital und einfach zugänglich. Das I-KON - Intelligentes Bauen Konzept sorgt dafür, dass dein neues Zuhause energieeffizient und umweltfreundlich ist, während du von einem Effizienzhaus 55 profitierst, das nur 55 % der Energie eines Standardhauses benötigt.
Das Zuhause-Darlehen bietet dir attraktive Finanzierungsmöglichkeiten, mit einem Kredit von bis zu 250.000 EUR zu einem besonders günstigen Zinssatz, sodass du deinen Traum vom eigenen Haus verwirklichen kannst. Im Zuhause-Paket erhältst du eine hochwertige Grundausstattung, die moderne Böden, edle Türen und stilvolle Sanitäranlagen umfasst. Das DIY-Ausbau-Coaching ermöglicht es dir, den Innenausbau selbst zu gestalten und dabei wertvolle Tipps von Experten zu erhalten. So wirst du zum Profi in deinem eigenen Zuhause!
Dein individuelles Traumhaus in Braunschweig - Fertighaus von LivingHaus
38108 Braunschweig
Die vollständige Adresse der Immobilie erhalten Sie vom Anbieter.
Auf Karte anzeigen
Die vollständige Adresse der Immobilie erhalten Sie vom Anbieter.
Finanzierungszertifikat
In nur zwei Minuten zu Ihrem persönlichen Finanzierungszertifkat.
Infos
| Haustyp | Einfamilienhaus |
|---|---|
| Etagenzahl | 2 |
| Wohnfläche ca. | 201 m2 |
| Nutzfläche | 201,37 m2 |
| Grundstücksfläche | 725 m2 |
| Zimmer | 7 |
| Schlafzimmer | 5 |
| Badezimmer | 1 |
Kosten
| Kaufpreis |
665.408 € |
|---|
Finanzierungsrechner:
Kaufpreis:
600.000 €
Eigenkapital:
600.000 €
Monatliche Rate
0 €
Effektiver Jahreszins
0 %
Sollzinsbindung
10 Jahre
Bausubstanz & Energieausweis
| Baujahr | 2026 |
|---|---|
| Bauphase | Haus in Planung (projektiert) |
| Qualität der Austattung | Gehoben |
| Energieausweis | liegt vor |
| Energieausweistyp | Bedarfsausweis |
| Energieverbrauchskennwert | 18,0 kWh/(m²*a) |
| Energieeffizienzklasse | A+ |
18,0
kWh/(m²*a)
Energieeffizienzklasse A+
- A+
- A
- B
- C
- D
- E
- F
- G
- H
- 0
- 25
- 50
- 75
- 100
- 125
- 150
- 175
- 200
- 225
- >250
Beschreibung des Objekts
Ausstattung
Dein Fertighaus verfügt über eine Vielzahl von hochwertigen Ausstattungsmerkmalen, die dein Wohnerlebnis auf ein neues Level heben. Du profitierst von einer modernen, individuell geplanten Küche, die keine Wünsche offenlässt. Hochwertige Böden, stilvolle Türen und edle Sanitäranlagen sind Teil der Grundausstattung. Die intelligente I-KON-Technologie sorgt für optimale Energieeffizienz und ein angenehmes Raumklima. Zudem hast du die Wahl, die Innenräume nach deinen Vorstellungen zu gestalten. Mit der DIY-Ausbau-Coaching-Möglichkeit kannst du deinen Innenausbau selbst in die Hand nehmen und durch Expertenwissen erweitern. Dein Zuhause wird durchdacht und sicher realisiert, sodass es wirklich "Wie ich es will" ist.
Lage
Braunschweig bietet dir eine ideale Lage für dein neues Zuhause. In der Umgebung findest du zahlreiche Schulen, darunter die Grundschule Heiliges Kreuz und das Gymnasium Raabeschule, die beide mit guten Bewertungen ausgestattet sind. Für die Kleinsten gibt es viele Kindergärten wie den Städtischen Kindergarten in der Innenstadt, der für seine liebevolle Betreuung bekannt ist.
Einkaufsmöglichkeiten sind in unmittelbarer Nähe vorhanden, darunter Supermärkte wie EDEKA und REWE, die bequem mit dem Auto oder öffentlichen Verkehrsmitteln erreichbar sind. Die Gesundheitsversorgung ist ebenfalls hervorragend, mit mehreren Arztpraxen und dem nahegelegenen Städtischen Klinikum Braunschweig, das für seine hohe Versorgungsqualität geschätzt wird.
Freizeitangebote sind vielfältig: Die Stadt bietet zahlreiche Parks und Grünflächen wie den Bürgerpark und den Botanischen Garten, die sich hervorragend für Spaziergänge und Entspannung eignen. Für Familien gibt es verschiedene Freizeitaktivitäten, darunter das Heidbergstadion und das Schloss Arkaden, die zahlreiche Veranstaltungen und Freizeitmöglichkeiten bieten.
Die Anbindung an den öffentlichen Nahverkehr ist ausgezeichnet, mit mehreren Buslinien und Straßenbahnhaltestellen in der Nähe. Auch die Autobahn A39 ist schnell erreichbar, was die Anreise nach Wolfsburg oder Hannover zum Kinderspiel macht. Braunschweig ist somit der ideale Standort für Familien, Naturliebhaber und Pendler, die das Stadtleben mit einer hohen Lebensqualität verbinden möchten.
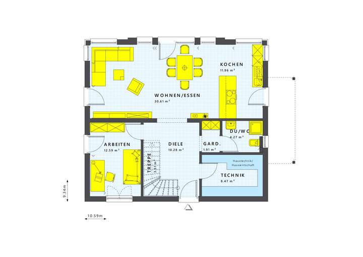
Grundriss
Grundriss EG
>
>
Grundriss OG
>
>
Adresse
38108 Braunschweig
Interessante Orte
Preis- und Lageinformationen
Preistrend für Bestandsimmobilien in Schunteraue