Sie suchen ein Haus mit dem "gewissen Etwas"? Dann ist das EVOLUTION 148 V2 genau das Richtige! Besonders reizvoll sind die perfekten Symmetrien, die dem Auge schmeicheln und Ruhe und Harmonie ausstrahlen. Das beginnt bei der Anordnung und Größe der Architekturelemente und reicht bis hin zur Farbgestaltung. Auf der Traufseite sind es die Fenster in zwei verschiedenen Formaten, die die Symmetrie bestimmen. Der Bereich zwischen den Lichtöffnungen wurde grau abgesetzt. Dadurch entsteht ein schöner Kontrast zur Hauptfarbe Weiß und den warmen Holzfensterrahmen. Gartenseitig liegt ein Erker mit bodentiefen Fenstern und abgeschlepptem Dach auf der Symmetrieachse. Er erstreckt sich über beide Etagen und schafft im Innenraum eine luftige Atmosphäre. Gekrönt wird das Fertighaus von einem steil geneigten Satteldach. Dessen große Dachflächen bieten optimale Voraussetzungen für die Installation einer leistungsfähigen Photovoltaikanlage, die den Großteil des Stromverbrauchs decken kann.
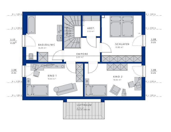
Auf einer Wohnfläche von etwa 150 m² schafft das Haus viel Freiraum für Familien mit bis zu drei Kindern. Der Eingang liegt auf der Traufseite. Hinter der Haustür finden sich Bewohner und Besucher in einer geräumigen Diele wieder, in der sich auch mehrere Personen gleichzeitig aufhalten können, ohne sich gegenseitig auf die Füße zu treten. Jacken und Taschen werden links in der Garderobe abgelegt, an die ein Gäste-WC und der Technikraum angrenzen. Geradeaus gelangt man über einen breiten, offenen Durchgang in den weitläufigen Wohn-, Ess- und Kochbereich, der sich über die gesamte Hauslänge erstreckt. Der lichtdurchflutete Platz im Erker ist wie geschaffen für einen gemütlichen Lesesessel oder zierliche Cocktailmöbel im Vintage-Stil. Komplettiert wird das Raumangebot der unteren Etage von einem flexibel nutzbaren Zimmer. Das Dachgeschoss beherbergt die Ruhe- und Schlafräume. Den zukünftigen Bewohnern stehen zwei gleich große Kinderzimmer, ein heller Schlafraum mit Platz für einen ausladenden Kleiderschrank, ein luxuriöses Bad sowie eine Abstellkammer zur Verfügung.
Angenehme Größe für Ihr freistehendes Haus! Jetzt aber schnell
64367 Mühltal
Die vollständige Adresse der Immobilie erhalten Sie vom Anbieter.
Auf Karte anzeigen
Die vollständige Adresse der Immobilie erhalten Sie vom Anbieter.
Finanzierungszertifikat
In nur zwei Minuten zu Ihrem persönlichen Finanzierungszertifkat.
Infos
| Etagenzahl | 2 |
|---|---|
| Wohnfläche ca. | 148 m2 |
| Grundstücksfläche | 460 m2 |
| Zimmer | 4 |
Kosten
| Kaufpreis |
826.763 € |
|---|
Finanzierungsrechner:
Kaufpreis:
600.000 €
Eigenkapital:
600.000 €
Monatliche Rate
0 €
Effektiver Jahreszins
0 %
Sollzinsbindung
10 Jahre
Bausubstanz & Energieausweis
| Baujahr | unbekannt |
|---|
Beschreibung des Objekts
Ausstattung
Effizienzhaus 55
Wohlfühlklimaheizung mit perfekter Kühlung über die Luft
Smarthome an Bord
Elektrische Rollläden oder Raffstores über smarthome gesteuert
Querhaus für große Fenster im OG
Übereckverglasung
große Fensterfronten bodentief
bodengleiche Dusche
schlüsselfertig bis auf die Möbel
Effizienzhaus 40 QNG möglich, falls Förderung?
Bodenplatte inkl.
Grundstück mit ca. 420 qm in Toplage.
Maklergebühr für Bauplatz eingerechnet
Grundrisse und Größe individuell änderbar!
Keller möglich!
#Abrissanteil ist enthalten!
Lage
Trautheim, ein Ortsteil der Gemeinde Mühltal im Landkreis Darmstadt-Dieburg, bietet eine ruhige Wohnlage mit guter Anbindung und naturnahem Umfeld. Die Infrastruktur ist geprägt durch:
🚉 Verkehrsanbindung: Direkte Nähe zur B449 und gute Busverbindungen nach Darmstadt und Umgebung. Der Bahnhof in Nieder-Ramstadt-Trautheim ermöglicht schnellen Anschluss an den Regionalverkehr.
🛒 Nahversorgung: Supermärkte, Bäckereien und Apotheken sind in wenigen Minuten erreichbar, teils fußläufig. Weitere Einkaufsmöglichkeiten befinden sich im benachbarten Nieder-Ramstadt.
🏫 Bildung & Betreuung: Kindertagesstätten und Grundschulen sind im Ort und in angrenzenden Stadtteilen vorhanden. Weiterführende Schulen befinden sich in Darmstadt.
🏥 Gesundheitsversorgung: Allgemeinmediziner und Fachärzte sind in Mühltal ansässig. Kliniken und größere medizinische Einrichtungen sind in Darmstadt schnell erreichbar.
🌳 Freizeit & Natur: Die Lage im Geo-Naturpark Bergstraße-Odenwald bietet zahlreiche Wander- und Radwege. Sportvereine, Tennisplätze und ein Freibad ergänzen das Freizeitangebot.
🏛️ Kommunale Einrichtungen: Rathaus, Bauhof und Wertstoffhof befinden sich zentral in Mühltal
Grundriss
38727-3273-1-g
>
>
38728-3273-6-g
>
>
Adresse
64367 Mühltal
Interessante Orte
Preis- und Lageinformationen
Preistrend für Bestandsimmobilien in Mühltal