Dieses charmante Einfamilienhaus aus dem Jahr 1900 liegt in ruhiger Wohnlage von Egelsbach und bietet jungen Familien oder Paaren mit Kinderwunsch die ideale Grundlage, sich den Traum vom eigenen Zuhause nach individuellen Vorstellungen zu verwirklichen. Das Haus überzeugt weniger durch Perfektion, sondern vielmehr durch seinen Charakter, seine solide Basis und das große Potenzial, das in ihm steckt.
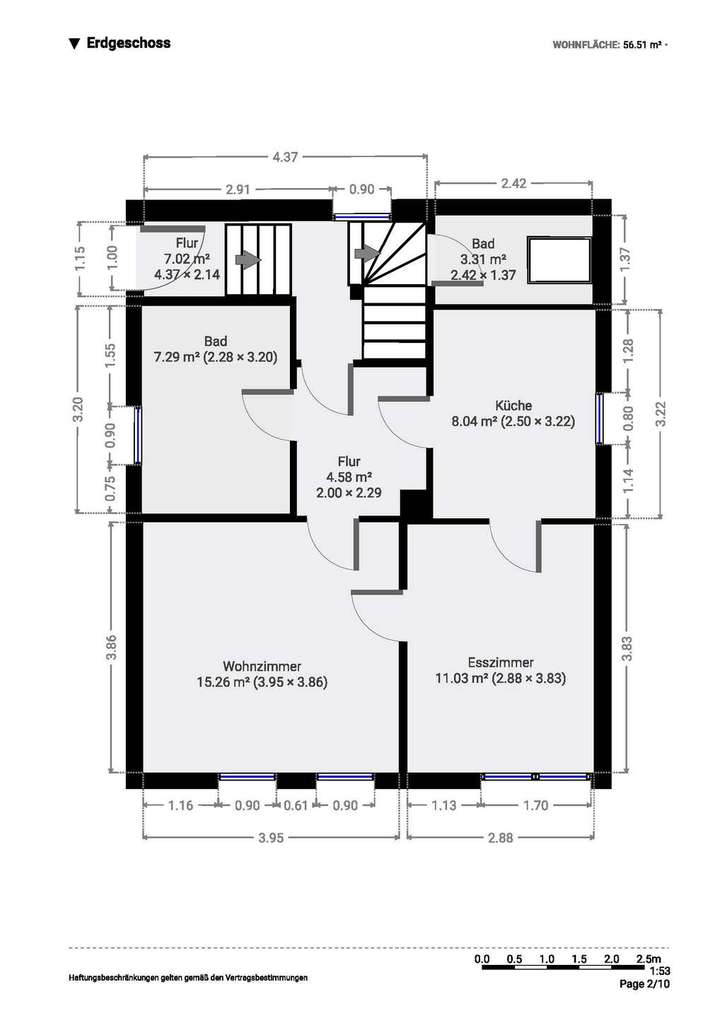
Mit einer Wohnfläche von ca. 94 m² auf einem 184 m² großen Grundstück eröffnet das Objekt vielfältige Gestaltungsmöglichkeiten. Besonders attraktiv für Familien ist das erste Obergeschoss mit drei Schlafzimmern, das ausreichend Platz für Kinder, Homeoffice oder Gäste bietet. Hier lässt sich der Alltag einer jungen Familie flexibel und wohnlich gestalten.
Der Grundriss ist funktional und bietet Raum für gemeinsames Familienleben ebenso wie für Rückzugsmöglichkeiten. Das Haus befindet sich in einem sanierungsbedürftigen Zustand. Für handwerklich begabte Käufer oder Familien, die Freude daran haben, ihr Zuhause Schritt für Schritt zu modernisieren, bietet sich hier eine hervorragende Gelegenheit. Die notwendigen Sanierungen wurden bereits bei der Kaufpreisermittlung berücksichtigt und eröffnen langfristig eine echte Wertsteigerungsperspektive.
Dieses Haus richtet sich an Menschen, die nicht nur ein Objekt suchen, sondern einen Ort, an dem Erinnerungen entstehen können – ein Zuhause, das mit Liebe, Eigenleistung und Kreativität zu einem ganz persönlichen Lebensmittelpunkt wird.
Ein Zuhause mit Charakter – Raum für Ihre Ideen und Visionen
63329 Egelsbach
Die vollständige Adresse der Immobilie erhalten Sie vom Anbieter.
Auf Karte anzeigen
Die vollständige Adresse der Immobilie erhalten Sie vom Anbieter.
Finanzierungszertifikat
In nur zwei Minuten zu Ihrem persönlichen Finanzierungszertifkat.
Infos
| Haustyp | Sonstige |
|---|---|
| Etagenzahl | 2 |
| Wohnfläche ca. | 94 m2 |
| Grundstücksfläche | 184 m2 |
| Zimmer | 5 |
| Schlafzimmer | 4 |
| Badezimmer | 1 |
| Garage/Stellplatz | Garage |
| Anzahl Garage/Stellplatz | 1 |
Kosten
| Kaufpreis |
349.000 € |
|---|---|
| Provision |
3,57% inkl. MwSt. |
Finanzierungsrechner:
Kaufpreis:
600.000 €
Eigenkapital:
600.000 €
Monatliche Rate
0 €
Effektiver Jahreszins
0 %
Sollzinsbindung
10 Jahre
Bausubstanz & Energieausweis
| Baujahr | 1900 |
|---|---|
| Qualität der Austattung | Normal |
| Heizungsart | Gas-Heizung |
| Wesentliche Energieträger | Gas |
| Energieausweis | liegt vor |
| Energieausweistyp | Bedarfsausweis |
| Energieverbrauchskennwert | 337,7 kWh/(m²*a) |
| Energieeffizienzklasse | H |
337,7
kWh/(m²*a)
Energieeffizienzklasse H
- A+
- A
- B
- C
- D
- E
- F
- G
- H
- 0
- 25
- 50
- 75
- 100
- 125
- 150
- 175
- 200
- 225
- >250
Beschreibung des Objekts
Lage
Die Immobilie befindet sich in ruhiger und gewachsener Wohnlage von Egelsbach. Das Umfeld ist überwiegend von Ein- und Mehrfamilienhäusern geprägt und bietet eine angenehme, familienfreundliche Atmosphäre.
Einkaufsmöglichkeiten für den täglichen Bedarf, Bäckereien, Ärzte sowie Kindergärten und Schulen sind in wenigen Minuten erreichbar. Auch Freizeit- und Erholungsmöglichkeiten wie Grünflächen, Sportanlagen und Spazierwege befinden sich in der näheren Umgebung.
Die Anbindung an den öffentlichen Nahverkehr ist gut: Der S-Bahnhof Egelsbach ist schnell erreichbar und bietet eine direkte Verbindung in Richtung Frankfurt und Darmstadt. Zudem ist die Lage verkehrsgünstig an die Bundesstraße B3 sowie die Autobahnen A5 und A661 angebunden, wodurch umliegende Städte und der Flughafen Frankfurt bequem zu erreichen sind.
Insgesamt verbindet die Lage ruhiges Wohnen mit einer guten Infrastruktur und einer hervorragenden regionalen Anbindung.
Grundriss
Grundriss EG
>
>
Grundriss DG
>
>
Adresse
63329 Egelsbach
Interessante Orte
Preis- und Lageinformationen
Preistrend für Bestandsimmobilien in Egelsbach