Objektnr: 1070020
Willkommen in einer außergewöhnlichen Immobilie, die Naturliebhaber, Familien und Individualisten gleichermaßen begeistert. In traumhafter Feldrandlage gelegen, eröffnet sich Ihnen hier ein Anwesen, das mehr ist als nur ein Zuhause,es ist ein Rückzugsort mit Seltenheitswert.
Das Herzstück des Grundstücks ist zweifellos der außergewöhnlich große Fischteich, der aufgrund seiner beeindruckenden Dimensionen fast schon als kleiner See bezeichnet werden kann. Mit einem vorhandenen Steg lädt er dazu ein, die Sonne auf dem Liegestuhl oder am Esstisch direkt am Wasser zu genießen, ob mit der Familie oder in geselliger Runde. Der Teich bietet zudem vielfältige Perspektiven: Eine Umgestaltung zu einem Schwimmteich ist denkbar und verleiht dem Anwesen zusätzlichen Freizeitwert. Im Winter verwandelt sich die Wasserfläche bei entsprechender Witterung in eine ganz besondere Attraktion, Schlittschuhlaufen im eigenen Garten.
Direkt am Teich befindet sich eine liebevoll platzierte Hütte, die ideale Voraussetzungen für gesellige Abende mit Freunden oder Familie bietet. Dank Wärmelampe lässt sich dieser besondere Ort auch in den kühleren Jahreszeiten wunderbar nutzen. Das schön angelegte Grundstück unterstreicht den hohen Erholungsfaktor und schafft eine Atmosphäre der Ruhe und Geborgenheit.
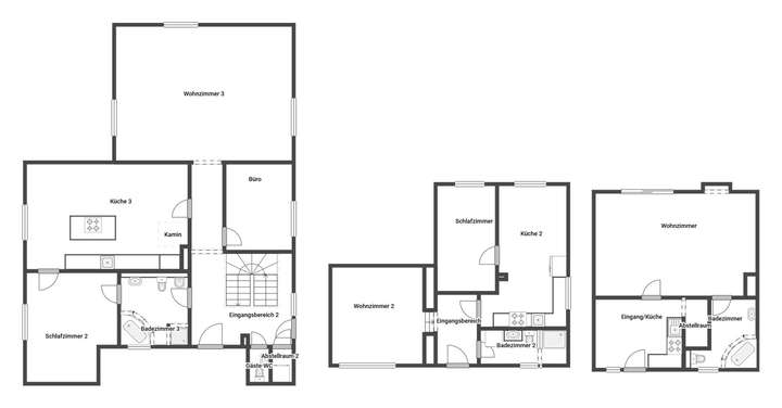
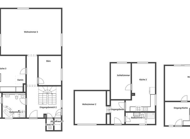
Das Wohnhaus selbst überzeugt durch seine großzügige und vielseitige Raumaufteilung. Neben dem Haupthaus stehen Ihnen zwei separate Einliegerwohnungen mit eigenen Eingängen zur Verfügung, ideal für Mehrgenerationenwohnen, Gäste, Homeoffice oder zur Vermietung.
Das Haupthaus bietet zwei Badezimmer, eine sehr große Küche, ein lichtdurchflutetes Wohnzimmer sowie drei Schlafzimmer, die ausreichend Platz für die ganze Familie bieten.
Ein weiterer großer Vorteil: Außenfassade und Dach sind bereits gedämmt, was sich positiv auf die Energieeffizienz auswirkt. Das Erdgeschoss wurde ursprünglich 1993 als Fischzuchtanlage errichtet und im Jahr 2000 hochwertig zu einem Wohnhaus umgebaut und aufgestockt.
Zusätzlich ist das Haus mit einer Photovoltaikanlage aus dem Jahr 2017 inklusive Batteriespeicher ausgestattet, ein wertvoller Beitrag zu nachhaltigem und zukunftsorientiertem Wohnen.
Es gibt noch viele weitere Details und Besonderheiten, die dieses Anwesen so einzigartig machen und die man am besten vor Ort erlebt.
Ein Ort, an dem Wohnen zur Lebensqualität wird – Natur, Ruhe und besondere Möglichkeiten
64354 Reinheim
Die vollständige Adresse der Immobilie erhalten Sie vom Anbieter.
Auf Karte anzeigen
Die vollständige Adresse der Immobilie erhalten Sie vom Anbieter.
Finanzierungszertifikat
In nur zwei Minuten zu Ihrem persönlichen Finanzierungszertifkat.
Infos
| Haustyp | Einfamilienhaus |
|---|---|
| Etagenzahl | 1 |
| Wohnfläche ca. | 264 m2 |
| Grundstücksfläche | 2.869 m2 |
| Bezugsfrei ab | nach Absprache |
| Zimmer | 7 |
| Schlafzimmer | 6 |
| Badezimmer | 4 |
| Garage/Stellplatz | Carport |
| Anzahl Garage/Stellplatz | 4 |
Kosten
| Kaufpreis |
869.000 € |
|---|---|
| Provision |
3,57 % Die Provision i.H.v. 3,57 % inkl. MwSt. ist mit Kaufvertragsbeurkundung fällig, sofern der Verkaufspreis über 83.000,00 € liegt. Liegt der Verkaufspreis dagegen bei/unter 83.000,00 €, ist die fest vereinbarte Mindestprovision i.H.v. mind. 5.950,00 € inkl. MwSt. mit Kaufvertragsbeurkundung fällig. Die Mindestprovision fällt insg. nur einmal an, wodurch Verkäufer und Käufer die Mindestprovision dann jeweils mit 2.975,00 € inkl. MwSt. tragen. |
Finanzierungsrechner:
Kaufpreis:
600.000 €
Eigenkapital:
600.000 €
Monatliche Rate
0 €
Effektiver Jahreszins
0 %
Sollzinsbindung
10 Jahre
Bausubstanz & Energieausweis
| Baujahr | 2000 |
|---|---|
| Letzte Sanierung | 2017 |
| Bauphase | Haus fertig gestellt |
| Objektzustand | Gepflegt |
| Heizungsart | Zentralheizung |
| Wesentliche Energieträger | Gas |
| Energieausweis | liegt vor |
| Energieausweistyp | Bedarfsausweis |
| Energieverbrauchskennwert | 175,0 kWh/(m²*a) |
| Energieeffizienzklasse | F |
175,0
kWh/(m²*a)
Energieeffizienzklasse F
- A+
- A
- B
- C
- D
- E
- F
- G
- H
- 0
- 25
- 50
- 75
- 100
- 125
- 150
- 175
- 200
- 225
- >250
Beschreibung des Objekts
Ausstattung
+ Rundum ausgestattet: Außenküche, praktisches WC, charmantes Häuschen und Geräteraum
+ Uneinsehbare Garten inkl. Teich auf ca. 2.869 m² Grund
+ Das Objekt präsentiert sich in einem gepflegten Zustand
+ Zwei separate Einliegerwohnungen mit eigenen Eingängen
+ Staufläche im Keller sowie Platz für Pkw dank 2 Carportstellplätze und 2 Freistellplätze
Lage
Lage: Erhöhte Privatsphäre dank Feldrandlage in Reinheim-Spachbrücken - ideal für Ruhesuchende
Bildung und Betreuung: Familienfreundliche Lage dank Kindergarten und Schule in fußläufiger Entfernung
Nahversorgung: Anlaufstellen wie Supermarkt, Apotheke, Postfiliale und Bankfiliale in einem Radius von max. 6 km
Anbindung: Bushaltestelle, Bahnhof und Autobahn komfortabel erreichbar
Sonstige Angaben
Vereinbaren Sie noch heute einen Besichtigungstermin!
_____________________________________________________
Alle Angaben sind ohne Gewähr und basieren ausschließlich auf Informationen, die uns von unserem Auftraggeber zur Verfügung gestellt wurden. Wir übernehmen keine Gewähr für die Vollständigkeit, Richtigkeit und Aktualität der Angaben.
Grundriss
Grundriss Skizze EG
>
>
Grundriss Skizze 1.OG
>
>
Adresse
64354 Reinheim
Interessante Orte
Preis- und Lageinformationen
Preistrend für Bestandsimmobilien in Reinheim