Dieses großzügige Wohnhaus in Niederdorfelden bietet außergewöhnlich viel Platz und spannende Perspektiven – ideal für Familien, Mehrgenerationenwohnen oder Wohnen & Arbeiten unter einem Dach. Auf ca. 258 m² Wohnfläche und einem 638 m² großen Grundstück verbindet die Immobilie Wohnkomfort mit vielseitigen Nutzungsmöglichkeiten.
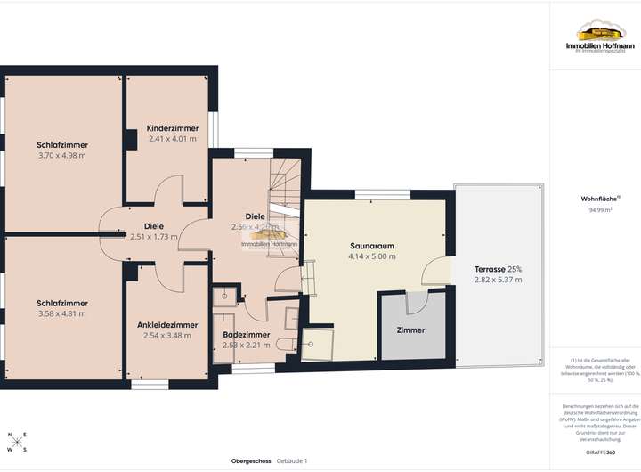
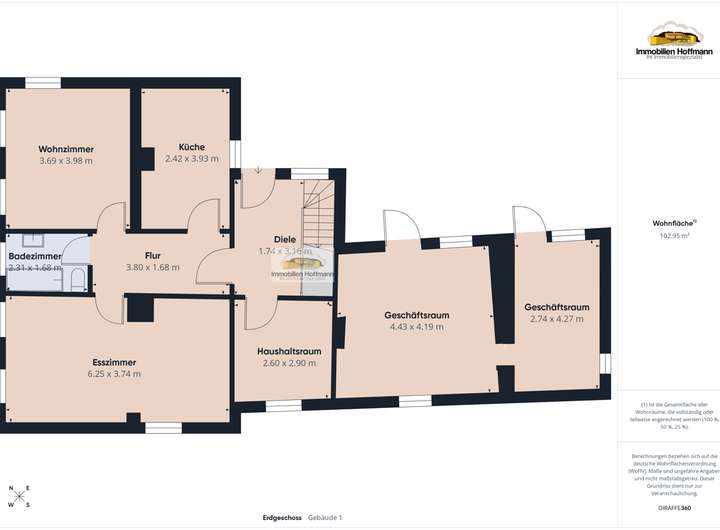
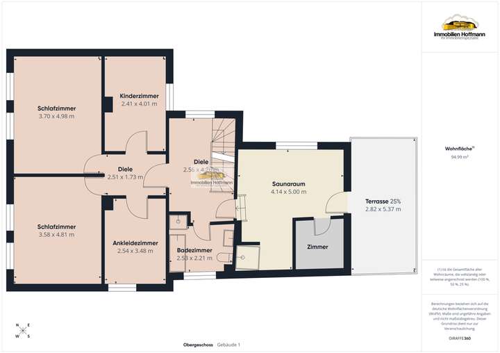
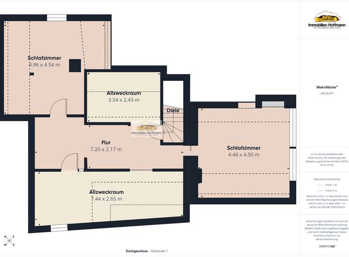
Das Haus wurde 1984 kernsaniert und überzeugt mit einer durchdachten Raumaufteilung, zwei Bädern, einem Saunabereich sowie einem ausgebauten Dachgeschoss, das zusätzliche flexible Fläche für Schlafen, Gäste, Homeoffice oder Hobby schafft.
Ein echtes Plus ist die Scheune, die – je nach baurechtlichen und technischen Voraussetzungen – Potenzial für einen Ausbau zu weiterer Wohnfläche bieten kann. Zusätzlich gibt es einen Gartenbereich, der möglicherweise als zusätzlicher Bauplatz in Betracht kommen könnte. Beide Optionen sind vor einer verbindlichen Planung durch Einsicht in die planungsrechtlichen Vorgaben sowie Abstimmung mit dem zuständigen Bauamt zu klären.
Abgerundet wird das Angebot durch eine Garage und ein Grundstück, das Raum für Alltag, Freizeit und individuelle Ideen bietet.
Niederdorfelden: 258 m² kernsaniert, 2 Bäder, Sauna, Garage & Scheune mit Potenzial
61138 Niederdorfelden
Die vollständige Adresse der Immobilie erhalten Sie vom Anbieter.
Auf Karte anzeigen
Die vollständige Adresse der Immobilie erhalten Sie vom Anbieter.
Finanzierungszertifikat
In nur zwei Minuten zu Ihrem persönlichen Finanzierungszertifkat.
Infos
| Haustyp | Einfamilienhaus |
|---|---|
| Wohnfläche ca. | 258 m2 |
| Nutzfläche | 175 m2 |
| Grundstücksfläche | 638 m2 |
| Zimmer | 20 |
| Schlafzimmer | 9 |
| Badezimmer | 2 |
| Garage/Stellplatz | Garage |
| Anzahl Garage/Stellplatz | 1 |
Kosten
| Kaufpreis |
662.500 € |
|---|---|
| Provision |
3,57 % vom Kaufpreis inkl. 19 % MwSt. |
Finanzierungsrechner:
Kaufpreis:
600.000 €
Eigenkapital:
600.000 €
Monatliche Rate
0 €
Effektiver Jahreszins
0 %
Sollzinsbindung
10 Jahre
Bausubstanz & Energieausweis
| Baujahr | 1927 |
|---|---|
| Objektzustand | Gepflegt |
| Heizungsart | Zentralheizung |
| Wesentliche Energieträger | Öl |
| Energieausweis | liegt vor |
| Energieausweistyp | Bedarfsausweis |
| Energieverbrauchskennwert | 306,0 kWh/(m²*a) |
| Energieeffizienzklasse | H |
306,0
kWh/(m²*a)
Energieeffizienzklasse H
- A+
- A
- B
- C
- D
- E
- F
- G
- H
- 0
- 25
- 50
- 75
- 100
- 125
- 150
- 175
- 200
- 225
- >250
Beschreibung des Objekts
Ausstattung
Ca. 258 m² Wohnfläche
Ca. 638 m² Grundstück
Kernsaniert (1984)
2 Bäder
Saunabereich
Ausgebautes Dachgeschoss
Garage
Scheune mit möglichem Ausbaupotenzial zu Wohnfläche (vorbehaltlich Prüfung/Genehmigung)
Gartenbereich ggf. zusätzlicher Bauplatz (vorbehaltlich Prüfung/Genehmigung)
Viel Platz für Familie, Homeoffice, Gäste und individuelle Nutzungskonzepte
Hinweis
Die Angaben zu Ausbaupotenzial der Scheune und einer möglichen zusätzlichen Bebaubarkeit sind unverbindliche Nutzungsideen. Eine Realisierung ist abhängig von baurechtlichen Vorgaben, Genehmigungen und technischen Voraussetzungen und muss durch Interessenten eigenständig geprüft werden (Bauamt/Bebauungsplan, Statik, Erschließung etc.).
Lage
Niederdorfelden liegt in der attraktiven Rhein-Main-Region und verbindet angenehmes Wohnen in gewachsenem Umfeld mit guter Erreichbarkeit der umliegenden Städte. Die Nähe zur Metropolregion Frankfurt am Main macht den Standort besonders interessant für Pendler und alle, die kurze Wege zu Arbeit, Kultur und Infrastruktur schätzen.
Gleichzeitig bietet Niederdorfelden einen wohnlichen Charakter mit praktischer Versorgung im Alltag sowie einer guten Anbindung an die regionalen Zentren. Ein Standort, der Ruhe und Alltagstauglichkeit mit der Nähe zur Großstadt sinnvoll kombiniert.
Sonstige Angaben
Immobilien Hoffmann GmbH & Co. KG – Ihr Immobilienmakler für Aschaffenburg, Hanau und Umgebung. Seit vielen Jahren sind wir Ihr Ansprechpartner für den Verkauf, Kauf, die Vermietung und Bewertung von Immobilien – persönlich, kompetent und zertifiziert nach DIN ISO 17024.
Alle Angaben stammen vom Eigentümer. Für deren Richtigkeit und Vollständigkeit wird keine Haftung übernommen. Irrtum, Änderungen und Zwischenverkauf bleiben vorbehalten.
Texte, Bilder und Inhalte dieses Exposés sind urheberrechtlich geschützt. Die unerlaubte Nutzung – auch auszugsweise – ist nicht gestattet und wird rechtlich verfolgt.
© 2026 Immobilien Hoffmann GmbH & Co. KG, Karlstein am Main. Alle Rechte vorbehalten.
Tel: 06188/77131
https://www.immobilien-rhoffmann.de
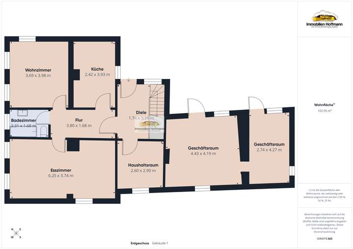
Grundriss
Grundrisse gesamt
>
>
Grundrisse Haus gesamt
>
>
Grundriss KG
>
>
Grundriss EG
>
>
CAM03334G0-PR0034-BUILD01-FLOO
>
>
Grundriss OG
>
>
Grundriss DG
>
>
Grundriss Scheune
>
>
Adresse
61138 Niederdorfelden
Interessante Orte
Preis- und Lageinformationen
Preistrend für Bestandsimmobilien in Niederdorfelden