Keine 150 Meter vom Main entfernt, in einer ruhigen Sackgasse gelegen, erwartet Sie dieses idyllische Einfamilienhaus. Das Haus aus dem Jahr 1907 strahlt historischen Charme aus und wurde zuletzt 2002 modernisiert. Neben gemütlichen ca. 99 m² Wohnfläche verfügt diese Immobilie über einen voll ausgebauten Keller mit ca. 44 m² Nutzfläche sowie zwei Nebengebäude mit zusätzlichen rund 84 m² Nutzfläche. Eine Garage sowie eine großzügige Stellplatzfläche auf dem Grundstück runden das Angebot ab.
Erleben Sie dieses idyllische Anwesen, das Geschichte und Potenzial vereint und aufgrund seiner hervorragenden Lage überzeugt. Ein einzigartiges Zuhause mit vielversprechenden Möglichkeiten erwartet Sie.
Charmantes Haus mit historischem Flair in unmittelbarer Mainnähe
63075 Offenbach am Main
Die vollständige Adresse der Immobilie erhalten Sie vom Anbieter.
Auf Karte anzeigen
Die vollständige Adresse der Immobilie erhalten Sie vom Anbieter.
Finanzierungszertifikat
In nur zwei Minuten zu Ihrem persönlichen Finanzierungszertifkat.
Infos
| Haustyp | Einfamilienhaus |
|---|---|
| Etagenzahl | 2 |
| Wohnfläche ca. | 98 m2 |
| Nutzfläche | 127,92 m2 |
| Grundstücksfläche | 242 m2 |
| Zimmer | 4 |
| Schlafzimmer | 3 |
| Badezimmer | 2 |
| Anzahl Garage/Stellplatz | 2 |
Kosten
| Kaufpreis |
495.000 € |
|---|---|
| Provision |
3.57 % inkl. gesetzl. MwSt. |
Finanzierungsrechner:
Kaufpreis:
600.000 €
Eigenkapital:
600.000 €
Monatliche Rate
0 €
Effektiver Jahreszins
0 %
Sollzinsbindung
10 Jahre
Bausubstanz & Energieausweis
| Baujahr | 1907 |
|---|---|
| Letzte Sanierung | 2002 |
| Objektzustand | Renovierungsbedürftig |
| Wesentliche Energieträger | Gas |
| Energieausweis | liegt vor |
| Energieausweistyp | Bedarfsausweis |
| Energieverbrauchskennwert | 381,7 kWh/(m²*a) |
| Energieeffizienzklasse | H |
381,7
kWh/(m²*a)
Energieeffizienzklasse H
- A+
- A
- B
- C
- D
- E
- F
- G
- H
- 0
- 25
- 50
- 75
- 100
- 125
- 150
- 175
- 200
- 225
- >250
Beschreibung des Objekts
Ausstattung
Fliesen
Teppich
Vollunterkellert
Lage
Offenbach am Main ist mit seinen derzeit rund 140.000 Einwohnern die fünftgrößte hessische Stadt und grenzt unmittelbar an die Rhein-Main-Metropole Frankfurt am Main. Der beliebte und historisch geprägte Stadtteil Bürgel liegt direkt östlich der Innenstadt und bietet familienfreundliche Wohnatmosphäre bei gleichzeitig moderner Infrastruktur. Er verbindet ruhiges Wohnambiente mit guter Anbindung. So ermöglichen die Hauptverkehrsachsen A3 und A661 eine schnelle Verbindung ins Rhein-Main-Gebiet.
In nur drei Minuten gelangen Sie fußläufig zu den Buslinien 101 und 107 und sind so in kürzester Zeit in der Offenbacher Innenstadt oder am S-Bahnhof Offenbach Ost, von wo aus Sie hervorragende Anbindung an die Region erhalten. Radwege entlang des Mains laden zudem zum Pendeln auf zwei Rädern ein. Durch gut ausgebaute Infrastruktur in der Umgebung sind Einkaufsmöglichkeiten, Drogerien, Apotheken, sowie Schulen, Kindertagesstätten und Freizeitangebote schnell erreichbar. Entwicklungspotenzial zeigt sich durch kontinuierliche infrastrukturelle Aufwertungen und Quartiersentwicklungen rund um Offenbach, die langfristig die Wertbeständigkeit erhöhen.
Sonstige Angaben
Kommt auf Grundlage unserer Maklerleistung ein Kaufvertrag über das Objekt zustande, ist der Kunde verpflichtet, eine Maklerprovision in Höhe von 3,57 % einschließlich der gesetzlichen Umsatzsteuer zu zahlen. Die Berechnungsgrundlage für die Provision ist der Gesamtkaufpreis, der sich aus dem Kaufpreis sowie sämtlichen geldwerten Leistungen des Käufers an den Verkäufer ergibt, insbesondere der Übernahme von Grundbuchlasten, Ablösezahlungen für Einrichtungsgegenstände oder sonstige vereinbarte Zusatzleistungen.
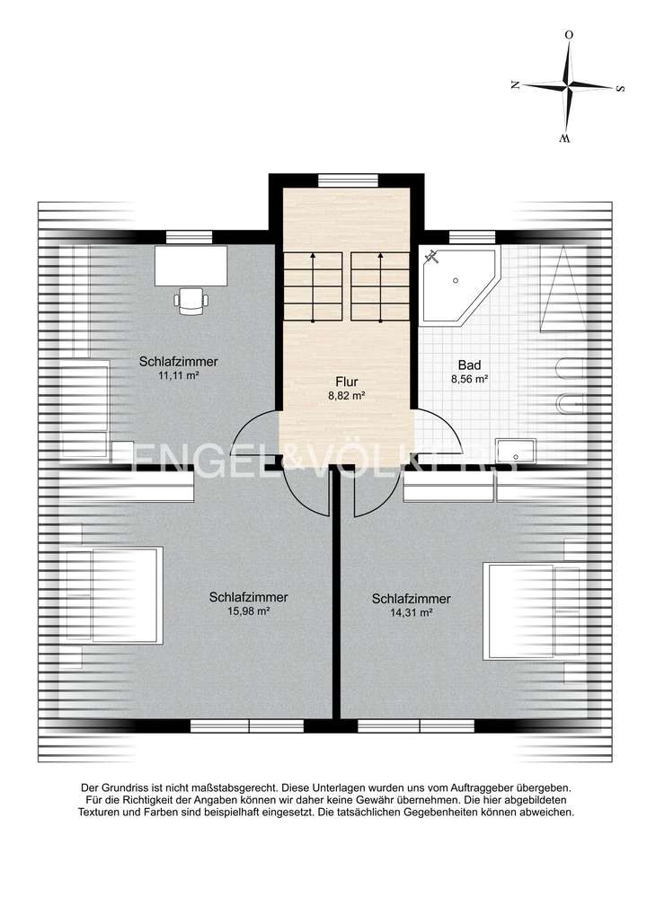
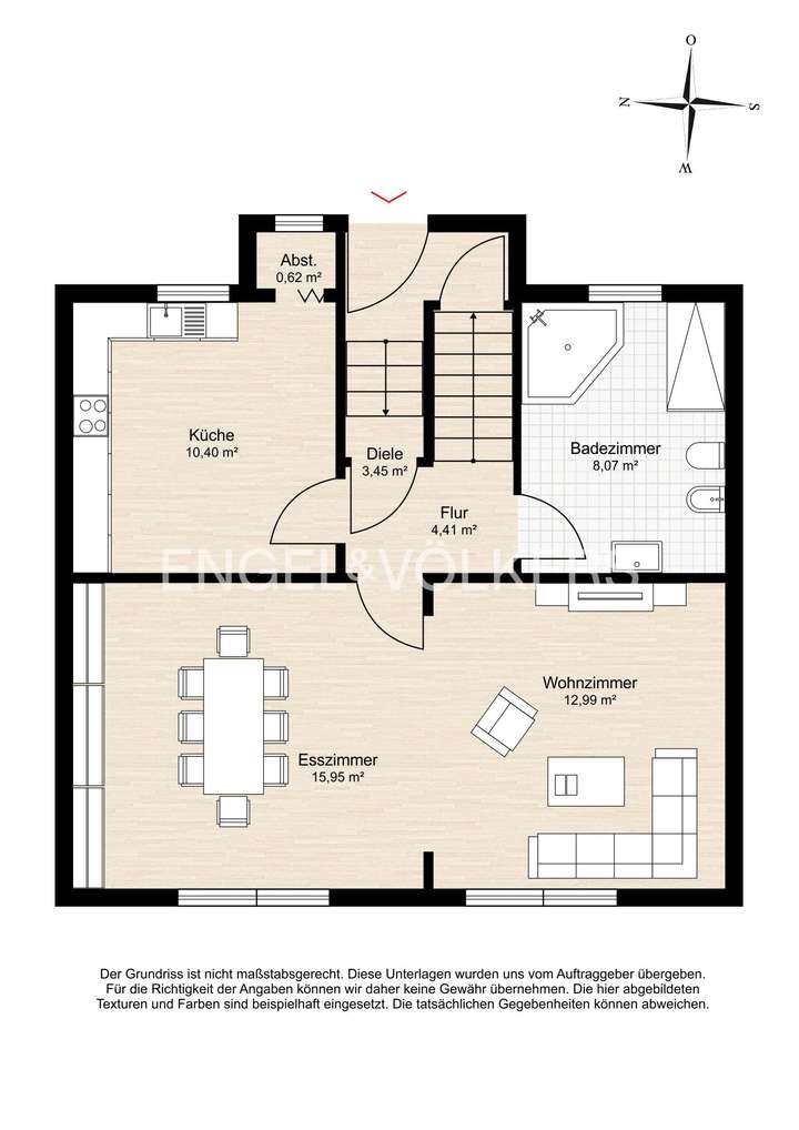
Grundriss
Grundriss Erdgeschoss
>
>
Grundriss Dachgeschoss
>
>
Grundriss Keller
>
>
Adresse
63075 Offenbach am Main
Interessante Orte
Preis- und Lageinformationen
Preistrend für Bestandsimmobilien in Bürgel