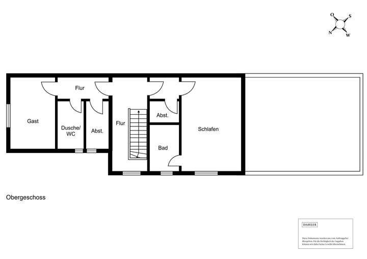
Diese Immobilie überzeugt mit einem großzügigen Raumkonzept und viel Potenzial zur individuellen Gestaltung. Zwei Bäder sowie eine separate Gästetoilette sorgen für hohen Wohnkomfort und eine angenehme Aufteilung – ideal für Familien oder Mehrpersonenhaushalte.
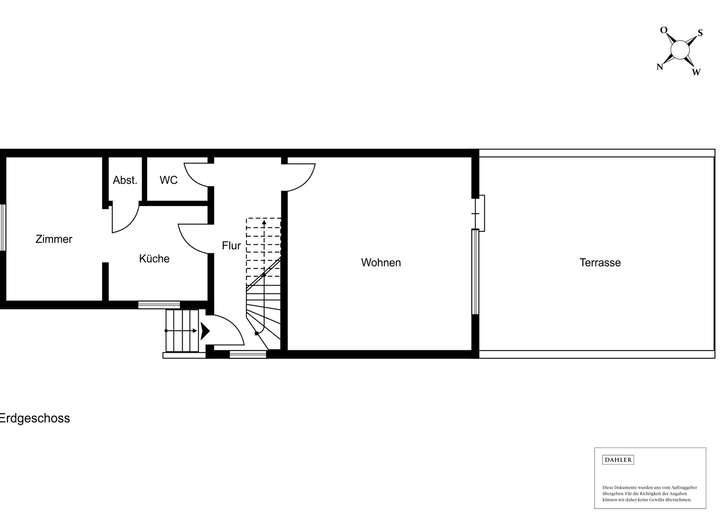
Ein besonderes Highlight ist der weitläufige Garten, der vielfältige Möglichkeiten für Erholung, Freizeit und gärtnerische Gestaltung bietet. Die offene Treppe verleiht dem Wohnbereich eine moderne, luftige Atmosphäre und verbindet die Etagen auf elegante Weise.
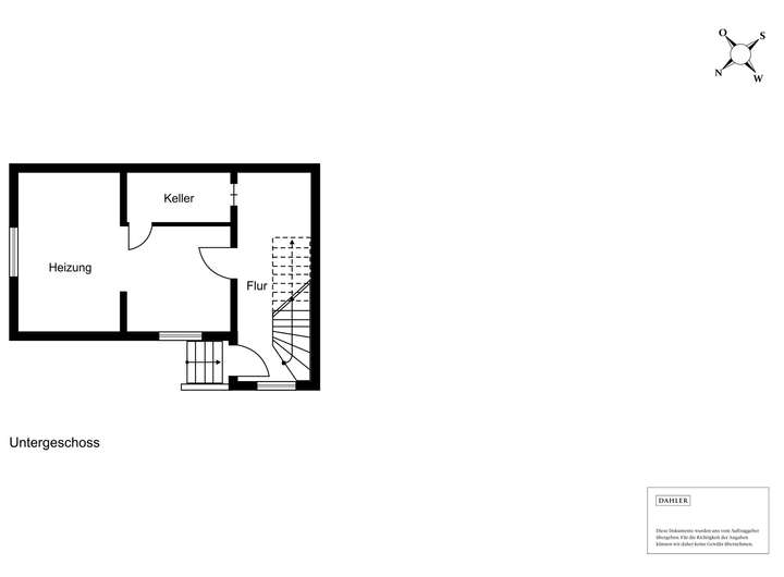
Zusätzlicher Stauraum steht im Keller zur Verfügung, der Platz für Haushaltsgegenstände und Lagerflächen bietet.
Die Immobilie befindet sich in einem sanierungsbedürftigen Zustand und eröffnet dadurch die Möglichkeit, sie nach eigenen Vorstellungen zu modernisieren und individuell zu gestalten.
Charmante Doppelhaushälfte mit großem Traumgrundstück – Ihr neues Zuhause wartet!
63303 Dreieich
Die vollständige Adresse der Immobilie erhalten Sie vom Anbieter.
Auf Karte anzeigen
Die vollständige Adresse der Immobilie erhalten Sie vom Anbieter.
Finanzierungszertifikat
In nur zwei Minuten zu Ihrem persönlichen Finanzierungszertifkat.
Infos
| Haustyp | Doppelhaushaelfte |
|---|---|
| Etagenzahl | 2 |
| Wohnfläche ca. | 158 m2 |
| Nutzfläche | 65 m2 |
| Grundstücksfläche | 656 m2 |
| Bezugsfrei ab | ab sofort |
| Zimmer | 5 |
| Schlafzimmer | 2 |
| Badezimmer | 2 |
| Garage/Stellplatz | Carport |
| Anzahl Garage/Stellplatz | 1 |
Kosten
| Kaufpreis |
499.000 € |
|---|---|
| Provision |
3,57 % inkl. der gesetzl. MwSt., bezogen auf den beurkundeten Kaufpreis |
Finanzierungsrechner:
Kaufpreis:
600.000 €
Eigenkapital:
600.000 €
Monatliche Rate
0 €
Effektiver Jahreszins
0 %
Sollzinsbindung
10 Jahre
Bausubstanz & Energieausweis
| Baujahr | 1935 |
|---|---|
| Objektzustand | Renovierungsbedürftig |
| Heizungsart | Zentralheizung |
| Wesentliche Energieträger | Gas |
Beschreibung des Objekts
Ausstattung
* 2 Bäder für komfortables Wohnen
* Gästetoilette für zusätzlichen Komfort
* Großer Garten mit vielseitigen Nutzungsmöglichkeiten
* Offene Treppe für ein modernes Wohngefühl
* Keller als zusätzliche Abstellfläche
* Sanierungsbedürftig, ideal für individuelle Gestaltung
Lage
Die Immobilie liegt in einer ruhigen, von Natur umgebenen Wohngegend, die durch eine harmonische Mischung aus ländlichem Charme und städtischer Nähe besticht. In unmittelbarer Nähe befindet sich die Wingertschule, eine Ganztagsschule, die sich durch ihr idyllisches Umfeld und ein engagiertes Schulteam auszeichnet.
Die Umgebung ist geprägt von einer freundlichen Nachbarschaft und bietet zahlreiche Möglichkeiten für Freizeitaktivitäten im Grünen. Die Nähe zu Bildungseinrichtungen und die entspannte Atmosphäre machen diesen Ort besonders attraktiv für Familien und all jene, die eine Balance zwischen Naturverbundenheit und urbaner Infrastruktur suchen.Darüber hinaus bietet das Wohngebiet eine hervorragende Verkehrsanbindung für Pendler. In nur wenigen Minuten erreicht man die Autobahn A661, die eine schnelle Verbindung nach Frankfurt am Main und Offenbach ermöglicht. Zudem ist die A3 in kurzer Fahrzeit erreichbar, was den Zugang zu weiteren wichtigen Verkehrsachsen gewährleistet.
Diese Nähe zu den Autobahnen macht den Standort ideal für Berufstätige, die täglich in die umliegenden Städte pendeln, sowie für Familien, die von der guten Erreichbarkeit profitieren möchten und trotzdem ein ruhiges Zuhause suchen.
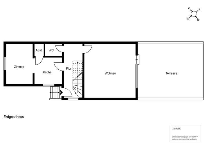
Grundriss
Grundriss KG
>
>
Grundriss EG
>
>
Grundriss OG
>
>
Adresse
63303 Dreieich
Interessante Orte
Preis- und Lageinformationen
Preistrend für Bestandsimmobilien in Dreieich