Im Kundenauftrag bieten wir ein Immobilienpaket von 5 vermieteten Eigentumswohnungen in guter Wohnlage der Stadt Altenburg zum Verkauf an.
Das Objekt besteht aus folgenden Einheiten:
Das Erdgeschoss, eine Gaststätte, gehört nicht zu diesem Verkaufsangebot!
Das Verkaufsangebot beinhaltet folgende Wohneinheiten:
1. OG 3-Raum-Wohnung mit Balkon, 94,79 qm
1. OG 2-Raum-Wohnung mit Balkon, 58,26 qm
2. OG-3-Raum-Wohnung mit Balkon, 72,27.qm
DG. 3-Raum-Wohnung mit Balkon, 70,18 qm
DG. 3-Raum-Wohnung mit Balkon, 69,49 qm
___________
364,99 qm
Wohnungspaket mit 5 vermieteten Eigentumswohnungen in guter Wohngegend von Altenburg zu verkaufen
04600 Altenburg
Die vollständige Adresse der Immobilie erhalten Sie vom Anbieter.
Auf Karte anzeigen
Die vollständige Adresse der Immobilie erhalten Sie vom Anbieter.
Finanzierungszertifikat
In nur zwei Minuten zu Ihrem persönlichen Finanzierungszertifkat.
Infos
| Haustyp | Mehrfamilienhaus |
|---|---|
| Etagenzahl | 4 |
| Wohnfläche ca. | 365 m2 |
| Grundstücksfläche | 462 m2 |
| Bezugsfrei ab | sofort |
| Zimmer | 14 |
| Schlafzimmer | 5 |
| Badezimmer | 5 |
| Garage/Stellplatz | Außenstellplatz |
| Anzahl Garage/Stellplatz | 5 |
Kosten
| Kaufpreis |
329.000 € |
|---|---|
| Provision |
3,57 % inkl. MwSt. |
| Mieteinnahmen | 2.259 € |
Finanzierungsrechner:
Kaufpreis:
600.000 €
Eigenkapital:
600.000 €
Monatliche Rate
0 €
Effektiver Jahreszins
0 %
Sollzinsbindung
10 Jahre
Bausubstanz & Energieausweis
| Baujahr | 1900 |
|---|---|
| Objektzustand | Gepflegt |
| Qualität der Austattung | Normal |
| Heizungsart | Gas-Heizung |
| Wesentliche Energieträger | Gas |
| Energieausweistyp | Verbrauchsausweis |
| Energieverbrauchskennwert | 190,8 kWh/(m²*a) |
| Energieeffizienzklasse | F |
190,8
kWh/(m²*a)
Energieeffizienzklasse F
- A+
- A
- B
- C
- D
- E
- F
- G
- H
- 0
- 25
- 50
- 75
- 100
- 125
- 150
- 175
- 200
- 225
- >250
Beschreibung des Objekts
Ausstattung
Bäder mit Wanne und Fenster
Lage
Die Immobilie befindet sich in ruhiger Lage, ist dennoch sehr zentral.
Der Markt ist in 5 Minuten zu Fuß erreicht. In unmittelbarer Nähe befinden sich verschiedene Einkaufsmöglichkeiten wie Lebensmittel,- und Drogeriemärkte oder Modegeschäfte für Jung und Alt. Weiterhin befinden sich Apotheken, Sparkassen, Eisdielen oder Restaurants auf dem schönen Altenburger Markt.
Der Schlosspark, der Pauritzer Teich, ein Ärztehaus sowie Einkaufsmöglichkeiten für den täglichen Bedarf befinden sich in unmittelbarer Nähe, außerdem sind Schulen, Kindergärten und öffentliche Verkehrsmittel fußläufig in nur wenigen Minuten zu erreichen.
Die Stadt Altenburg liegt im östlichen Zipfel Thüringens und wird von ca. 34.500 Menschen bewohnt.
In nord- westlicher Linie liegt es zwischen den Oberzentren Leipzig und Zwickau.
Zurzeit verkehren von Altenburg S-Bahnen und Regionalexpresse, die die Städte Erfurt, Gera, Halle, Jena, Leipzig, Weimar, Würzburg und Zwickau im 30-Minuten-Takt anfahren.
Überregional ist Altenburg in etwa 15 km Entfernung mit der Bundesautobahn 4 verbunden.
Die Bundesstraßen 7 und 93, sowie 180 verbinden die Stadt mit der Umgebung.
Sonstige Angaben
Rechtlicher Hinweis / Disclaimer:
Wir bitten um Verständnis, dass wir nur vollständig ausgefüllte Emailanfragen mit Vornamen,
Namen, Anschrift, Telefonnummer und Emailadresse beantworten können.
Sie erfahren viel über ein hochwertiges Angebot, deshalb sollte es selbstverständlich sein, dass wir zuvor auch wissen mit wem wir es zu tun haben.
Deshalb ist auch die Zustimmung zum Datenschutz und die Widerrufsbelehrung bindend, bevor wir Ihnen Unterlagen aushändigen und die Anschrift nennen.
Vielen Dank für Ihr Verständnis.
Alle Daten und Fakten, sowie die Fotos und Pläne stammen vom Eigentümer des Objektes.
Wir haben uns vor Ort von der Übereinstimmung überzeugt.
Trotz aller Gründlichkeit können wir für die Richtigkeit und
Vollständigkeit der Angaben keine Haftung übernehmen. Irrtum und Auslassung sowie
Zwischenverkauf und/oder Zwischenvermietung bleiben vorbehalten.
Eine Reservierung kann nur nach schriftlicher Vereinbarung in Absprache mit dem Makler und dem
Eigentümer erfolgen.
Disclaimer / Property offers
Please understand that we will only answer fully completed requests with name, address, telephone
number and email address.
Provided, neither Langer Immobilien GmbH & Co. KG, its officers or employees accept any
responsibility as to the accuracy of the information provided on either this or in any subsequent
communication.
We strongly recommend that each individual investor takes independent professional advice
concerning all aspects of any proposed purchase.
Langer Immobilien GmbH & Co. KG does not take any responsibility for any Professional or other
costs incurred by an investor.
The provision of the information contained in this E-Mail or any subsequent communication is no
indication or proof of Langer Immobilien GmbH & Co. KG’s legal appointment by the owner / vendor
of a proposed investment to market this opportunity exclusively or as one of several appointed
consultants.
Hauptsitz: Langer Immobilien GmbH & Co. KG, Weydingerstraße 14-16, 10178 Berlin - Mitte
Weitere Dokumente
ImpressumDisclaimer PDF
Datenschutz_aktuell
AGB_aktuell_PDF
Objektnachweis
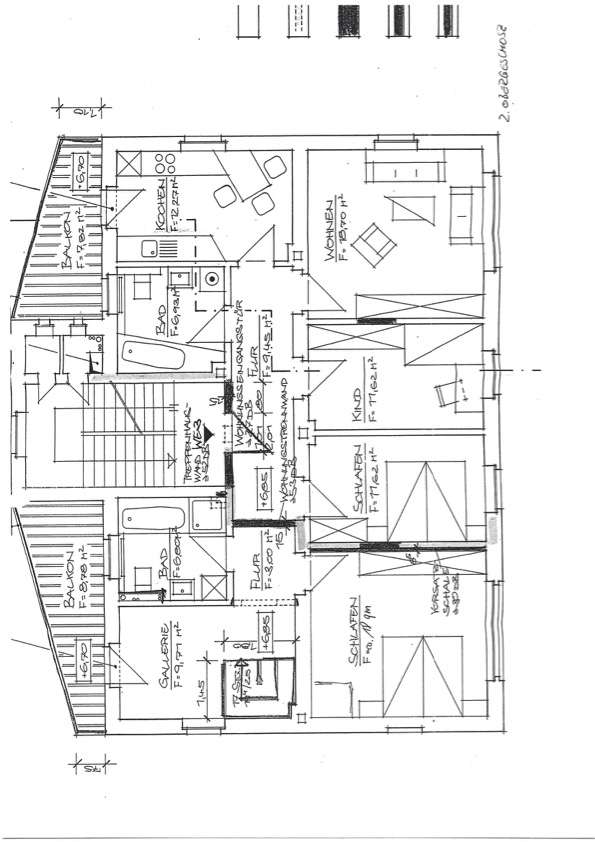
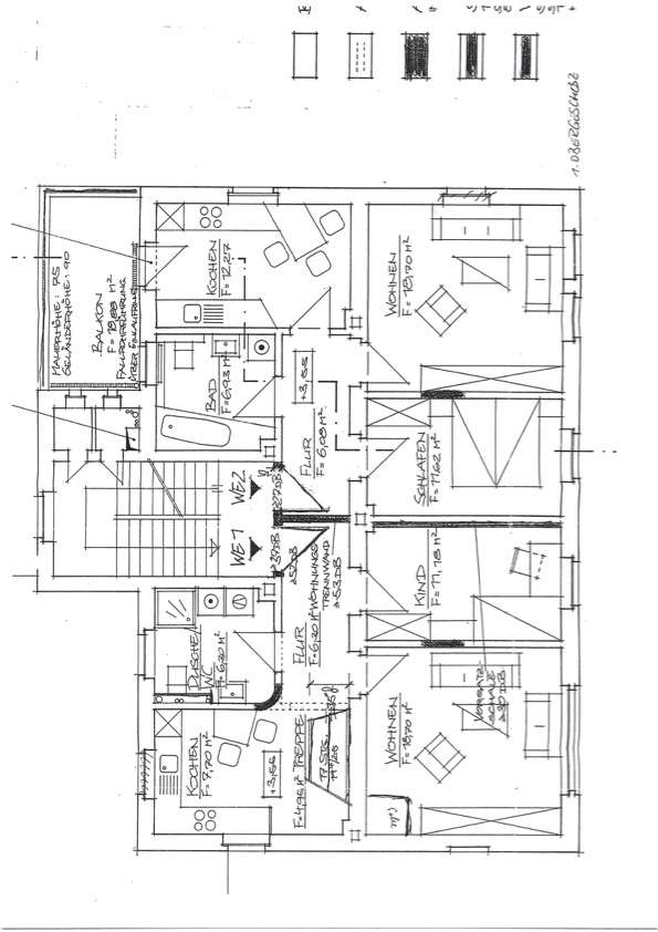
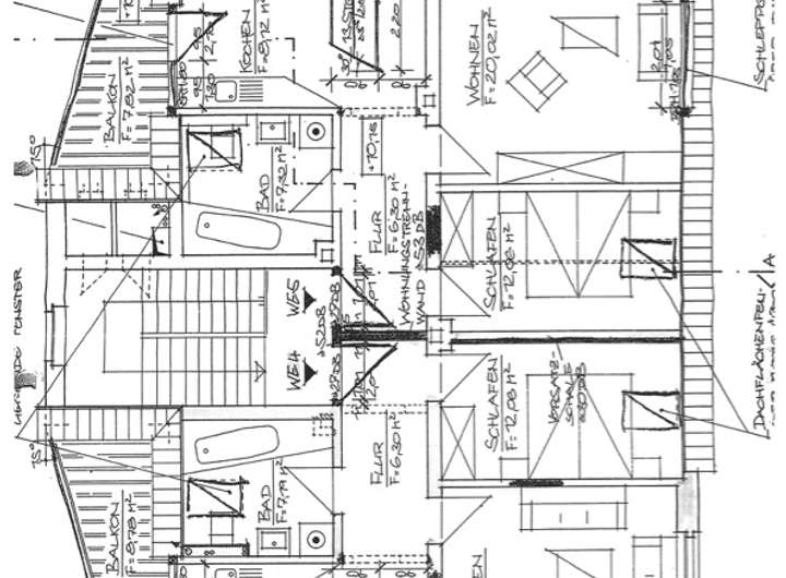
Grundriss
1. Obergeschoss
>
>
2. Obergeschoss
>
>
Dachgeschoss
>
>
Dachspitz
>
>
Adresse
04600 Altenburg
Interessante Orte
Preis- und Lageinformationen
Preistrend für Bestandsimmobilien in Altenburg