Modernes Einfamilienhaus mit Garten, Terrasse & Doppelcarport in Bösel
Objektbeschreibung
Dieses hochwertige und moderne Einfamilienhaus in Bösel überzeugt durch eine klare Architektur, eine großzügige Raumaufteilung sowie einen gepflegten Garten mit Terrasse. Die Immobilie bietet ideale Voraussetzungen für Familien oder Paare mit Platzbedarf, die ruhiges Wohnen mit modernem Komfort verbinden möchten.
Große Fensterflächen sorgen für lichtdurchflutete Räume und eine angenehme Wohnatmosphäre. Der offen gestaltete Wohn- und Essbereich bildet das Herzstück des Hauses und bietet direkten Zugang zur Terrasse und in den Garten.
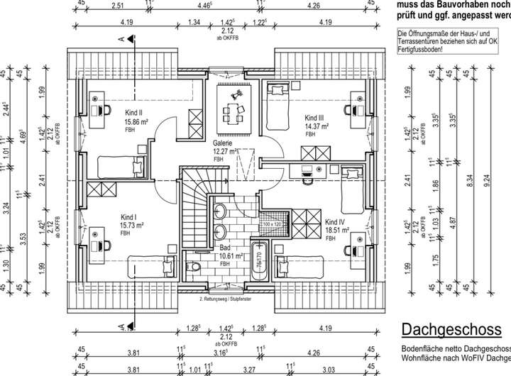
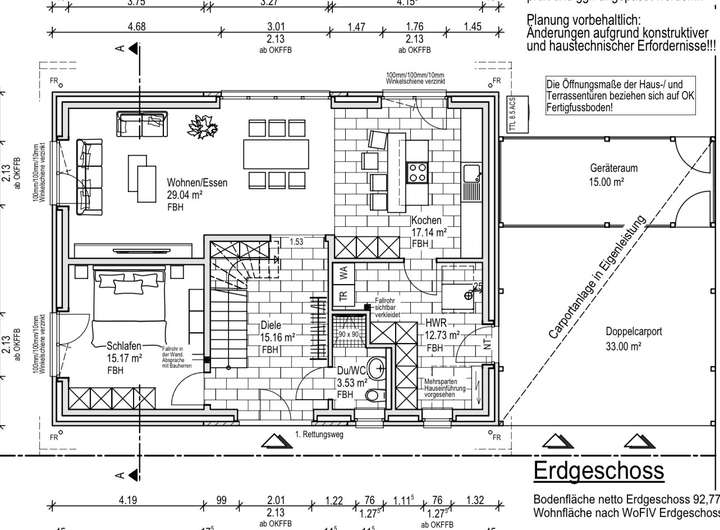
Wohnfläche & Raumaufteilung
Wohnfläche: ca. 175m²
Zimmer: 6 Zimmer
Erdgeschoss
• Großzügiger Wohn-, Essbereich & Küche (ca. 46m²)
• 1 Schlafzimmer
• Diele
• Gäste-WC mit Dusche
• Hauswirtschaftsraum (HWR) mit Einbauschränken
Dachgeschoss
• Vier gut geschnittene Schlaf- / Kinderzimmer
• Galerie inkl. Büroraum
• Großes Badezimmer mit Doppelwaschbecken, Badewanne und Dusche
Großzügiger Dachboden
Ausstattung
Moderne Massivbauweise
• Fußbodenheizung
• Fliesen im kompletten Haus
• Große Fensterflächen
• Modern ausgestattetes Badezimmer und Gäste- WC mit Dusche
• Terrasse mit direktem Gartenzugang
• Gepflegter, pflegeleichter Garten
• Doppelcarport
• Separater Geräteraum / Abstellraum
Terassenüberdachung mit seitlichen Sichtschutz
KW 55 Haus mit Luftwasserwärmepumpe
Außenbereich
Der Garten bietet ausreichend Platz zum Entspannen, Spielen oder für gesellige Abende auf der Terrasse. Das Doppelcarport ermöglicht komfortables, wettergeschütztes Parken direkt am Haus.
Mietkonditionen
• Kaltmiete: 1.850 €
• Nebenkosten: 350 € (inkl. Vorauszahlung für Warmwasser und Heizung; zzgl. Strom,)
• Kaution: 3 Monatskaltmieten 5.550€
• Verfügbar ab: 01.08 oder nach Absprache
Modernes Einfamilienhaus zum 01.08.2026 für 2200€ warm!
26219 Bösel
Die vollständige Adresse der Immobilie erhalten Sie vom Anbieter.
Auf Karte anzeigen
Die vollständige Adresse der Immobilie erhalten Sie vom Anbieter.
Infos
| Haustyp | Einfamilienhaus |
|---|---|
| Etagenzahl | 2 |
| Wohnfläche ca. | 175 m2 |
| Grundstücksfläche | 625 m2 |
| Bezugsfrei ab | 1.8.2026 |
| Zimmer | 5 |
Kosten
| Kaltmiete |
1.850 € |
|---|---|
| Nebenkosten | + 350 € |
| Heizkosten | in Nebenkosten enthalten |
| Gesamtmiete | 2.200 € |
| Kaution o. Genossenschaftsanteile | 5.55 |
Weiter mieten oder doch kaufen?
Wer in Miete wohnt, überweist dem Vermieter im Laufe der Jahre hohe Summen, die sich
auch in die eigenen vier Wände investieren lassen könnten.
Bausubstanz & Energieausweis
| Objektzustand | Neuwertig |
|---|
Beschreibung des Objekts
Lage
Bösel ist eine Gemeinde im Landkreis Cloppenburg in Niedersachsen. Die Lage bietet eine gute Anbindung an die umliegenden Städte und eine ruhige Wohnatmosphäre. Einkaufsmöglichkeiten für den täglichen Bedarf sowie Schulen und Kindergärten sind in der Nähe vorhanden. Die Umgebung lädt zu Freizeitaktivitäten im Grünen ein.
Sonstige Angaben
Bei Interesse bitte folgende Unterlagen bereithalten:
Arbeitsvertrag
Aktuelle Gehaltsabrechnungen
Selbstauskunft mit Anzahl der Personen, die einziehen
Vorvermieterbescheinigung (falls vorhanden)
Schufaauskunft
Haftpflichtversicherung
Gesucht werden langfristige Mieter, die einen grünen Daumen haben und Haus und Garten pfleglich behandeln.
Das Haus befindet sich in einem Neubaugebiet in Bösel. Besichtigungstermine sind nach Absprache möglich.
Viele Grüße
Lisa
Grundriss
IMG_4866
>
>
IMG_4867
>
>
Adresse
26219 Bösel
Interessante Orte
Preis- und Lageinformationen
Preistrend für Bestandsimmobilien in Bösel