Schönes Einfamilienhaus mit großzügigem Garten & Carport in zentraler Lage von Großenkneten.
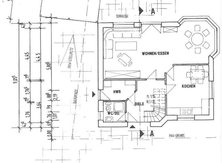
Von der zentralen Eingangsdiele geht zunächst auf der linken Seite eine Gäste WC mit Dusche ab.
Daneben befindet sich ein Hauswirtschaftsraum mit Zugang zum Carport.
Auf der rechten Seite befindet sich die geräumige Küche.
Das Wohnzimmer ist optisch in zwei Teilbereiche untergliedert.
Während Sie es sich auf der linken Seite gemütlich machen können, bietet auf der rechten Seite ein Erker mit wintergartenähnlichen Charakter gute Möglichkeiten sich einen zusätzlichen Essplatz einzurichten.
Das Wohnzimmer bietet ebenso Zugang zur vorgelagerten Terrasse und dem Garten mit südlicher Ausrichtung.
In der hinteren Ecke befindet sich ein Gartenhaus, das Platz für gemütliche Stunden bietet.
Von der Eingangsdiele aus führt eine Treppe hinauf ins Obergeschoss.
Hier befinden sich neben dem Tageslichtbad mit Dusche, Wanne und 2 Waschtischen ganze 4 Zimmer, die Sie beliebig zur individuellen Nutzung gestalten können.
Freistehendes Einfamilienhaus mit Carport in Großenkneten
26197 Großenkneten
Die vollständige Adresse der Immobilie erhalten Sie vom Anbieter.
Auf Karte anzeigen
Die vollständige Adresse der Immobilie erhalten Sie vom Anbieter.
Infos
| Haustyp | Einfamilienhaus |
|---|---|
| Wohnfläche ca. | 133 m2 |
| Grundstücksfläche | 817 m2 |
| Bezugsfrei ab | 01.05.2026 |
| Zimmer | 5 |
| Schlafzimmer | 4 |
| Badezimmer | 2 |
| Haustiere | Nach Vereinbarung |
| Garage/Stellplatz | Carport |
| Anzahl Garage/Stellplatz | 1 |
Kosten
| Kaltmiete |
1.150 € |
|---|---|
| Nebenkosten | + 150 € |
| Heizkosten | keine Angabe |
| Gesamtmiete | 1.300 € |
| Kaution o. Genossenschaftsanteile | 2 Monatskaltmieten |
Weiter mieten oder doch kaufen?
Wer in Miete wohnt, überweist dem Vermieter im Laufe der Jahre hohe Summen, die sich
auch in die eigenen vier Wände investieren lassen könnten.
Bausubstanz & Energieausweis
| Baujahr | 1998 |
|---|---|
| Objektzustand | Gepflegt |
| Heizungsart | Zentralheizung |
| Wesentliche Energieträger | Erdgas leicht |
| Energieausweis | liegt vor |
| Energieausweistyp | Verbrauchsausweis |
| Energieverbrauchskennwert | 124,8 kWh/(m²*a) |
| Energieeffizienzklasse | D |
124,8
kWh/(m²*a)
Energieeffizienzklasse D
- A+
- A
- B
- C
- D
- E
- F
- G
- H
- 0
- 25
- 50
- 75
- 100
- 125
- 150
- 175
- 200
- 225
- >250
Beschreibung des Objekts
Ausstattung
Das Haus ist komfortabel ausgestattet.
Ihren PKW können Sie trocken und geschützt unter dem Carport unterstellen, wobei die gepflasterte Auffahrt auch noch Platz für weitere PKW bietet.
Das Erdgeschoss ist praktischerweise durchgehend gefließt.
Das Gäste WC ist zusätzlich mit einer Dusche ausgestattet, so dass Ihnen hier 2 vollwertige Bäder zur Verfügung stehen.
Die Fenster sind logischerweise isolierverglast.
Der wintergartenähnliche Erker im Wohnzimmer lässt durch die bodentiefen Fenster sehr viel Licht einfallen.
Die auf dem Bild ersichtliche Einbauküche kann nach Absprache von den bisherigen Mietern übernommen werden.
Das Tageslichtbad im Obergeschoss ist ebenso hell gefließt und punktet mit Wanne sowie 2 Waschtischen.
In den Wohnräumen im Obergeschoss liegt weitestgehend Laminatboden.
Neben der Gartenhütte bietet auch ein Spitzboden Platz, um Dinge zu verstauen.
Das Haus kann nach Absprache zum 01.05. angemietet werden.
Der Nebenkostenabschlag versteht sich zzgl. Gas & Strom, dieses kann vom Mieter direkt mit dem jeweiligen Versorger abgerechnet werden.
Nebenkostenabschlag: ca. 150 €
Kaution: 2 Monatskaltmieten
Lage
Das Haus befindet sich in schöner, ruhiger Siedlungslage im Zentrum von Großenkneten. Der gesamte Bereich ist verkehrsberuhigt.
Die wesentlichen Dinge des täglichen Bedarfs befinden sich vor Ort.
Eine gute Verkehrsanbindung sowohl mit dem PKW als auch dem öffentlichen Nahverkehr ist gegeben.
Oldenburg erreichen Sie über die A29 in ca. 25 Minuten.
Der Bahnhof in Ahlhorn bietet zudem eine Zuganbindung.
Sonstige Angaben
Bitte senden Sie uns eine Anfrage über das jeweilige Portal. Wir werden Sie dann per E-Mail oder Telefon kontaktieren. Wir freuen uns über eine kurze Beschreibung Ihrer Person in der Anfrage. Vielen Dank!
Die Weitergabe unserer Angebote an Dritte ist unzulässig.
Zwischenzeitlicher Verkauf/ Vermietung und Irrtum bleibt vorbehalten.
Alle vom Makler bereitgestellten Informationen werden als zuverlässig erachtet, aber nicht garantiert und sollten unabhängig verifiziert werden. Wir übernehmen keinerlei Gewähr für die Richtigkeit der Angaben.
Adresse
26197 Großenkneten
Interessante Orte
Preis- und Lageinformationen
Preistrend für Bestandsimmobilien in Großenkneten