Im Service-Wohnen AN DER HARDT finden Sie ein Zuhause, das im Alter bei gesundheitlichen Einschränkungen Sicherheit und Pflege bietet, dabei aber größtmögliche Eigenständigkeit in komfortabler Umgebung garantiert.
Infos
| Miet-/ Kaufobjekt | Miete |
|---|---|
| Mietpreis ab (zzgl. Nebenkosten) | 330 € |
| Einrichtungstyp | Seniorenwohnpark |
| Anzahl betreute Wohnungen | 120 |
| Haustiere | Ja |
Kosten
| Kaufpreis |
0 € |
|---|
Finanzierungsrechner:
Kaufpreis:
600.000 €
Eigenkapital:
600.000 €
Monatliche Rate
0 €
Effektiver Jahreszins
0 %
Sollzinsbindung
10 Jahre
Infos zu den Wohneinheiten
| Wohnfläche | von 35 bis 71m2 |
|---|---|
| Wohnfläche | von 1 bis 2 |
| Balkon/ Terrasse | Ja |
Dienstleistungen
Bausubstanz & Energieausweis
| Baujahr | 1998 |
|---|---|
| Heizungsart | Zentralheizung |
| Wesentliche Energieträger | Fernwärme |
| Energieausweis | liegt vor |
| Energieausweistyp | Bedarfsausweis |
| Energieverbrauchskennwert | 138,0 kWh/(m²*a) |
Kurzbeschreibung
Beschreibung des Objekts
An einem sonnigen Südhang über den Dächern von Wuppertal-Elberfeld liegt das Service-Wohnen AN DER HARDT. Insgesamt 13 Häuser bieten seniorengerechten Komfort und eine freundliche, einladende Atmosphäre. Gesicherte Wege und überdachte Gänge verbinden die Häuser. Mit Hilfe der Aufzüge gelangen Sie bequem und barrierefrei in andere Etagen. Bei schönem Wetter sitzen Sie auf der Terrasse unseres Restaurants und wählen aus dem wechselnden Tagesangebot oder a la carte. Langeweile kommt AN DER HARDT nicht auf, im Clubraum wird ein abwechslungsreiches Programm geboten. Dort trifft man nette Nachbarn, Freunde und Bekannte zu gemeinsamen Aktivitäten. Da uns ihr Wohlbefinden besonders am Herzen liegt, bieten wir Ihnen einen 24-Stunden-Service. Egal ob handwerkliche Arbeiten, Einkäufe, Botengänge oder Pflegeanwendungen, wir sind rund um die Uhr für sie da.
Neben den normalen Grundleistungen können Sie verschiedene Service-Leistungen einzeln oder in Kombination zu Ihrem ganz persönlichen Betreuungspaket zusammenstellen. Ob organisatorische Beratung, hauswirtschaftliche Hilfe oder intensive medizinische Pflege – mit unserem Partner, der Diakonischen Altenhilfe bieten wir Unterstützung jeglicher Art.
Ausstattung
Ob Sie sich für eine großzügige Wohnung oder ein gemütliches Appartement entscheiden, jede unserer Wohnungen hat einen sonnigen Balkon oder eine Terrasse, ist durchdacht konzipiert und hochwertig ausgestattet. Haustelefon und Notrufeinrichtung gehören genauso dazu wie die Einbauküche und ein perfekt auf die Bedürfnisse im Alter zugeschnittenes Bad. Eigene Möbel können selbstverständlich mitgebracht werden.
Lage
Wer gut zu Fuß ist, kann vor der Haustür den Botanischen Garten und die Hardt mit ihrer prächtigen Natur entdecken. Hier können Sie in hübschen Cafés eine angenehme Zeit verbringen. Wem der Weg zu weit ist, der findet Ruhe und Erholung in der hauseigenen Parkanlage, die mit viel Grün und dem idyllischen Fischteich zum verweilen einlädt. Der Bus Linie 643 hält direkt vor der Türe, in 5 Minuten erreicht man so bequem die Innenstadt.
Sonstige Angaben
Sie möchten das Service-Wohnen "AN DER HARDT" im Alltag testen? Dann buchen Sie doch einfach mal eine Kennenlernwoche zum Vorzugspreis in einem unserer Gäste-Appartements! Die stehen nämlich nicht nur den Besuchern unserer Bewohner zur Verfügung, sondern laden auch zum Probewohnen ein. Wir freuen uns auf Ihre Anfrage.
Weitere Dokumente
Der Weg zu unsEnergieausweis
Exposè Service-Wohnen
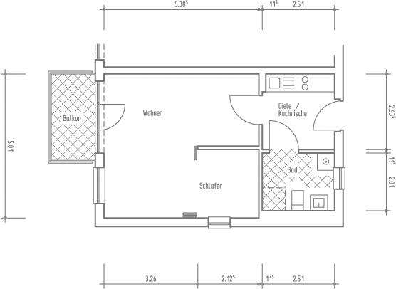
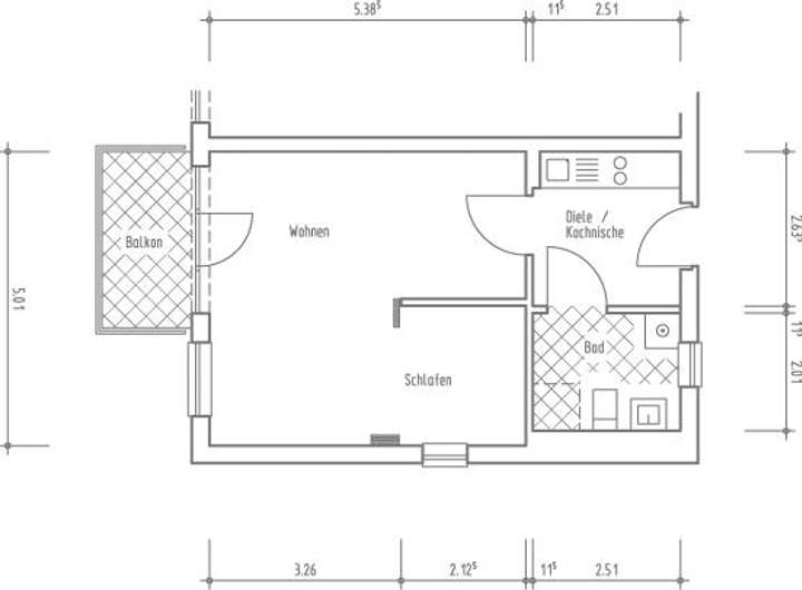
Grundriss
Beispiel 40 qm
>
>
Beispiel 60 qm
>
>