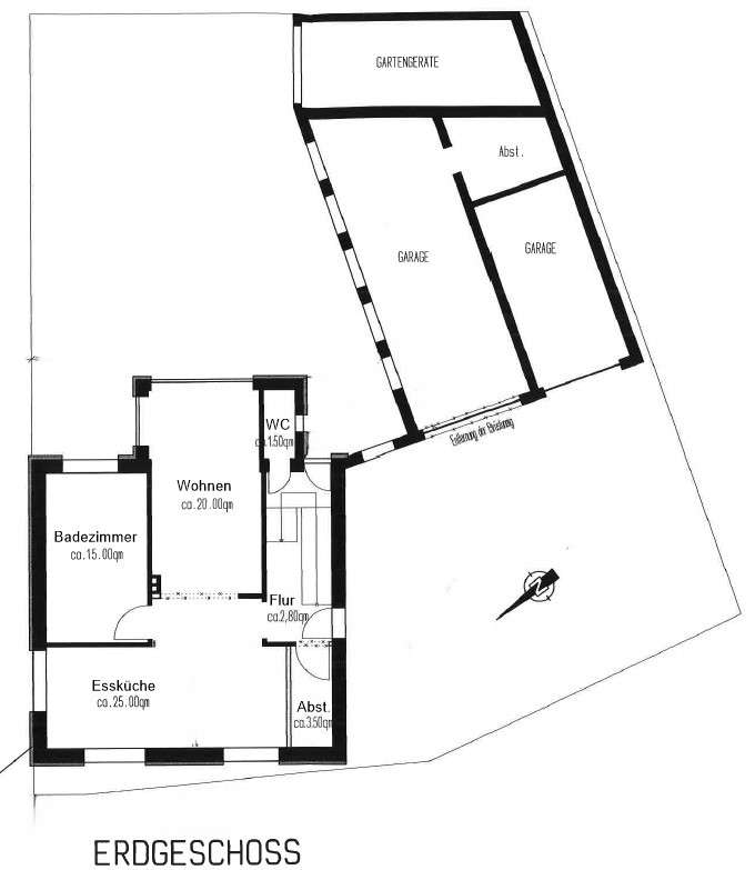
Erdgeschoss:
Diele, großzügige Wohnküche, Wohnzimmer, Gäste-WC, Badezimmer
Obergeschoss:
Flur, WC, drei Schlafzimmer (davon kann eins in zwei Räume geteilt werden), kleine Ausbaureserve
Besonderheiten:
Ausbaureserve im DG (ca. 50 m²), Teilkeller, teilw. elektrische Rollläden, Garage mit Sektionaltor und Elektroantrieb, Werkstatt im Nebengebäude, Abstellraum für Gartengeräte, 2002 2013 teilweise modernisiert (Fenster, Dachgauben DG, Bad, Erneuerung Dachbalken, Vorrichtung für Solarthermische Anlage), Dach derzeit nicht gedämmt
Lage:
Rhede Nähe Wehrstraße, ca. 100 m zum Ortszentrum
Anbieter-Objektnummer: FE-0514
Stilvoll kernsanierte Stadtvilla mit Geschichte exklusives Wohnen in bester Lage von Rhede
46414 Rhede
Die vollständige Adresse der Immobilie erhalten Sie vom Anbieter.
Auf Karte anzeigen
Die vollständige Adresse der Immobilie erhalten Sie vom Anbieter.
Finanzierungszertifikat
In nur zwei Minuten zu Ihrem persönlichen Finanzierungszertifkat.
Infos
| Haustyp | Einfamilienhaus |
|---|---|
| Wohnfläche ca. | 170 m2 |
| Nutzfläche | 50 m2 |
| Grundstücksfläche | 398 m2 |
| Bezugsfrei ab | nach Vereinbarung |
| Zimmer | 6 |
| Garage/Stellplatz | Garage |
Kosten
| Kaufpreis |
589.000 € |
|---|---|
| Provision |
2,38 % inkl. MwSt Provision für Verkäufer: 2,38% inkl. MwSt |
Finanzierungsrechner:
Kaufpreis:
600.000 €
Eigenkapital:
600.000 €
Monatliche Rate
0 €
Effektiver Jahreszins
0 %
Sollzinsbindung
10 Jahre
Bausubstanz & Energieausweis
| Baujahr | 1936 |
|---|---|
| Letzte Sanierung | 2015 |
| Objektzustand | Saniert |
| Qualität der Austattung | Gehoben |
| Heizungsart | Zentralheizung |
| Wesentliche Energieträger | Gas |
| Energieausweis | liegt vor |
| Energieausweistyp | Bedarfsausweis |
| Energieverbrauchskennwert | 65,9 kWh/(m²*a) |
Beschreibung des Objekts
Ausstattung
Kellergeschoss: Heizungskeller, Kellerraum 1, Kellerraum 2, Flur
Erdgeschoss: Diele, Flur, Gäste-WC, Abstellraum, Wohnen, Essküche, Badezimmer
Obergeschoss: Flur, Elternschlafzimmer, Kinderzimmer 1, Kinderzimmer 2, Elternschlafzimmer, Badezimmer
Dachgeschoss: Studio, Badezimmer
Besonderheiten:
Badezimmer in jeder Etage, offene Raumgestaltung im Erdgeschoss, Fußbodenheizung im EG, OG und DG, barrierefreier Zugang, zweifachverglaste Iso-Fenster, Deckenspots im gesamten Haus, moderne Badezimmer mit ebenerdiger Dusche, Studio mit großzügigen Fenstern in allen Richtungen, Große Doppelgarage mit Abstell- und Geräteraum, drei Stellplätze vor Garage
Optionen:
Potenzial für Einliegerwohnung im Dachgeschoss Badezimmer, Küchenanschlüsse und Gegensprechanlage bereits vorhanden
Gewerbliche Umnutzung möglich ca. 70 m² Nutzfläche in großer Doppelgarage mit zusätzlichen Räumen
Ideale Voraussetzungen für Photovoltaik Flachdach der Garage eignet sich hervorragend zur Installation einer PV-Anlage
Umbauten/Modernisierungen:
1958 Neubau der Garage mit Abstellraum
1969 Erweiterung des Wohnhauses im Wohnbereich und Gäste-WC
2015 - Renovierung der Garage mit neuen Fenstern und elektrischem Sektionaltor (teilweise beheizt)
2015 neu angelegter Außenbereich mit barrierefreiem Zugang zur Garage und zum Haus
2015 bis 2018 Energetische Kernsanierung: Neuer Wärmedämmputz, neuer Estrich samt Fußbodenheizung samt neuen Böden im gesamten Haus, entsprechende Anpassung der Statik, neue Fenster, neues Dach, neues Gäste-WC im EG und neues Badezimmer im OG und DG samt Ausbau des DG, Einbau Deckenspots, neue Gas-Brennwerttherme
Lage
Lage: Rhede Oststr.
Diese stilvoll kernsanierte Stadtvilla befindet sich in zentraler und bevorzugter Wohnlage von Rhede in der ruhigen und dennoch sehr gut angebundenen Oststraße. Die Umgebung ist geprägt von gepflegten Wohnhäusern, altem Baumbestand und einer angenehmen, gewachsenen Nachbarschaft ideal für Selbstnutzer, die auf der Suche nach einem Zuhause mit besonderem Charakter und hoher Lebensqualität sind.
Die charmante Innenstadt von Rhede ist nur wenige Gehminuten entfernt und lädt mit ihren inhabergeführten Geschäften, gemütlichen Cafés und einer abwechslungsreichen Gastronomie zum Verweilen ein. Auch der beliebte Wochenmarkt, der regelmäßig regionale Produkte anbietet, gehört zu den besonderen Vorzügen der Stadt. Familienfreundlichkeit wird in Rhede großgeschrieben: Schulen, Kindergärten, Spielplätze sowie medizinische Versorgung befinden sich in direkter Nähe.
Kulturelle Highlights wie das Schloss Rhede oder das vielseitige Veranstaltungsprogramm in der Stadthalle machen den Standort auch überregional attraktiv. Sport- und Freizeitmöglichkeiten wie Tennis, Reiten, Radfahren oder Spaziergänge in der umliegenden Parklandschaft bieten beste Voraussetzungen für eine aktive Freizeitgestaltung.
Die verkehrsgünstige Lage mit direkter Anbindung an die B67 sowie die Nähe zur A3 ermöglicht eine schnelle Erreichbarkeit der Städte Bocholt, Borken, Münster sowie des gesamten Ruhrgebiets etwa Essen, Duisburg oder Düsseldorf sind in rund einer Stunde erreichbar. Auch die internationalen Flughäfen Düsseldorf (ca. 75 km) und Weeze (ca. 65 km) sind bequem mit dem Auto zu erreichen und bieten eine hervorragende Anbindung für Geschäfts- und Urlaubsreisen. Die Oststraße steht für zentrales, komfortables Wohnen mit viel Lebensqualität perfekt für Selbstnutzer, die die Vorzüge städtischen Lebens in einem hochwertigen und individuellen Wohnumfeld schätzen.
Sonstige Angaben
FINANZIERUNG
Sehr geehrte/r Interessent/in,
natürlich stehen wir Ihnen im Anschluss auch bei der Finanzierung zur Seite.
Unsere erfahrenen Kreditberater führen gerne mit Ihnen ein kostenloses und unverbindliches Erstgespräch und erstellen Ihnen ein auf Sie, Ihre Lebenssituation und Wünsche zugeschnittenes Finanzierungsangebot.
Sprechen oder rufen Sie uns gerne an, um einen Termin zu vereinbaren.
Wir freuen uns auf Sie!
Ihr Team der Volksbank Rhede
Grundriss
Grundriss - KG
>
>
Grundriss - EG
>
>
Grundriss - OG
>
>
Grundriss - DG
>
>
Adresse
46414 Rhede
Interessante Orte
Preis- und Lageinformationen
Preistrend für Bestandsimmobilien in Rhede