Eine MIETÜBERNAHME DURCH DAS JOBCENTER ist leider nicht möglich.
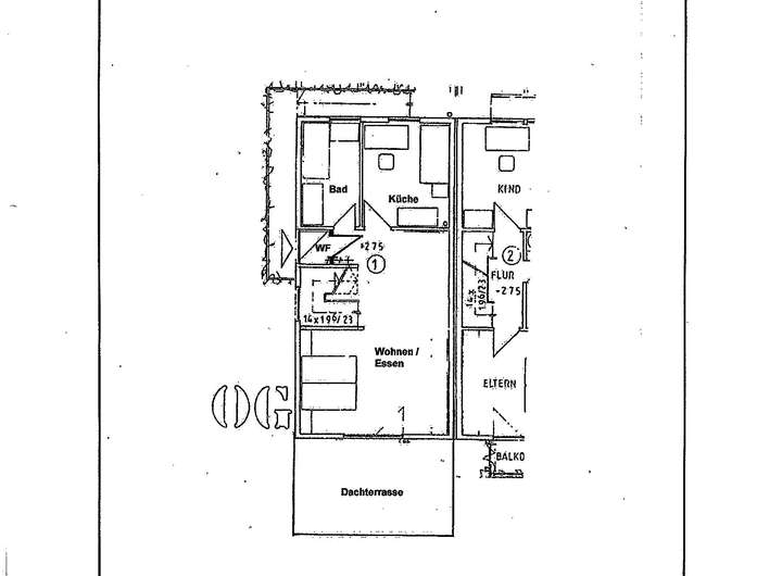
Diese 3 ZKB-Wohnung befindet sich im 1. Obergeschoß und ist einem Reihenhaus gleichzustellen. Die Immobilie verfügt über einen eigenen Außenaufgang und einer sehr großen Dachterrasse die 2025 komplett erneuert wurde.
Die Wohnung betreten Sie von der Nordseite und kommen in die Diele mit der Garderobe. Das Badezimmer und die Küche mit Essplatz befinden sich auf der linken Seite. Gegenüber erreichen sie das geräumige Wohnzimmer, in dem auch eine Büroecke Platz hat. Vom Wohnzimmer kommen Sie auf die herrliche, großräumige Dachterrasse, welche nach Süd-West ausgerichtet ist.
Eine schöne Holztreppe führt in das Dachgeschoß mit dem Schlafzimmer und dem Kinderzimmer. Im Heizraum ist noch genügend Platz für die Lagerung von Reinigungsgeräten.
Durch die kleine Garage im Hofraum ist noch ein Wirtschaftsraum zu erreichen.
Sehr wenig Heizkosten durch Niedrigenergie-Bauweise.
Stadtwohnung im Town House-Stil mit großer 30 m² Dachterrasse, Friedrichshofen, Audi AG/WestPark
85049 Ingolstadt
Die vollständige Adresse der Immobilie erhalten Sie vom Anbieter.
Auf Karte anzeigen
Die vollständige Adresse der Immobilie erhalten Sie vom Anbieter.
Infos
| Wohnungskategorie | Maisonette |
|---|---|
| Etage | 1 von 2 |
| Wohnfläche ca. | 89 m2 |
| Bezugsfrei ab | 1.3.2026 |
| Zimmer | 3 |
| Badezimmer | 1 |
| Haustiere | Nach Vereinbarung |
| Garage/Stellplatz | Garage |
| Anzahl Garage/Stellplatz | 1 |
Kosten
| Kaltmiete |
1.099 € |
|---|---|
| Nebenkosten | + 120 € |
| Heizkosten | in Nebenkosten enthalten |
| Gesamtmiete | 1.219 € |
| Miete für Garage/Stellplatz | 49 € |
| Kaution o. Genossenschaftsanteile | 3297.0 |
Weiter mieten oder doch kaufen?
Wer in Miete wohnt, überweist dem Vermieter im Laufe der Jahre hohe Summen, die sich
auch in die eigenen vier Wände investieren lassen könnten.
Bausubstanz & Energieausweis
| Letzte Sanierung | 2025 |
|---|---|
| Objektzustand | Modernisiert |
| Qualität der Austattung | Normal |
| Heizungsart | Gas-Heizung |
| Wesentliche Energieträger | Erdgas leicht |
| Energieausweis | liegt vor |
| Energieausweistyp | Verbrauchsausweis |
| Energieverbrauchskennwert | 70,5 kWh/(m²*a) |
| Energieeffizienzklasse | B |
70,5
kWh/(m²*a)
Energieeffizienzklasse B
- A+
- A
- B
- C
- D
- E
- F
- G
- H
- 0
- 25
- 50
- 75
- 100
- 125
- 150
- 175
- 200
- 225
- >250
Beschreibung des Objekts
Ausstattung
Das geräumige Badezimmer ist ein Highlight der Wohnung. Mit Dusche, Badewanne, Waschbecken und WC bleiben keine Wünsche offen. Auch Waschmaschine und Trockner können hier Ihren Platz finden.
Sehr hochwertig ist der Laminatboden, welcher im Wohn- und Schlafbereich verlegt wurde.
Das Herzstück der Wohnung ist die großzügige Dachterrasse welche ca. 30 qm umfasst.
Die Wohnung wird vor Einzug noch einmal komplett neu gestrichen / geweißelt.
Die Küche kann evtl. nach Absprache vom Vermieter abgelöst werden.
Lage
Die Wohnung befindet sich an der B13, im Ortsteil Friedrichshofen in Ingolstadt. Dieser Ortsteil zählt zu den wohl beliebtesten Wohnorten der Stadt da von hier aus in nur wenigen Minuten die Audi AG (7 Min.), das Klinikum Ingolstadt (2 Min.) sowie auch Einkaufsmöglichkeiten wie der „WestPark“ (5 Min.) erreichbar sind. Auch Ärzte, Schulen und Kindergärten befinden sich in unmittelbarer Nähe.
Sonstige Angaben
Eine Haftung von meiner Seite ist ausgeschlossen.
BEZUG ab 01.03.2026 !!!
Kaltmiete: 1099,00 €
Nebenkosten: 120,00 € (ohne Strom, Wasser und Müllkosten)
Garage / Stellplatz-Kaufpreis: 52,00 €
Eine MIETÜBERNAHME DURCH DAS JOBCENTER ist leider nicht möglich.
Adresse
85049 Ingolstadt
Interessante Orte
Preis- und Lageinformationen
Preistrend für Bestandsimmobilien in Friedrichshofen