Das Haus wurde in einer Sackgasse einer bestehenden Wohngegend von Liblar gebaut. Fußläufig 5 min bis zum See.
KFW 40 mit Wärmepumpe und Entlüftungssystem
Das Haus wurde von Außen anspruchsvoll verklinkert.
Alle Fenster sind BODENTIEF, auch gibt es eine XXL Schiebetür zum Garten.
Erdgeschoss:
Küche, Gäste WC, Breiter Flur, HWR, Großes Wohn und Esszimmer.
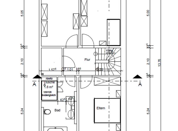
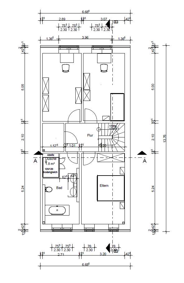
Obergeschoss:
3 Schlafzimmer und XXL Masterbad
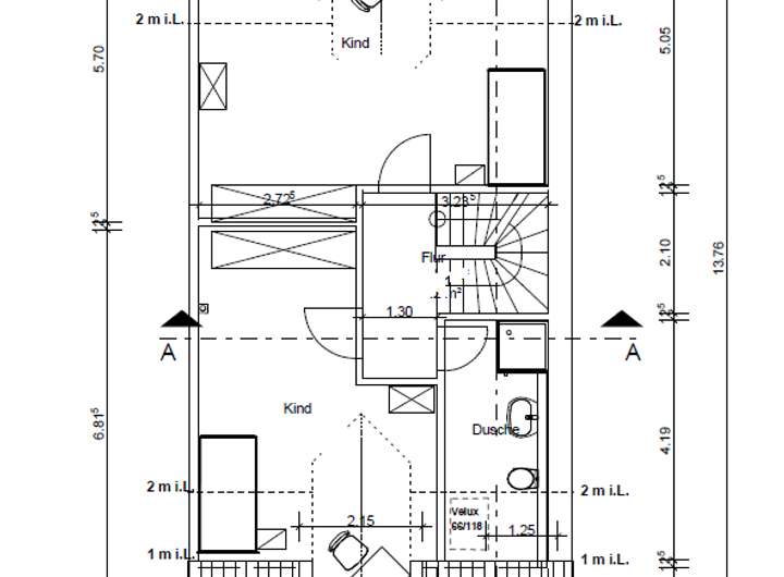
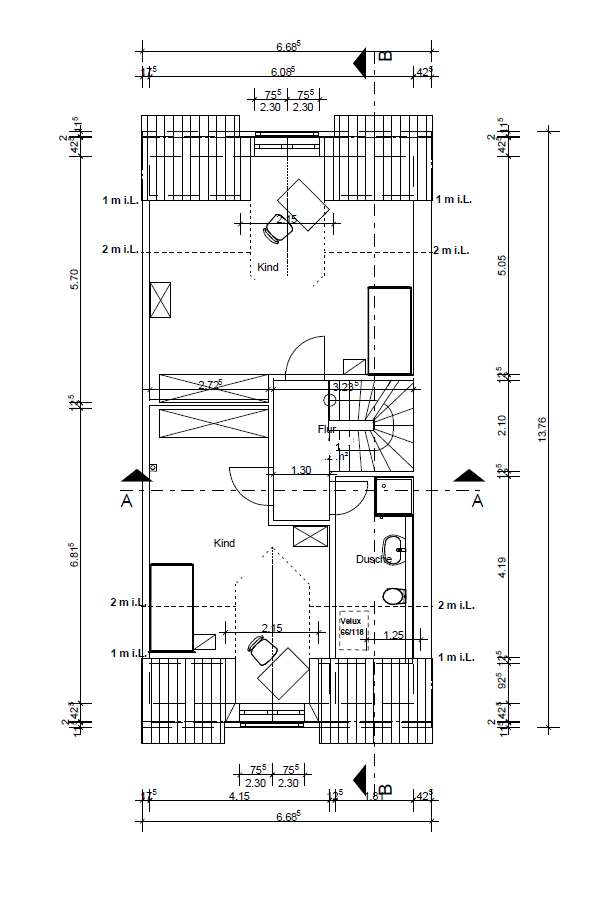
Dachgeschoss:
2 Schlafzimmer und Gästebad
Große Terrasse, pflegeleichter Garten sowie XXL Gartenhaus Massiv.
Vor dem Haus ein PKW Stellplatz
Traumhaus vor den Toren von Köln
50374 Erftstadt
Die vollständige Adresse der Immobilie erhalten Sie vom Anbieter.
Auf Karte anzeigen
Die vollständige Adresse der Immobilie erhalten Sie vom Anbieter.
Infos
| Haustyp | Reihenmittelhaus |
|---|---|
| Etagenzahl | 3 |
| Wohnfläche ca. | 200 m2 |
| Nutzfläche | 30 m2 |
| Grundstücksfläche | 267 m2 |
| Bezugsfrei ab | 15.01.2026 |
| Zimmer | 6 |
| Schlafzimmer | 5 |
| Badezimmer | 2 |
| Haustiere | Nach Vereinbarung |
| Garage/Stellplatz | Außenstellplatz |
| Anzahl Garage/Stellplatz | 1 |
Kosten
| Kaltmiete |
2.190 € |
|---|---|
| Nebenkosten | + 200 € |
| Heizkosten | keine Angabe |
| Gesamtmiete | 2.390 € (zzgl. Heizkosten) |
| Miete für Garage/Stellplatz | 60 € |
Weiter mieten oder doch kaufen?
Wer in Miete wohnt, überweist dem Vermieter im Laufe der Jahre hohe Summen, die sich
auch in die eigenen vier Wände investieren lassen könnten.
Bausubstanz & Energieausweis
| Baujahr | 2019 |
|---|---|
| Letzte Sanierung | 2019 |
| Objektzustand | Gepflegt |
| Qualität der Austattung | Gehoben |
| Heizungsart | Wärmepumpe |
| Wesentliche Energieträger | Umweltwärme |
| Energieausweis | liegt vor |
| Energieausweistyp | Bedarfsausweis |
| Energieverbrauchskennwert | 13,1 kWh/(m²*a) |
| Energieeffizienzklasse | A+ |
13,1
kWh/(m²*a)
Energieeffizienzklasse A+
- A+
- A
- B
- C
- D
- E
- F
- G
- H
- 0
- 25
- 50
- 75
- 100
- 125
- 150
- 175
- 200
- 225
- >250
Beschreibung des Objekts
Ausstattung
Bei der Ausstattung wurde viel Wert auf Details gelegt. Der Anspruchsvolle Mieter wird zufrieden sein.
Fliesen im ganzen Haus 80 x 80cm Feinstein.
Erdgeschoss und Dachgeschoss komplett abgehangene Decke mit LED Warmweiss. Erdgeschoss mit vielen Wandlampen zur indirekten Beleuchtung.
Große XXL Schiebetür. Erweitern Sie Ihr Wohnzimmer durch eine offene Front zum Garten.
Alle Räume sind mit Fußbodenheizung ausgestattet welche über digitale Steuerung je Raum reguliert werden kann.
Netzwerk CAT 7 und programmierbare Rollo Steuerung in jedem Raum.
Anspruchsvolle Zimmertüren.
Das XXL Masterbad lässt keine Wünsche offen. Die Dusche ist Bodentief und als Walke In ausgelegt. 1A Doppelwaschbecken in Übergröße mit Unterbauschränken, indirekt beleuchteter Spiegel, Wandlampen, LED Decke sowie eine XXL Badewanne machen den Traum perfekt.
Das Gäste Bad im Dachgeschoss mit Dusche, Toilette, Waschbecken mit Unterbauschrank ermöglicht einen zweiten Rückzugsort für die täglichen Bedürfnisse.
Lage
Das Haus befindet sich in einer sehr ruhigen Sackgasse. Nette und familienfreundliche Nachbarschaft inklusive.
In guter Lager nur wenige Minuten zu Fuß zum See.
Günstig gelegen zum Bahnhof und Zentrum.
Zur Autobahnauffahrt in 5 Minuten.
Liblar ist ein Ortsteil von Erftstadt und die Auffahrt liegt so günstig gelegen, dass Sie die A1 Richtung Köln/Euskirchen sowie die A61 Richtung Venlo/Koblenz unmittelbar zur Auswahl haben.
Die Ortschaft bietet neben einer Zuganbindung alle üblichen Verkehrsmittel.
Neben einem Einkaufszentrum zum Bummeln bietet Liblar neben vielfachen Supermärkten, Ärzten, Baumarkt, Krankenhaus, Schulen, Kindergärten, Freizeitmöglichkeiten wirklich alles was das Herz begehrt.
Sonstige Angaben
Das Haus wird von Privat vermietet. Kontaktaufnahme durch Makler ist nicht gewünscht.
Die Küche kann bei Interesse vom Vormieter übernommen werden.
Grundriss
Dachgeschoss
>
>
Obergeschoss
>
>
Edgeschoss
>
>
Adresse
50374 Erftstadt
Interessante Orte
Preis- und Lageinformationen
Preistrend für Bestandsimmobilien in Erftstadt