Willkommen in Osterhofen (94486), einem charmanten und familienfreundlichen Viertel. Dieses großzügige Einfamilienhaus (Doppelhaushälfte) bietet Ihnen und Ihrer Familie auf 144 Quadratmetern viel Platz zum Wohlfühlen. Mit fünf hellen Zimmern und einem modernen Badezimmer ist dieses Zuhause ideal für Familien, die Wert auf Komfort, Raum und zentrale Lage legen. Genießen Sie gemütliche Abende auf der Terrasse und in Ihrem eigenen Garten, perfekt für Kinder zum Spielen und für gesellige Zusammenkünfte.
Die Lage könnte nicht besser sein: Nur 218 Meter entfernt befindet sich die Haltestelle Osterhofen, Abzw. Krankenhaus, ideal für Pendler. Einkaufsmöglichkeiten sind ebenfalls in der Nähe, mit einem Edeka-Supermarkt nur 120 Meter entfernt. Für die kleinsten Familienmitglieder gibt es einen Kindergarten in 800 Metern Entfernung und der Stadtpark ist in nur 500 Metern erreichbar – ein wunderbarer Ort für Erholung und Freizeit.
Dieses Zuhause ist eine hervorragende Wahl für Familien, die eine ruhige und dennoch zentrale Lage suchen. Zögern Sie nicht und vereinbaren Sie noch heute einen Besichtigungstermin.
Das 2017 fertiggestellte Objekt wird per Wärmepumpe beheizt.
Die monatliche Kalt-Miete für die Immobilie mit Küche und mit Garten beträgt 1.150 Euro. Die Nebenkosten für Ab-/Wasser und für Müllabfuhr betragen 120,- €.
Der Stromanbieter sowohl für Haus- und Heizstrom ist vom Mieter zu bestellen.
Schönes, großes und neuwertiges Haus mit fünf Zimmern in Osterhofen
94486 Osterhofen
Die vollständige Adresse der Immobilie erhalten Sie vom Anbieter.
Auf Karte anzeigen
Die vollständige Adresse der Immobilie erhalten Sie vom Anbieter.
Infos
| Haustyp | Doppelhaushaelfte |
|---|---|
| Etagenzahl | 3 |
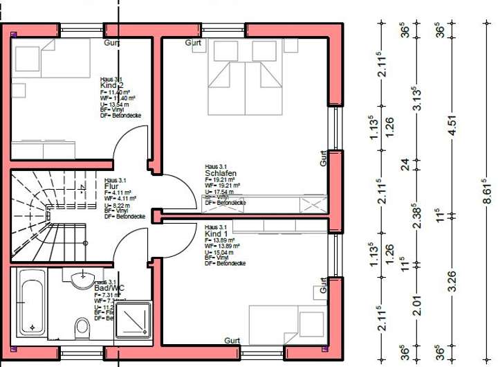
| Wohnfläche ca. | 144 m2 |
| Nutzfläche | 144 m2 |
| Grundstücksfläche | 350 m2 |
| Bezugsfrei ab | 1.4.2026 |
| Zimmer | 5 |
| Schlafzimmer | 3 |
| Badezimmer | 1 |
| Haustiere | Nach Vereinbarung |
| Garage/Stellplatz | Garage |
| Anzahl Garage/Stellplatz | 1 |
Kosten
| Kaltmiete |
1.150 € |
|---|---|
| Nebenkosten | + 120 € |
| Heizkosten | keine Angabe |
| Gesamtmiete | 1.270 € (zzgl. Heizkosten) |
| Miete für Garage/Stellplatz | 50 € |
| Kaution o. Genossenschaftsanteile | 2800.0 |
Weiter mieten oder doch kaufen?
Wer in Miete wohnt, überweist dem Vermieter im Laufe der Jahre hohe Summen, die sich
auch in die eigenen vier Wände investieren lassen könnten.
Bausubstanz & Energieausweis
| Baujahr | 2017 |
|---|---|
| Letzte Sanierung | 2017 |
| Objektzustand | Neuwertig |
| Qualität der Austattung | Gehoben |
| Heizungsart | Wärmepumpe |
| Wesentliche Energieträger | Umweltwärme |
| Energieausweis | liegt vor |
| Energieausweistyp | Bedarfsausweis |
| Energieverbrauchskennwert | 16,0 kWh/(m²*a) |
Beschreibung des Objekts
Ausstattung
Die moderne Haustüre erfüllt die höchsten Sicherheits-Standards mit 5-fach-Verriegelung und Einbruchschutz. Die Fenster wurden in 3-fach Isolierglas mit Verbundglas ausgeführt. Die Außenschale der Fenster besteht aus Aluminium, sodass die Fenster wartungsarm sind.
Im Eingangsbereich und im Bad/WC wurden hochwertige Steingutbodenfliesen verlegt. Das Bad hat moderne Wandfliesen mit Bordüre. Im Wohn- und Schlafbereich wurde ein strapazierfähiger Vinylboden verlegt.
Heizung:
Die Heizung basiert auf einer Luft-Wasser-Wärmepumpe, welche der Umgebung die Wärme entzieht und die Fußbodenheizung speist. Durch diese Technologie ist es möglich mit geringen Vorlauftemperaturen schonend und energiebewusst den Wohnraum zu beheizen.
Wohnraumlüftung mit Wärmerückgewinnung:
Ferner verfügt diese DHH über eine zentrale Wohnraumlüftungsanlage der Marke Zehnder, welche der Abluft ca. 95% Wärme entzieht und dadurch die Frischluft vorwärmt. Durch den hohen Wärmerückgewinnungsgrad dieser Lüftung ist immer genügend Frischluft im Raum, ohne dass viel Wärme verloren geht.
Die Küche und Sat-Schüssel sind fest verbaut und sind im Mietpreis enthalten.
Internet: max. 100Mbit/sec. mittels Glasfaserkabel
Lage
Die Wohneinheit liegt zentral in einer ruhig gelegenen Ringstraße. In wenigen Gehminuten entfernt, befinden sich größere Supermärkte, der Stadtplatz von Osterhofen ist ebenso leicht zu Fuß zu erreichen. Von hier aus hat man die Möglichkeit öffentliche Verkehrsmittel zu nutzen oder eines der zahlreichen Restaurants zu besuchen.
In Osterhofen findet man alle Einrichtungen des täglichen Bedarfs. Sämtliche einschlägig bekannten Supermärkte sind genauso gut zu Fuß zu erreichen wie Ärzte, Apotheken, Schulen und Ämter.
Osterhofen liegt im Landkreis Deggendorf. In wenigen Fahrminuten erreicht man die A3 bei Hengersberg oder die A92 in Plattling.
Durch die Bundesstraße B8 ist man ebenfalls schnell in Passau oder Regensburg.
Sonstige Angaben
Diese DHH eignet sich besonders für junge Familien mit ein oder zwei Kinder.
Nicht-Raucher Haushalt.
Für den Haus- und Heizstrom (Nieder-/Hochtarif) schließt der Mieter selbst einen Vertrag bei einem Strom-Versorger seiner Wahl ab.
Weitere Dokumente
Energieausweis_EnEV_2013Grundriss
Eingabeplan
>
>
Schnitt 99
>
>
Adresse
94486 Osterhofen
Interessante Orte
Preis- und Lageinformationen
Preistrend für Bestandsimmobilien in Osterhofen