Dieses in 2014 erbaute 4-Zimmer-Stadthaus befindet sich in einer gepflegten Wohnlage (Sackgassenlage) in Oststeinbek und überzeugt insgesamt durch einen sehr buchstäblichen Grundriss.
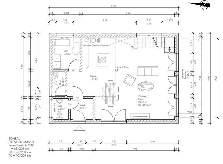
Das Erdgeschoss besticht durch eineneinladenden Wohn-Essbereich mit gut ausgestatteter Einbauküche und Garten-Rundumblick. Die Küche verfügt über eine Kochinsel mit großer Arbeitsplatte inklusive Ceran-Kochfeld, Fritteuse, Spüle, Geschirrspüler und Dunstabzugshaube. Vom Wohnzimmer aus erreichen Sie die Terrasse, welche durch Koniferen wenig einsichtig ist.
Es befinden sich außerdem im Erdgeschoss der Windfang als Eingangsbereich und das Gäste-WC; im hinten liegenden Teil ein kleiner Garderobenraum (mit Ausgangsmöglichkeit nach draußen) und der Heiz-Technikraum.
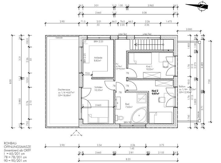
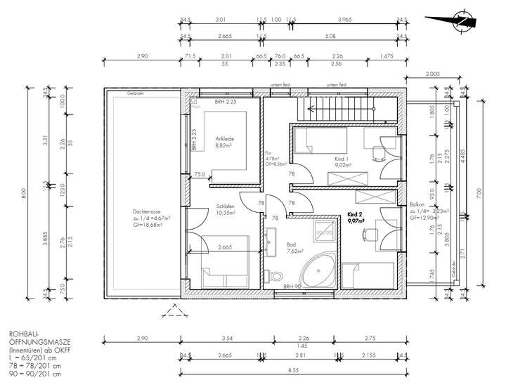
Vom Wohnbereich gelangen Sie nach oben zu den zwei Kinderzimmern (oder Büros) sowie dem (Eltern-)Schlafzimmer mit nach Süden ausgerichteter Dachterrasse. Das Familienbad mit Badewanne und Regendusche lässt keine Wünsche offen. Außerdem verfügt das Obergeschoss über einen geräumigen möblierten Ankleideraum.
Bitte überzeugen Sie sich auch gerne selbst bei einer Besichtigung.
Zwei Außenstellplätze sind ebenfalls vorhanden.
Folgende Nebenkosten sind für das Haus zu tragen: Grundsteuer, Müllabgaben, Versicherung, Aufschaltung der Alarmanlage, Verträge für Internetverbindung sowie GEZ. Die verbrauchsabhängigen Kosten wie Gas, Wasser und Strom werden direkt durch den Mieter angemeldet und separat an die Versorger gezahlt.
Neues Jahr, neues Glück ~ modernes Einfamilienhaus in Sackgassenlage
22113 Oststeinbek
Die vollständige Adresse der Immobilie erhalten Sie vom Anbieter.
Auf Karte anzeigen
Die vollständige Adresse der Immobilie erhalten Sie vom Anbieter.
Infos
| Haustyp | Einfamilienhaus |
|---|---|
| Etagenzahl | 2 |
| Wohnfläche ca. | 133 m2 |
| Nutzfläche | 23,1 m2 |
| Grundstücksfläche | 496,5 m2 |
| Bezugsfrei ab | 01.01.2026 |
| Zimmer | 4 |
| Schlafzimmer | 3 |
| Badezimmer | 2 |
| Haustiere | Nein |
| Garage/Stellplatz | Außenstellplatz |
| Anzahl Garage/Stellplatz | 2 |
Kosten
| Kaltmiete |
2.255 € |
|---|---|
| Nebenkosten | + 250 € |
| Heizkosten | keine Angabe |
| Gesamtmiete | 2.250 € (zzgl. Heizkosten) |
| Kaution o. Genossenschaftsanteile | 6765 |
Weiter mieten oder doch kaufen?
Wer in Miete wohnt, überweist dem Vermieter im Laufe der Jahre hohe Summen, die sich
auch in die eigenen vier Wände investieren lassen könnten.
Bausubstanz & Energieausweis
| Baujahr | 2014 |
|---|---|
| Letzte Sanierung | 2014 |
| Objektzustand | Vollständig Renoviert |
| Qualität der Austattung | Gehoben |
| Heizungsart | Gas-Heizung |
| Energieausweis | liegt zur Besichtigung vor |
Beschreibung des Objekts
Ausstattung
- Vollbad bestehend aus Badewanne, Regendusche und Fenster
- begehbarer, möblierter Kleiderschrank
- maßangefertigte Plissees an den Fenstern (in Schlafbereichen abdunkelnd, Wabenmuster innen)
- sichtgeschützte Terrasse am Wohnzimmer
- Dachterrasse am (Eltern-)Schlafzimmer
- Fliesenboden mit integrierter Fußbodenheizung
- kontrollierte Be- und Entlüftungsanlage
- Alarmanlage
Lage
Die Immobilie finden Sie in der lebenswerten Gemeinde Oststeinbek im Osten Hamburgs.
Oststeinbek befindet sich im südlichen Teil des Kreises Stormarn. Wir befinden uns grenzend an der Möllner Landstraße (L94), welche einen auf direktem Weg zur Autobahn führt und weiter entweder Richtung Lübeck / Rostock oder südlich Richtung Hannover und Bremen. Gleichfalls geht es ins allseits beliebte Hamburg über die A24.
Die Gemeinde verfügt über einen gut ausgebauten ÖPNV sowie einen allwöchentlichen Wochenmarkt, mehrere Hofläden, Restaurants, Banken, Tankstellen, verschiedene Einkaufsmöglichkeiten sowie kleinere Fachgeschäfte.
Sonstige Angaben
Bitte übermitteln Sie uns vorab Ihrerseits einige Informationen, damit wir diese dem Eigentümer weiterleiten können.
1. Zu wann möchten Sie einziehen?
2. Wer wird das Haus beziehen?
3. Was machen Sie aktuell (wie z. B. Beruf, Selbstständigkeit, Studium, o.ä.)?
4. Haben Sie Tiere? Was für ein Haustier, Katze, Hund oder Hamster?
Durch die Beantwortung Ihrer Fragen erhöhen Sie Ihre Chance, um zur Besichtigung eingeladen zu werden. Wir bedanken uns im Voraus.
Grundriss
Erdgeschoss-Grundrisszeichnung
>
>
Obergeschoss-Grundrisszeichnun
>
>
Adresse
22113 Oststeinbek
Interessante Orte
Preis- und Lageinformationen
Preistrend für Bestandsimmobilien in Oststeinbek