Das angebotene Haus ist ein altes Wirtschaftsgebäudes eines im Jahre 1913 erbauten Resthofes. Im Sommer 2003 wurde das Gebäude komplett entkernt und neu ausgebaut. Die Räume sind hell und freundlich und der Grundriss ist gut durchdacht! Im Erdgeschoss befindet sich die großzügige Diele mit Treppe nach oben sowie einer Garderobe mit Gäste-WC. Neben der Küche gibt es einen Essplatz sowie eine Speisekammer. Vom Wohnbereich hat man Zugang auf die große Südterrasse, von der man einen phantastischen Blick über das Feld genießt! Darüber hinaus ist die Ausstattung sehr geschmackvoll. Nähere Informationen entnehmen Sie bitte den beigefügten Grundrissen und Fotos.
Mietbeginn ab 01.09.2025.
Eine ganz besondere Immobilie. Eine Besichtigung ist sehr zu empfehlen!
Idylle pur: Hausteil auf Resthof in Feldrandlage!
22965 Todendorf
Die vollständige Adresse der Immobilie erhalten Sie vom Anbieter.
Auf Karte anzeigen
Die vollständige Adresse der Immobilie erhalten Sie vom Anbieter.
Infos
| Haustyp | Doppelhaushaelfte |
|---|---|
| Wohnfläche ca. | 124 m2 |
| Grundstücksfläche | 200 m2 |
| Zimmer | 4 |
Kosten
| Kaltmiete |
1.600 € |
|---|---|
| Nebenkosten | + 170 € |
| Heizkosten | + 210 € |
| Gesamtmiete | 1.980 € (zzgl. Heizkosten) |
Weiter mieten oder doch kaufen?
Wer in Miete wohnt, überweist dem Vermieter im Laufe der Jahre hohe Summen, die sich
auch in die eigenen vier Wände investieren lassen könnten.
Bausubstanz & Energieausweis
| Baujahr | 1913 |
|---|---|
| Heizungsart | Öl-Heizung |
Beschreibung des Objekts
Lage
Die 1.281 ha große und derzeit 1.084 Einwohner zählende Gemeinde Todendorf liegt ca. 20 km nordöstlich vor den Toren Hamburgs. Durch die B 404 bzw. die A 21 und die Autobahn Hamburg-Lübeck, die sich ca. 4 km vom Dorfzentrum entfernt kreuzen, liegt Todendorf sehr verkehrsgünstig.
Todendorf präsentiert sich heute als moderne, trotz des allgemeinen Strukturwandels noch immer von der Landwirtschaft geprägten Gemeinde mit hoher Lebensqualität. Das weitverzweigte Wegenetz der Gemeinde und das westlich gelegene Waldgebiet Forst Beimoor angrenzend nach Ahrensburg und Großhansdorf lädt zu jeder Jahreszeit zu ausgiebigen Wanderungen und Radtouren ein.
Der öffentliche Busverkehr wird durch Buslinien zur Kreisstadt, nach Bargteheide, Ahrensburg, Großhansdorf abgewickelt, womit die Verbindungen zur Deutschen Bahn AG gegeben sind.
Todendorf hat eine Kirche. Das alte Schulgebäude aus dem Jahre 1950 wurde 1998 umgestaltet und durch die bauliche Erweiterung wurden neue Räume für den Kindergarten erstellt.
Das rege Freizeitleben, getragen von der Freiwilligen Feuerwehr, von allen Vereinen, dem Kindergarten und dem Seniorenkreis, von denen einige eine lange Tradition vorweisen können, findet am Gemeindezentrum, dass im Jahre 2001/2002 neu erbaute Mehrweckhaus statt. Von allen Ortsansässigen wird das neue Gebäude attraktiv genutzt und wurde somit zum Treffpunkt für aller Bürgerinnen und Bürger von Todendorf.
Eine Grundschule sowie weiterführende Schulen befinden sich in Bargteheide und sind bequem mit dem Schulbus zu erreichen.
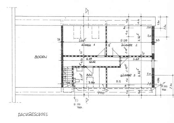
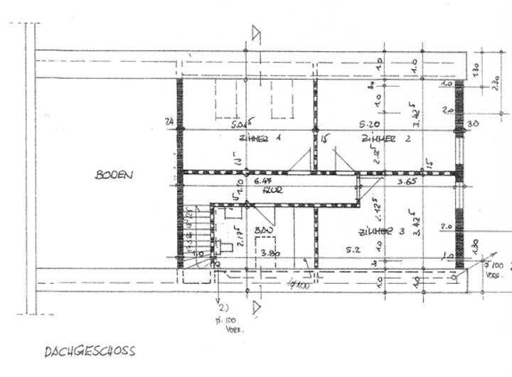
Grundriss
Grundriss EG a
>
>
Grundriss OG
>
>
Adresse
22965 Todendorf
Interessante Orte
Preis- und Lageinformationen
Preistrend für Bestandsimmobilien in Todendorf