Bei dem modernen Neubau aus dem Jahr 1998 handelt es sich um ein Mehrfamilienhaus mit Außenstellplatz.
Die verkehsgünstige Lage, nahe des Zwickauer Schwanenteichs und die unmittelbare Nähe zum Glück-Auf-Center zeichnen die Lage des Gebäudes besonders aus.
Modern sanierte 2-Zimmer-Wohnung mit Balkon in Schedewitz
Planitzer Straße 20,
08056 Zwickau
Auf Karte anzeigen
Infos
| Wohnungskategorie | Etagenwohnung |
|---|---|
| Etage | 3 von 5 |
| Wohnfläche ca. | 62 m2 |
| Bezugsfrei ab | sofort |
| Zimmer | 2 |
| Schlafzimmer | 1 |
| Badezimmer | 1 |
| Haustiere | Ja |
Kosten
| Kaltmiete |
399 € |
|---|---|
| Nebenkosten | + 180 € |
| Heizkosten | in Nebenkosten enthalten |
| Gesamtmiete | 579 € |
| Kaution o. Genossenschaftsanteile | 1.197,00 |
Weiter mieten oder doch kaufen?
Wer in Miete wohnt, überweist dem Vermieter im Laufe der Jahre hohe Summen, die sich
auch in die eigenen vier Wände investieren lassen könnten.
Bausubstanz & Energieausweis
| Baujahr | 1998 |
|---|---|
| Objektzustand | Vollständig Renoviert |
| Heizungsart | Zentralheizung |
| Wesentliche Energieträger | Gas |
| Energieausweis | liegt vor |
| Energieausweistyp | Verbrauchsausweis |
| Energieverbrauchskennwert | 132,2 kWh/(m²*a) |
| Energieeffizienzklasse | E |
132,2
kWh/(m²*a)
Energieeffizienzklasse E
- A+
- A
- B
- C
- D
- E
- F
- G
- H
- 0
- 25
- 50
- 75
- 100
- 125
- 150
- 175
- 200
- 225
- >250
Beschreibung des Objekts
Ausstattung
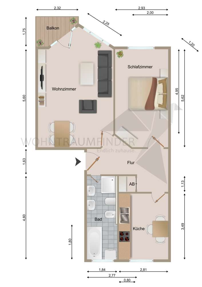
Die 2-Raum-Wohnung mit ca. 62m² befindet sich im 3. Obergeschoss des Gebäudes.
+ großes Wohnzimmer mit Balkon und Laminatbodenbelag
+ geräumiges Schlafzimmer mit Laminatbodenbelag
+ geflieste Küche mit Fenster und Fliesenspiegel
+ modern gefliestes Bad mit Wanne, Dusche, Doppelwaschbecken, WC, Bidet und Waschmaschinen-Stellplatz
+ Außen-Stellplatz anmietbar (zzgl. 28€/Monat)
Alle Angaben wurden nach bestem Wissen gemacht. Irrtümer und Zwischenvermietung vorbehalten. Dieses Exposé ist eine Vorinformation, als Rechtsgrundlage gilt allein der abgeschlossene Mietvertrag. Dem Verbraucher steht bei außerhalb von Geschäftsräumen geschlossenen Verträgen und bei Fernabsatzverträgen ein Widerrufsrecht gemäß § 355 BGB zu. Bitte beachten Sie unsere Widerrufsbelehrung. Diese finden Sie unter www.wohntraumfinder.com.
Lage
Mit rund 90.000 Einwohnern ist Zwickau die viertgrößte Stadt Sachsens. Die Zwickauer sind stolz auf ihre 900-jährige Geschichte.
Die „kleine Großstadt“ ist bekannt für ihre liebevoll sanierte historische Altstadt, in der Sie stressfrei shoppen, die Behaglichkeit rustikaler bis luxuriöser Gastronomie genießen oder bei einem kühlen Getränk einem Open-Air-Konzert lauschen können.
Kulturelles Zwickau:
Das Geburtshaus Robert Schumanns ist heute ein Museum und die automobile
Geschichte Zwickaus kann man im August Horch Museum anschaulich erleben.
In der Stadthalle Zwickau, im Konzert- und Ballhaus "Neue Welt" oder zum Beispiel auch auf der Freilichtbühne Zwickau erleben Sie das ganze Jahr über Konzerte, aufregende Musicals, Kabaretts und vieles mehr.
Schedewitz liegt im Norden des südlichen Zwickauer Stadtgebiets. Der Stadtteil schließt sich somit direkt an den Süden der Zwickauer Altstadt an.
Spazieren Sie durch den Schwanenteichpark und das Muldeparadies, radeln Sie auf dem Muldendamm, entlang der Zwickauer Mulde, durch alte Wälder und satte Wiesen oder schippern Sie gemütlich auf dem Schwanenteich.
Weitere Dokumente
360° TourGrundriss
Grundriss
>
>
Adresse
Planitzer Straße 20, 08056 Zwickau
Interessante Orte
Preis- und Lageinformationen
Preistrend für Bestandsimmobilien in Schedewitz/Geinitzsiedlung