Das Ensemblegeschützte Gebäude wurde bis zum Jahr 2014 komplett entkernt, neu aufgebaut und mit einen Anbau erweitert.
Insgesamt entstanden 12 Wohnungen und zwei Gewerbeeinheiten im Erdgeschoss. 8 Wohnungen befinden sich im Neu errichteten Vordergebäude und 4 Wohnungen im Rückgebäude.
Das Gebäude verfügt über eine Tiefgarage. Hier besteht die Möglichkeit Stellplätze und Kellerfläche anzumieten.
Helle licht durchflutete Wohnung in der Neustadt - ca. 112 m²
Neustadt 532,
84028 Landshut
Auf Karte anzeigen
Infos
| Wohnungskategorie | Etagenwohnung |
|---|---|
| Etage | 3 von 4 |
| Wohnfläche ca. | 112 m2 |
| Bezugsfrei ab | 01.03.2026 |
| Zimmer | 3,5 |
| Schlafzimmer | 2 |
| Badezimmer | 1 |
| Haustiere | Nein |
| Garage/Stellplatz | Tiefgarage |
| Anzahl Garage/Stellplatz | 1 |
Kosten
| Kaltmiete |
1.414 € |
|---|---|
| Nebenkosten | + 380 € |
| Heizkosten | in Nebenkosten enthalten |
| Gesamtmiete | 1.794 € |
| Miete für Garage/Stellplatz | 130 € |
| Kaution o. Genossenschaftsanteile | 3 Nettomonatsmieten |
Weiter mieten oder doch kaufen?
Wer in Miete wohnt, überweist dem Vermieter im Laufe der Jahre hohe Summen, die sich
auch in die eigenen vier Wände investieren lassen könnten.
Bausubstanz & Energieausweis
| Baujahr | 2014 |
|---|---|
| Letzte Sanierung | 2014 |
| Objektzustand | Gepflegt |
| Qualität der Austattung | Gehoben |
| Heizungsart | Solar-Heizung |
| Wesentliche Energieträger | Strom |
| Energieausweis | liegt vor |
| Energieausweistyp | Verbrauchsausweis |
| Energieverbrauchskennwert | 0,4 kWh/(m²*a) |
| Energieeffizienzklasse | A |
0,4
kWh/(m²*a)
Energieeffizienzklasse A
- A+
- A
- B
- C
- D
- E
- F
- G
- H
- 0
- 25
- 50
- 75
- 100
- 125
- 150
- 175
- 200
- 225
- >250
Beschreibung des Objekts
Ausstattung
Alle Wohnungen wurde hochwertig und auf hohen Standard ausgebaut:
- Echtholz-Eicheböden in Dielenoptik
- Niederenergie, super Energieeffizienz (BJ 2014)
- Video-Gegensprechanlage
- Fußbodenheizung in allen Räumen
- Ziegelbauweise
- hochwertige elektrotechnische Ausstattung mit extra viel Steckdosen und Datenanschlüssen
- hochwertige weiße Innentüren
- edle Bäder mit Tageslicht
- weiße schall gedämmte Fenster
- Fußbodenkühlung im Sommer
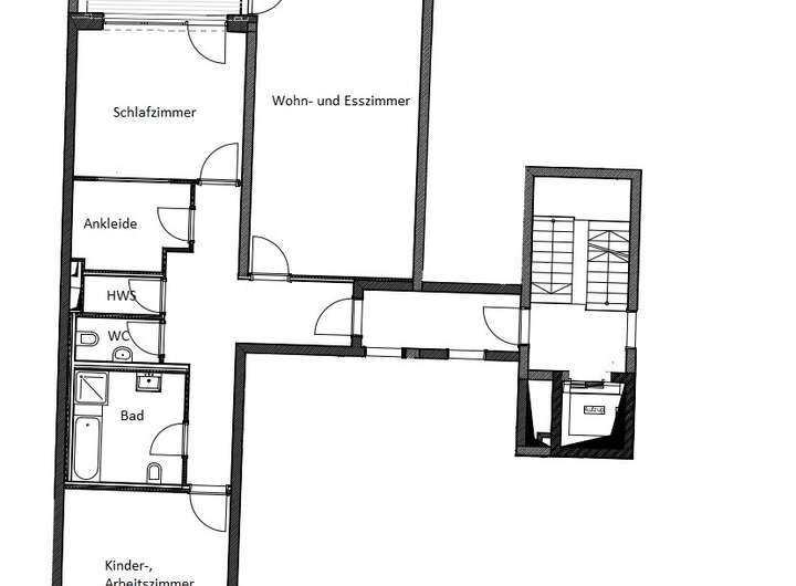
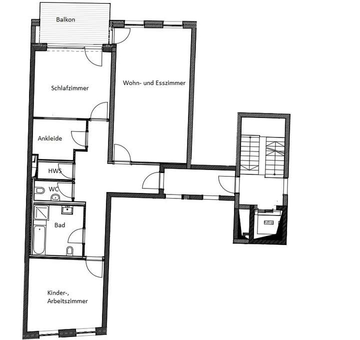
Die lichtdurchflutete Wohnung verfügt über ein Kinder-/Arbeitszimmer, Gäste-WC mit angrenzendem Hauswirtschaftsraum, ein Masterbad mit separater Dusche und Badewanne sowie einem Schlafzimmer mit Zugang zum Balkon sowie einen Wohn-Ess-Zimmer.
Die vorhandene Einbauküche kann gegebenenfalls vom jetzigen Mieter abgelöst werden.
Lage
Sie befinden sich direkt in der ruhige, historischen Neustadt und können die Ruhe über den Dächern Landshuts genießen oder in das lebendige Treiben der Stadt eintauchen. Einkaufsmöglichkeiten zur Deckung des täglichen Bedarfs sind fußläufig erreichbar. Restaurants, Bistros, Cafes, Weinstuben oder Bekleidungsgeschäfte befinden sich vor der Tür.
Die Nutzung der öffentlichen Verkehrsmittel ist durch die ca. 1 Fußminute entfernte Bushaltestelle gegeben. Die Autobahn A92 München-Deggendorf ist in ca. 10 Fahrminuten erreichbar.
Sonstige Angaben
Die Wohnung kann direkt vom Eigentümer gemietet werden. Es fällt keine Provision an.
Die Wohnung wird pauschal warm vermietet. Im angegebenen Mietpreis sind alle Nebenkosten inkl. Heizung/Warmwasser enthalten.
Alle Anfragen werden gerne beantwortet, wenn diese Ihre vollständige Telefonnummer, E-Mail sowie Adresse und vollständigen Namen (Vor- und Zuname) enthalten.
Sie können mich von Montag bis Donnerstag von 8:00 - 14:00 Uhr erreichen. Gerne können Sie mir auch eine E-Mail an sina.drexl@dr-kueffner.de zukommen lassen.
Grundriss
Grundriss
>
>
Adresse
Neustadt 532, 84028 Landshut
Interessante Orte
Preis- und Lageinformationen
Preistrend für Bestandsimmobilien in Altstadt