Wenn Sie keine Lust auf "Wohnen von der Stange" haben, sondern ein modernes Zuhause mit echtem Stadthaus-Charakter suchen: Bitte einmal hier entlang. Dieses TOPmoderne Stadthaus liegt mitten in der Hochheimer Kernstadt – kurze Wege, urbanes Leben und dennoch ein Rückzugsort mit klarer Struktur über mehrere Ebenen. Ideal für Paare mit Platzbedarf, für Homeoffice und ganz besonders für die junge Familie, die Zimmer, Stauraum und Alltagstauglichkeit schätzt.
Das Haus wurde energieeffizient in Porotonstein errichtet – das sorgt für ein angenehmes Wohnklima und passt perfekt zur modernen Ausstattung: Fußbodenheizung, Kunststoff-Dreifachverglasung mit Rollläden sowie mehrere Tageslichtbäder. Hier wohnen Sie hell, komfortabel und zeitgemäß – ohne "Bad-im-Bunker"-Gefühl.
Raumaufteilung – clever über 3 Ebenen
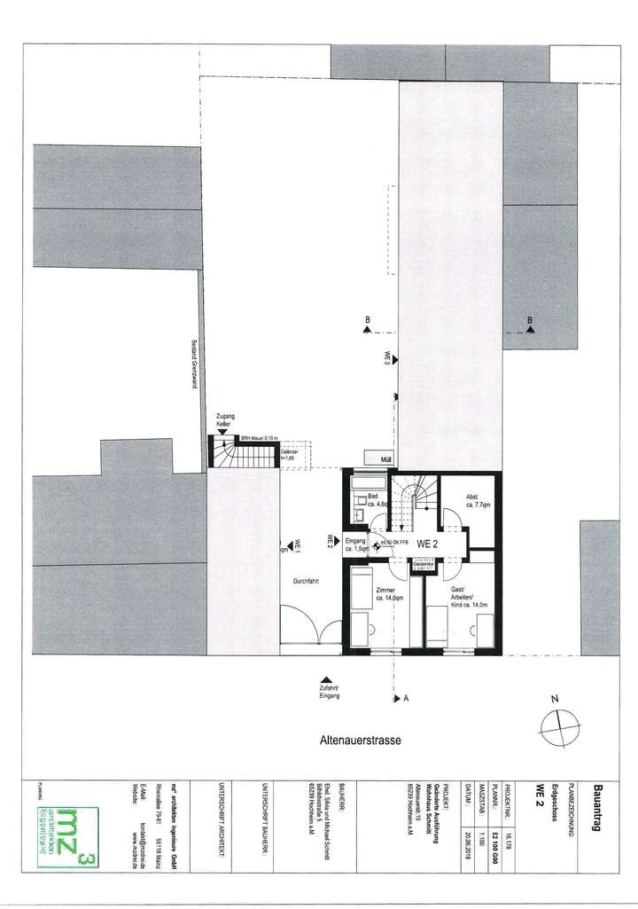
Erdgeschoss – Rückzug, Arbeiten, Gäste oder Kinder
Bereits beim Ankommen wirkt alles ordentlich und gut strukturiert: Flur/Treppenhaus als zentrale Achse, dazu funktionale Räume, die den Alltag spürbar erleichtern.
Flur/Treppenhaus
Schlafzimmer (auch ideal als Gästezimmer)
Arbeitszimmer (Homeoffice, Hobby, Kinderzimmer – flexibel nutzbar)
Tageslicht-Wannenbad
Abstellkammer innerhalb der Wohnung (für Staubsauger, Vorräte, Kisten & Co.)
Diese Ebene macht das Stadthaus besonders alltagstauglich: Schlafen/Arbeiten getrennt vom Wohnen – und bei Familien ist die Nutzung ebenso unkompliziert wie praktisch.
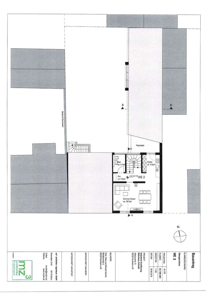
Obergeschoss – Wohnen, Essen, Leben
Hier befindet sich der Mittelpunkt des Hauses: offen, freundlich und kommunikativ – genau so, wie modernes Wohnen heute gedacht ist.
Wohn-/Esszimmer
Offene Küche
Flur/Treppenhaus
Tageslicht-Gäste-WC
Ob Feierabend, Familienleben oder Gäste: Diese Etage bietet Raum für alles, was Ihnen wichtig ist.
Dachgeschoss – Privater Masterbereich + Dachterrasse
Im Dachgeschoss wird es ruhig und privat – mit einem echten Highlight im Außenbereich:
Schlafzimmer mit Ankleide
Tageslicht-Duschbad
Dachterrasse (perfekt für Frühstück in der Sonne, Lounge am Abend, Kräutertöpfe oder einfach frische Luft)
Ausstattung – modern, sinnvoll, hochwertig
Besonders angenehm: Tageslicht-Wannenbad, Tageslicht-Duschbad und Tageslicht-Gäste-WC – das ist nicht nur ein Ausstattungsdetail, sondern echte Wohnqualität.
Hier wurde nicht nur optisch geplant, sondern konsequent mit Blick auf Nutzung und Komfort:
Parkett-, Fliesen- und Laminatboden
Fußbodenheizung
Kunststoff-Dreifachverglasung mit Rollläden
SAT-TV
Netzwerkverkabelung
Hauswirtschaftsraum
zusätzlicher Waschmaschinenanschluss im Badezimmer
Kellerraum
OPTIONAL: PKW-Außenstellplatz (35,-EUR mtl.)
Für wen ist dieses Stadthaus ideal?
Junge Familien, die Platz, Struktur und Stauraum benötigen (inklusive Dachterrasse)
Paare mit Anspruch an modernes Wohnen und klare Raumtrennung
Berufstätige im Homeoffice, die wirklich sinnvoll getrennte Arbeitsbereiche brauchen
Alle, die modern, gepflegt und energieeffizient wohnen möchten
Interesse?
Wenn Sie ein modernes Stadthaus suchen, das nicht nur gut aussieht, sondern sich im Alltag bewährt, passt dieses Angebot.
Bitte senden Sie uns für die Terminabstimmung zur Besichtigung kurz Ihre Eckdaten (Personenzahl, Beruf, gewünschter Einzugstermin).
TOPmodernes Stadthaus Hochheim/Kernstadt – energieeffizient, hell, familienfreundlich
65239 Hochheim am Main
Die vollständige Adresse der Immobilie erhalten Sie vom Anbieter.
Auf Karte anzeigen
Die vollständige Adresse der Immobilie erhalten Sie vom Anbieter.
Infos
| Haustyp | Einfamilienhaus |
|---|---|
| Etagenzahl | 3 |
| Wohnfläche ca. | 136 m2 |
| Nutzfläche | 10 m2 |
| Grundstücksfläche | 6 m2 |
| Zimmer | 4 |
| Schlafzimmer | 3 |
| Badezimmer | 3 |
| Garage/Stellplatz | Außenstellplatz |
| Anzahl Garage/Stellplatz | 1 |
Kosten
| Kaltmiete |
1.720 € |
|---|---|
| Nebenkosten | + 260 € |
| Heizkosten | in Nebenkosten enthalten |
| Gesamtmiete | 1.980 € |
Weiter mieten oder doch kaufen?
Wer in Miete wohnt, überweist dem Vermieter im Laufe der Jahre hohe Summen, die sich
auch in die eigenen vier Wände investieren lassen könnten.
Bausubstanz & Energieausweis
| Baujahr | 2019 |
|---|---|
| Qualität der Austattung | Gehoben |
| Heizungsart | Holz-Pelletheizung |
| Wesentliche Energieträger | Holz |
| Energieausweis | liegt vor |
| Energieausweistyp | Bedarfsausweis |
Beschreibung des Objekts
Ausstattung
-Parkett, Fliesenboden, Laminat
-Fußbodenheizung
-Kunstoffdreifachverglasung mit Rolläden
-Tageslicht-Wannenbad
-Tageslicht-Duschbad
-Tageslicht-Gäste-WC
-SAT-TV
-Netzwerkverkabelung
-Hauswirtschaftsraum
-zusätzlicher WM-Anschluss im Badezimmer
-Kellerraum
-PKW-Aussenstellplatz
-Dachterrasse
Lage
Das Haus befindet sich im direkten Stadtkern von Hochheim am Main.
Die über 1250 Jahre alte Wein- und Sektstadt Hochheim am Main (ca. 18.000 Einwohner) ist eine liebenswerte Stadt mit besonderer Atmosphäre. Sie liegt idyllisch von Weinbergen umgeben am rechten Mainufer etwa 35 Meter über dem Fluß und 124 Meter über dem Meeresspiegel. Nahe der Großstädte Frankfurt (Innenstadt 30 km, ca. 25 Min.), Wiesbaden (15 km - 12 Min.) und Mainz (8 km - 10 Min.) liegend hat man von Hochheim aus einen einzigartigen Ausblick über Reben hinweg in das Maintal bis hin nach Mainz oder den Odenwald. Hochheim liegt im Herzen des Rhein-Main-Gebietes mit bester Infrastruktur und hohem Naherholungswert. Die historische Altstadt mit ihren originellen Straußwirtschaften und Biergärten ist ein gern besuchtes Ausflugsziel für Menschen aus Nah und Fern.
Grundriss
Erdgeschoss
>
>
Obergeschoss
>
>
Dachgeschoss
>
>
Adresse
65239 Hochheim am Main
Interessante Orte
Preis- und Lageinformationen
Preistrend für Bestandsimmobilien in Hochheim am Main