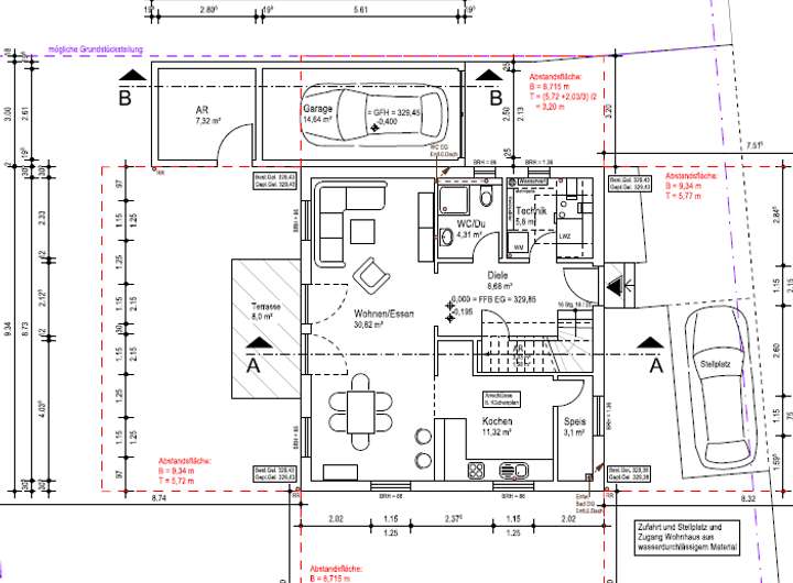
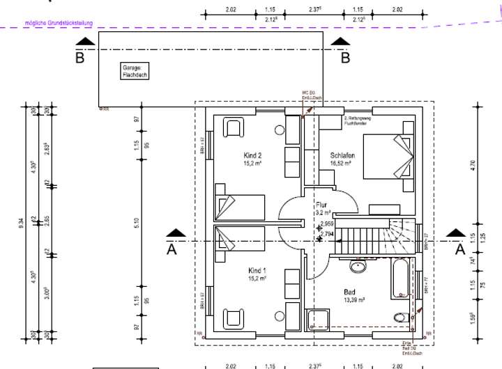
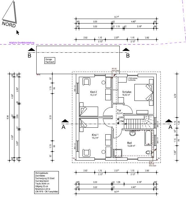
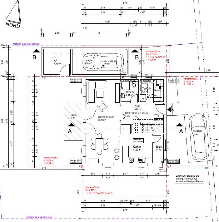
Das in 2020 erbaute Einfamilienhaus besticht durch eine gehobene Innenausstattung. Neben vier attraktiven Zimmern gehören außerdem auch zwei Badezimmer zur Immobilie. Mindestraumhöhe im Obergeschoß beträgt ca. 2m.
Das Wohnhaus besitzt keinen Keller.
Das Haus erfüllt den KfW 40 Standard.
Die monatliche Kaltmiete für die Immobilie (1.550 €) mit Garage und einem Außenstellplatz (50 €) beträgt 1.600 Euro. Hinzu kommen 200 Euro Nebenkostenvorauszahlung für Wasser, Abwasser, Abfallentsorgung, Wartung und Versicherungen / Steuer. Der Wert entspricht dem Verbrauch einer 3- köpfigen Familie und kann ggf. angepasst werden.
Übernahme der Küche vom Vormieter wäre praktikabel.
Mietbeginn ab 1. März 2026 möglich.
Schönes freistehendes EFH Baujahr 2020 - A+
93092 Barbing
Die vollständige Adresse der Immobilie erhalten Sie vom Anbieter.
Auf Karte anzeigen
Die vollständige Adresse der Immobilie erhalten Sie vom Anbieter.
Infos
| Haustyp | Einfamilienhaus |
|---|---|
| Etagenzahl | 2 |
| Wohnfläche ca. | 140 m2 |
| Nutzfläche | 30 m2 |
| Grundstücksfläche | 480 m2 |
| Bezugsfrei ab | 1.3.2026 |
| Zimmer | 4 |
| Schlafzimmer | 3 |
| Badezimmer | 2 |
| Haustiere | Nach Vereinbarung |
| Garage/Stellplatz | Garage |
| Anzahl Garage/Stellplatz | 1 |
Kosten
| Kaltmiete |
1.600 € |
|---|---|
| Nebenkosten | + 200 € |
| Heizkosten | keine Angabe |
| Gesamtmiete | 1.800 € (zzgl. Heizkosten) |
| Kaution o. Genossenschaftsanteile | 3 Monatsmieten |
Weiter mieten oder doch kaufen?
Wer in Miete wohnt, überweist dem Vermieter im Laufe der Jahre hohe Summen, die sich
auch in die eigenen vier Wände investieren lassen könnten.
Bausubstanz & Energieausweis
| Baujahr | 2020 |
|---|---|
| Objektzustand | Neuwertig |
| Qualität der Austattung | Gehoben |
| Heizungsart | Fußbodenheizung |
| Wesentliche Energieträger | Umweltwärme |
| Energieausweis | liegt vor |
| Energieausweistyp | Bedarfsausweis |
| Energieverbrauchskennwert | 18,0 kWh/(m²*a) |
| Energieeffizienzklasse | A+ |
18,0
kWh/(m²*a)
Energieeffizienzklasse A+
- A+
- A
- B
- C
- D
- E
- F
- G
- H
- 0
- 25
- 50
- 75
- 100
- 125
- 150
- 175
- 200
- 225
- >250
Beschreibung des Objekts
Ausstattung
* lichtdurchflutete Räume
* pflegeleichter Vinyl Boden
* moderne Fliesen
* hochwertige sanitäre Ausstattung – 2 Bäder
* Fußbodenheizung
* große Terrasse
* Luft Wärme Pumpe KfW 40 Standard
* Energieausweis: Energiebedarf A+
* 1 Garagenstellplatz und zwei weiterer Stellplätze
* Garage mit Vorbereitung einer Wallbox
* separater Abstellraum im Außenbereich
Lage
Im schönen Ortsteil Sarching der Gemeinde Barbing wurde im Ortszentrum eine Baulücke mit 3 Einfamilienhäusern bebaut.
Die Zufahrt zu den Wohnhäusern ist privat und verkehrsberuhigt.
Eine Kinderkrippe und -garten, Vereinsheim und Sportstätten befinden sich in unmittelbarer Nähe.
Ihr neuer Lebens- und Wohnraum befindet sich vor den Toren Regensburgs in dörflicher Umgebung und nur wenige Minuten von der Stadt entfernt. Sie genießen die ruhige Lage, Naherholung am Sarchinger Weiher und wohnen dennoch nur 6 km von der Stadt entfernt.
Eine sehr gute Verkehrsanbindung (A3, B8 in 4 min erreichbar) und ein öffentlicher Personennahverkehr gewährleisten die Mobilität der Anwohner.
Sonstige Angaben
Die Küche und diverse Möbelstücke können vom Vormieter nach Absprache übernommen werden.
Weitere Dokumente
EnergieausweissGrundriss
EG
>
>
OG
>
>
Adresse
93092 Barbing
Interessante Orte
Preis- und Lageinformationen
Preistrend für Bestandsimmobilien in Barbing