Bei dieser Immobilie handelt es sich um ein dreistöckiges, neuwertiges Reihenendhaus. Das Objekt zeichnet sich durch eine gehobene Innenausstattung aus und kann zum 01.04.2025 bezogen werden. Ein früherer Übergabetermin kann auf Wunsch vereinbart werden. Ein Badezimmer und ein separates Gäste-WC zählen neben fünf attraktiven Zimmern zu dem Haus. Ihnen stehen außerdem eine Einbauküche sowie eine Garage für Ihr Auto (mit Wallbox und direkten Zugang zum Haus) sowie ein Kellerraum und ein Technikraum zur Verfügung.
Vom Wohnzimmer haben Sie direkten Zugang zur Terrasse mit Ausrichtung nach Westen, an die sich ein grüner Garten anschließt. Einen ganz besonderen Ausblick über Kornwestheim können Sie von der großzügigen Dachterrasse nach Süden genießen, welche sich an das Studio im Dachgeschoss anschließt.
Das 2017 erbaute Gebäude wird durch eine Gas-Heizung beheizt. Die monatliche Miete für die Immobilie mit Grundstück beträgt 2.280 Euro zuzüglich 80 Euro für die Garage im Haus.
Es wird ein Indexmietvertrag angeboten.
Wohnen am Park - Modernes Reihenendhaus, EBK, Dachterrasse und Garten mit Terrasse
70806 Kornwestheim
Die vollständige Adresse der Immobilie erhalten Sie vom Anbieter.
Auf Karte anzeigen
Die vollständige Adresse der Immobilie erhalten Sie vom Anbieter.
Infos
| Haustyp | Reiheneckhaus |
|---|---|
| Etagenzahl | 3 |
| Wohnfläche ca. | 190 m2 |
| Grundstücksfläche | 244 m2 |
| Bezugsfrei ab | 1.4.2026 |
| Zimmer | 5 |
| Schlafzimmer | 4 |
| Badezimmer | 1 |
| Haustiere | Nein |
| Garage/Stellplatz | Garage |
| Anzahl Garage/Stellplatz | 1 |
Kosten
| Kaltmiete |
2.360 € |
|---|---|
| Nebenkosten | + 140 € |
| Heizkosten | + 80 € |
| Gesamtmiete | 2.580 € (zzgl. Heizkosten) |
| Miete für Garage/Stellplatz | 80 € |
| Kaution o. Genossenschaftsanteile | 4720 |
Weiter mieten oder doch kaufen?
Wer in Miete wohnt, überweist dem Vermieter im Laufe der Jahre hohe Summen, die sich
auch in die eigenen vier Wände investieren lassen könnten.
Bausubstanz & Energieausweis
| Baujahr | 2017 |
|---|---|
| Objektzustand | Neuwertig |
| Qualität der Austattung | Gehoben |
| Heizungsart | Gas-Heizung |
| Wesentliche Energieträger | Gas |
| Energieausweis | liegt vor |
| Energieausweistyp | Bedarfsausweis |
| Energieverbrauchskennwert | 52,3 kWh/(m²*a) |
| Energieeffizienzklasse | B |
52,3
kWh/(m²*a)
Energieeffizienzklasse B
- A+
- A
- B
- C
- D
- E
- F
- G
- H
- 0
- 25
- 50
- 75
- 100
- 125
- 150
- 175
- 200
- 225
- >250
Beschreibung des Objekts
Ausstattung
- Parkett im Wohnzimmer, hochwertiger Laminatboden oder Fliesen in allen anderen Bereichen
- moderne Fußbodenheizung mit Temperatursteuerung je Raum, energieeffiziente Warmwasserbereitung mit Solarthermieunterstützung
- große Einbauküche mit 80cm Induktionskochfeld und Inselhaube
- Garage für einen PKW mit elektrischem Garagentor und Wallbox
Lage
Die Immobilie befindet sich in beliebter Wohnlage in Kornwestheim direkt an einem Park. Nahe gelegen gibt es mehrere Buslinien und die Bahnlinien S4, S5 und RB11 (nach Untertürkheim), die Sie mit regionalen und überregionalen Zielen verbinden. In direkter Umgebung finden Sie verschiedene Restaurants, Bäckereien, Cafés, Ärzte und ein Einkaufszentrum vor. Auch Modegeschäfte, weitere Grün- und Parkanlagen, Fitnessstudios, Bars und eine Buchhandlungen sind zu Fuß erreichbar.
Bitte beachten Sie, dass wir nur auf aussagekräftige Anfragen antworten können.
Grundriss
Untergeschoss
>
>
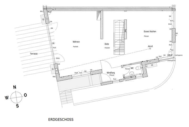
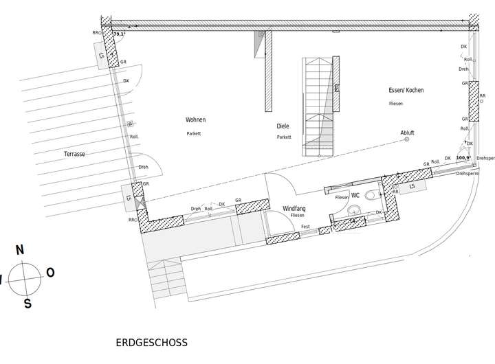
Erdgeschoss
>
>
Obergeschoss
>
>
Dachgeschoss
>
>
Adresse
70806 Kornwestheim
Interessante Orte
Preis- und Lageinformationen
Preistrend für Bestandsimmobilien in Kornwestheim