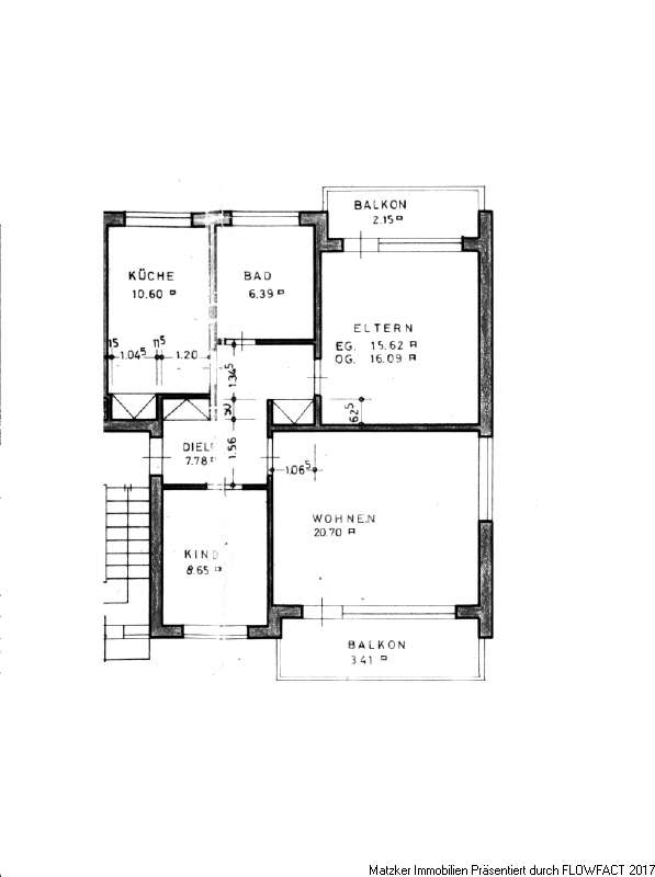
Ein sehr gepflegtes Mehrfamilienhaus in zentraler Wohnlage mit insgesamt 6 Wohneinheiten. Die Wohnung befindet sich im 1. Obergeschoss und ist aufgeteilt in Wohn- Esszimmer mit Balkon, Küche und Flur mit Einbauschränken, Schlafzimmer mit Balkon, Kinderzimmer und Bad mit Wanne, WC und Waschmaschinenanschluss. Ein Gemeinschaftsraum zum Wäschetrocknen ist vorhanden. Die Fahrräder können im gemeinschaftlichen Fahrradkeller abgestellt werden. Ein eigener Kellerraum und eine Garage die mit 30,00 € monatlich berechnet wird gehören zum Wohnungsangebot.
WBS erforderlich! Gut geschnittene 3 Zimmerwohnung!
48282 Emsdetten
Die vollständige Adresse der Immobilie erhalten Sie vom Anbieter.
Auf Karte anzeigen
Die vollständige Adresse der Immobilie erhalten Sie vom Anbieter.
Infos
| Wohnungskategorie | Etagenwohnung |
|---|---|
| Wohnfläche ca. | 72 m2 |
| Bezugsfrei ab | 01.03.2026 |
| Zimmer | 3 |
| Schlafzimmer | 2 |
| Badezimmer | 1 |
| Haustiere | Nein |
| Garage/Stellplatz | Garage |
| Anzahl Garage/Stellplatz | 1 |
Kosten
| Kaltmiete |
379 € |
|---|---|
| Nebenkosten | + 184 € |
| Heizkosten | keine Angabe |
| Gesamtmiete | 593 € (zzgl. Heizkosten) |
| Miete für Garage/Stellplatz | 30 € |
| Kaution o. Genossenschaftsanteile | 760 |
Weiter mieten oder doch kaufen?
Wer in Miete wohnt, überweist dem Vermieter im Laufe der Jahre hohe Summen, die sich
auch in die eigenen vier Wände investieren lassen könnten.
Bausubstanz & Energieausweis
| Baujahr | 1974 |
|---|---|
| Heizungsart | Etagenheizung |
| Wesentliche Energieträger | Gas |
| Energieausweis | liegt vor |
| Energieausweistyp | Verbrauchsausweis |
| Energieverbrauchskennwert | 127,0 kWh/(m²*a) |
| Energieeffizienzklasse | D |
127,0
kWh/(m²*a)
Energieeffizienzklasse D
- A+
- A
- B
- C
- D
- E
- F
- G
- H
- 0
- 25
- 50
- 75
- 100
- 125
- 150
- 175
- 200
- 225
- >250
Beschreibung des Objekts
Ausstattung
+ Modernisiertes Badezimmer
+ Außenrollladen
+ 2x Balkone
+ Die Innenmalerarbeiten sind vom Mieter auf eigene Kosten auszuführen
+ Fliesen in Küche und Bad, Laminat in allen weiteren Räumen
+ In der Nebenkostenvorauszahlung sind die Kosten für Strom und Gas nicht enthalten
+ Die Einbauküche kann nicht übernommen werden
+ Bezug ab dem 01.03.2026 oder nach Vereinbarung
Lage
Die Wohnung liegt in stadtnaher Lage von Emsdetten. Der Bahnhof und die Innenstadt sind schnell zu Fuß erreicht. Emsdetten mit ca. 36.000 Einwohnern, im Herzen des Kreises Steinfurt gelegen, erfreut sich immer größerer Beliebtheit. Der Stadtkern bietet mit seinen attraktiven Einkaufsmöglichkeiten und den zwei Markttagen ein reizvolles Flair. Neben einem Kino verfügt die Stadt auch über eine belebte Gastronomie. Die EMS-HALLE, eine der größten Veranstaltungshallen der Region ist regelmäßig Bühne für Top-Veranstaltungen aus Musik, Theater, Sport und Comedy. Genießen Sie per Rad oder zu Fuß die unberührte Natur im Emsdettener Venn.
Sonstige Angaben
BITTE BEACHTEN SIE UNBEDINGT!
Für die Anmietung ist ein Wohnberechtigungsschein (WBS) zwingend erforderlich.
Ideale Wohnung für den Mieter der ein angenehmes Wohnumfeld sucht. Tierhaltung (Hunde, Katzen) ist nicht erwünscht. Der Mietvertrag wird mit einer Mindestlaufzeit von 2 Jahren abgeschlossen.
Bitte haben Sie Verständnis, dass wir aufgrund der Nachweispflicht gegenüber dem Eigentümer und gesetzlicher Bestimmungen (Geldwäschegesetz) nur Anfragen mit vollständiger Nennung Ihres Namens, Ihrer Anschrift und einer Rückrufmöglichkeit bearbeiten können. Nachdem Sie uns Ihre Daten bekannt gegeben haben, übersenden wir Ihnen gerne ein Exposé oder vereinbaren mit Ihnen einen Besichtigungstermin.
Grundriss
Grundriss
>
>
Adresse
48282 Emsdetten
Interessante Orte
Preis- und Lageinformationen
Preistrend für Bestandsimmobilien in Emsdetten