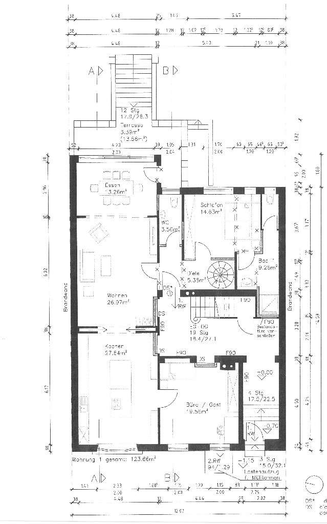
Im Erd-/Untergeschoss der Immobilie befindet sich diese großzügig geschnittene 4-Zimmerwohnung.
Sie bietet ein herrschaftliches Wohn-/Esszimmer mit herrlichem Blick in den Garten. Eine große Küche ist durch eine Doppel-Schiebetür vom Wohnzimmer getrennt. Edle Parkettböden, historische Heizkörperverzierungen, Fensterbänke aus belgischem Granit sowie hohe Decken mit aufwendigen Stuckelementen verleihen dieser Wohnung einen besonderen Charme, den Neubauten nicht erzeugen können.
Angrenzend an das Wohnzimmer befindet sich eine kleine Terrasse. Über eine imposante Treppe erreichen Sie den Garten, für den die Erdgeschossmieter das alleinige Nutzungsrecht erhalten.
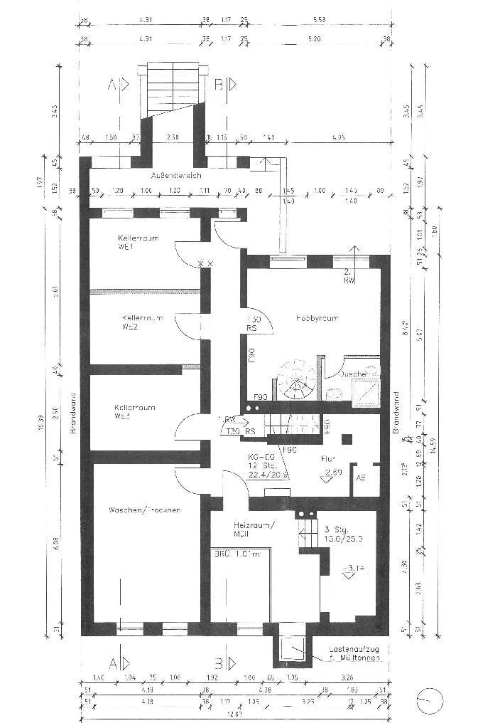
Ein großes Schlafzimmer mit eigenem Badezimmer, ein Gäste-WC sowie ein weiteres Gäste-/Arbeitszimmer runden das gelungene Wohnprogramm im Erdgeschoss ab. Über eine innenliegende Wendeltreppe erreichen Sie das Untergeschoss, in dem ein zweites Schlaf-/Arbeitszimmer mit weiterem Duschbad auf Sie wartet.
Moderne Erdgeschoss-Maisonettewohnung mit schönem Garten in historischem Gebäude in MG-W
41189 Mönchengladbach
Die vollständige Adresse der Immobilie erhalten Sie vom Anbieter.
Auf Karte anzeigen
Die vollständige Adresse der Immobilie erhalten Sie vom Anbieter.
Infos
| Wohnungskategorie | Erdgeschosswohnung |
|---|---|
| Wohnfläche ca. | 142 m2 |
| Bezugsfrei ab | nach Absprache |
| Zimmer | 4 |
| Schlafzimmer | 3 |
| Badezimmer | 2 |
| Anzahl Garage/Stellplatz | 2 |
Kosten
| Kaltmiete |
1.495 € |
|---|---|
| Nebenkosten | + 426 € |
| Heizkosten | in Nebenkosten enthalten |
| Gesamtmiete | 1.921 € |
| Miete für Garage/Stellplatz | 75 € |
| Kaution o. Genossenschaftsanteile | 4485.00 EUR |
Weiter mieten oder doch kaufen?
Wer in Miete wohnt, überweist dem Vermieter im Laufe der Jahre hohe Summen, die sich
auch in die eigenen vier Wände investieren lassen könnten.
Bausubstanz & Energieausweis
| Baujahr | 1900 |
|---|---|
| Letzte Sanierung | 2021 |
| Objektzustand | Saniert |
| Qualität der Austattung | Gehoben |
| Heizungsart | Zentralheizung |
| Wesentliche Energieträger | Gas |
| Energieausweis | laut Gesetz nicht erforderlich |
Beschreibung des Objekts
Ausstattung
- historischer Parkettboden
- moderne Badezimmer mit ebenerdiger Dusche
- hohe Decken
- Garten
- Kellerraum
- viele historische Bauelemente
- Neben dem Gebäude befinden sich insgesamt 7 Stellplätze.
Lage
Das Gebäude liegt im Zentrum des südlichen Mönchengladbacher Stadtteils Wickrath. Im Ort finden Sie alle wichtigen Einkaufs-, Sozial- und Infrastruktureinrichtungen des täglichen Bedarfes, wie z. B. Lebensmittel- und Drogeriemärkte, Bank-Filialen, Ärzte und Apotheken.
Wickrath verfügt über eine Grundschule, eine Realschule und mehrere Kindergärten. Gymnasien sind in den Nachbarorten Rheydt, Odenkirchen und Rheindahlen ebenfalls schnell erreichbar.
Direkt vor der Haustür liegen der Schlosspark Wickrath, das Schlossbad Niederrhein sowie die Eventhalle „Kunstwerk“, überregional bekannt und beliebt, sowie der Niersgrünzug.
Im Grünen finden hier Spaziergänger, Jogger und Walker ideale Voraussetzungen zur Ausübung ihrer Hobbys.
Sonstige Angaben
Hinweis: Keine Energieausweispflicht, da denkmalgeschützt.
Grundriss
Grundriss EG
>
>
Grundriss KG
>
>
Adresse
41189 Mönchengladbach
Interessante Orte
Preis- und Lageinformationen
Preistrend für Bestandsimmobilien in Wickrath-Mitte