Entdecken Sie das innovative Mehrfamilienhaus in Pentling Großberg. Dieses besticht durch moderne Ästhetik, sowie eine nachhaltige und hochqualitative Bauweise mit folgenden Highlights: + KfW Förderung (Programm 300 für Selbstnutzer) + KfW Förderung für alle (Programm 297 / 298) + 5% Degressive Afa für Kapitalanleger + Bestes Preis-/Leistungsverhältnis + Aufzug (Tiefgarage bis Dachgarten) + Begrüntes Dach / Gemeinschaftsgarten + Photovoltaikanlage für Allgemeinstrom + UVM. Durch die ökologische Holzbauweise, das moderne Wohnkonzept und die eigene Energieerzeugung, entsteht ein Vorreiter für ein nachhaltiges Bauen und Wohnen. Erleben Sie einen durchdachten Wohnungsmix mit vielseitigen Möglichkeiten. Wir von SCHEITER IMMOBILIEN beraten Sie gerne und begleiten Sie bis zur Übergabe, sowie darüber hinaus! Die 24 verschiedenen Wohneinheiten bieten auf 3 unterschiedlichen Stockwerken zwischen 57 und 95 Quadratmetern Wohnfläche - genug Lebensraum für Einzelpersonen, aber auch Familien mit Kindern.
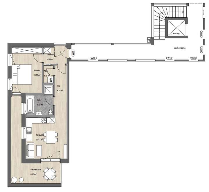
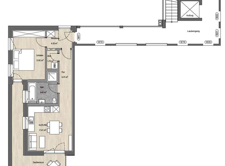
Whg 17 - Zweizimmerdachgeschosswohnung mit umlaufender Dachterrasse
Kunigundenweg 3,
93080 Pentling
Auf Karte anzeigen

Finanzierungszertifikat
In nur zwei Minuten zu Ihrem persönlichen Finanzierungszertifkat.
Infos
Wohnungskategorie | Dachgeschoss |
---|---|
Etage | 2 von |
Wohnfläche ca. | 59 m2 |
Bezugsfrei ab | Juli 2025 |
Zimmer | 2 |
Schlafzimmer | 1 |
Badezimmer | 1 |
Kosten
Kaufpreis |
368.000 € |
---|---|
Provision | Nein |
Finanzierungsrechner:
Kaufpreis:
600.000 €
Eigenkapital:
600.000 €
Monatliche Rate
0 €
Effektiver Jahreszins
0 %
Sollzinsbindung
10 Jahre
Bausubstanz & Energieausweis
Baujahr | 2023 |
---|---|
Heizungsart | Fußbodenheizung |
Energieausweis | laut Gesetz nicht erforderlich |
Beschreibung des Objekts
Ausstattung
- Aufzug - Parkettboden - Tiefgarage - Photovoltaikanlage - kontrollierte Be- und Entlüftungsanlage - Kellerabteil - Stufenfreier Zugang - Dachterrasse
Lage
Die beiden natur- und zugleich stadtnahen Grundstücke befinden sich in der nur 10 km südlich von Regensburg gelegenen Gemeinde Pentling im Ortsteil Grossberg. Pentling bietet für seine rund 7.000 Einwohner alle Dinge des täglichen Bedarfs, wie Supermärkte, Arztpraxen und eine Grundschule. Die unmittelbare Nähe zur Donau sowie die kurze Anfahrtszeit zur Domstadt verleihen der Gemeinde einen besonders hohen Freizeit und Erholungswert. Abgerundet wir die gute Lage der Objekte durch die sehr gute Anbindung an den öffentlichen Nahverkehr sowie an die A93 und B16.
Sonstige Angaben
Stellplatzkaufpreise belaufen sich auf: je Außenstellplatz: 15.000€ je Duplex-Stellplatz Tiefgarage: 20.000€ je großzügiger Einzelstellplatz TG: 35.000€ Beachten Sie den Link auf unsere Homepage mit allen Fördermöglichkeiten im Neubau! Verkauf erfolgt provisionsfrei! Energieausweis wird nicht benötigt. Für Fragen stehen wir Ihnen gerne zur Verfügung. Bitte beachten Sie, dass für die im Exposé aufgeführten Angaben keine Haftung übernommen wird. Mit freundlichen Grüßen SCHEITER IMMOBILIEN Weitere Angebote finden Sie unter: https://www.scheiter-immobilien.de/vio-pentling/
Grundriss
Grundriss Whg 17
>

Adresse
Kunigundenweg 3, 93080 Pentling
Interessante Orte
Preis- und Lageinformationen
Preistrend für Bestandsimmobilien in Pentling