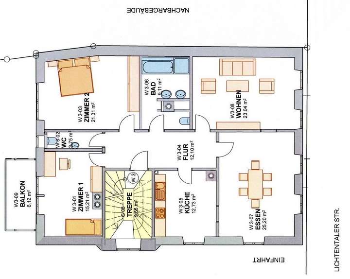
Zur Vermietung steht eine denkmalgeschützte Wohnung in Baden-Baden. Das im Jahr 1906 erbaute Gebäude wurde im Jahr 2016 luxuriös kernsaniert und befindet sich somit in einem hochwertigen Zustand. Die Wohnung befindet sich im zweiten Obergeschoss und verfügt über eine Wohnfläche von ca. 125 m². Insgesamt bietet sie Platz für 4 Zimmer, darunter 2 Schlafzimmer, 1 Esszimmer, 1 Wohnzimmer, 1 Badezimmer sowie einer Gästetoilette. Der Boden ist mit Eichenparkett ausgelegt. Ein attraktiver Balkon zur Innenhofseite des Hauses sowie ein großzügiger Kellerraum runden das Angebot ab.
Diese charmante Wohnung eignet sich ideal für Mieter, die ein historisches Ambiente schätzen und dennoch modernen Komfort genießen möchten. Die denkmalgeschützte Architektur verleiht dem Objekt einen besonderen Charme und sorgt für eine einzigartige Wohnatmosphäre.
Kernsanierte Altbauetage in absoluter Innenstadtlage
76530 Baden-Baden
Die vollständige Adresse der Immobilie erhalten Sie vom Anbieter.
Auf Karte anzeigen
Die vollständige Adresse der Immobilie erhalten Sie vom Anbieter.
Infos
| Etage | 2 von 4 |
|---|---|
| Wohnfläche ca. | 124 m2 |
| Bezugsfrei ab | Anfang November 2025 |
| Zimmer | 4 |
| Schlafzimmer | 2 |
| Badezimmer | 1 |
| Haustiere | Nach Vereinbarung |
| Garage/Stellplatz | Außenstellplatz |
| Anzahl Garage/Stellplatz | 1 |
Kosten
| Kaltmiete |
1.350 € |
|---|---|
| Nebenkosten | + 350 € |
| Heizkosten | in Nebenkosten enthalten |
| Gesamtmiete | 1.750 € |
| Miete für Garage/Stellplatz | 50 € |
| Kaution o. Genossenschaftsanteile | 2700,00 |
Weiter mieten oder doch kaufen?
Wer in Miete wohnt, überweist dem Vermieter im Laufe der Jahre hohe Summen, die sich
auch in die eigenen vier Wände investieren lassen könnten.
Bausubstanz & Energieausweis
| Baujahr | 1906 |
|---|---|
| Objektzustand | Saniert |
| Qualität der Austattung | Gehoben |
| Heizungsart | Zentralheizung |
| Wesentliche Energieträger | Gas |
| Energieausweis | laut Gesetz nicht erforderlich |
Beschreibung des Objekts
Ausstattung
- 2016 kernsaniert
- Haustechnik ist auf dem neuesten Stand
- teilweise Stuckdecken
- Gas-Zentralheizung
- Videoüberwachter Hauseingang
- neue isolierverglaste Holzfenster
- Eichenparkettboden
- Kabelanschluss in allen Wohnräumen
- Balkon auf der straßenabgewanten Seite des Hauses
- zentrale Lage am Bertholdsplatz
- ca. 5 Minuten Fußweg zum Augustaplatz
- keine Hanglage
Lage
Die angebotene Mietwohnung befindet sich in zentraler Lage am Bertholdsplatz in Baden-Baden. In unmittelbarer Nähe finden sich diverse Einkaufsmöglichkeiten, Restaurants und Cafés, die zum Verweilen einladen. Die Anbindung an den öffentlichen Nahverkehr ist sehr gut, sodass auch ohne Auto eine problemlose Mobilität gewährleistet ist. Zudem sind diverse Freizeit- und Erholungsmöglichkeiten wie Parks und Grünflächen in der Nähe vorhanden. Die Lage der Wohnung am Bertholdsplatz ermöglicht somit ein angenehmes und komfortables Wohnen in einer attraktiven Umgebung.
Sonstige Angaben
Kontaktieren Sie uns gerne für weitere Informationen oder um einen Besichtigungstermin zu vereinbaren.
Grundriss
Grundriss
>
>
Wohnflächenberechnung
>
>
Adresse
76530 Baden-Baden
Interessante Orte
Preis- und Lageinformationen
Preistrend für Bestandsimmobilien in Innenstadt