Erleben Sie modernen Wohnkomfort in dieser exklusiven Penthouse-Wohnung mit lichtdurchfluteten Räumen und hochwertigem Parkett in allen Wohn- und Schlafbereichen. Die offene Küche besticht durch eine komplett neue, stilvolle Einbauküche und sorgt für ein angenehmes Wohnambiente. Zwei großzügig geschnittene Schlafzimmer bieten viel Freiraum – eines davon eröffnet Ihnen den direkten Zugang zur sonnigen Dachterrasse, die das Wohnerlebnis perfekt abrundet. Das elegante Bad ist mit Badewanne und WC ausgestattet; ein zusätzliches Gästebad mit Dusche sorgt für noch mehr Flexibilität. Ein eigener Waschmaschinenanschluss sowie ein großzügiger Tiefgaragenplatz runden das Angebot ab.
Auf dem ehemaligen Kindersolbad-Gelände in Bad-Friedrichshall-Jagstfeld erwarten Sie im „salt & river“ 12 Mehrfamilienhäuser mit 195 hochwertigen Neubau-Wohnungen. Die 1- bis 5-Zimmerwohnungen bieten für Singles, Paare und Familien das passende Zuhause.
Die Ausstattung der Wohnungen lässt keine Wünsche offen: Eichenparkettboden mit Fußbodenheizung, dreifachverglaste Schallschutzfenster, hochwertige und vollständig ausgestattete Einbauküchen mit Markengeräten, Malervlies als Wandverkleidung, modern geflieste Bäder mit Markenarmaturen, Gegensprechanlage mit Videofunktion, Breitbandkabelanschluss in allen Räumen und viele Annehmlichkeiten mehr. Die meisten Wohnungen verfügen über einen Außenbereich in Form einer Terrasse, eines Balkons oder einer Dachterrasse. Jedes Haus verfügt über eine moderne Aufzugsanlage, über welche Sie bequem Ihre gewünschte Etage erreichen können. Ein Hausmeisterservice kümmert sich liebevoll um die Pflege und Instandhaltung des Objektes und der Außenanlagen.
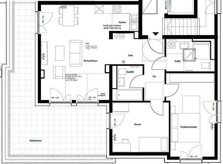
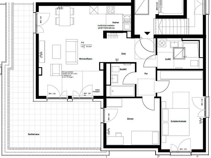
Perfektes Wohngefühl auf 3 Zimmern, 106m², zwei Bädern und Dachterrasse *Erstbezug*!
Salinenstraße 4/4,
74177 Bad Friedrichshall
Auf Karte anzeigen
Infos
| Wohnungskategorie | Penthouse |
|---|---|
| Etage | 4 von |
| Wohnfläche ca. | 106 m2 |
| Bezugsfrei ab | 01.01.2026 |
| Zimmer | 3 |
| Anzahl Garage/Stellplatz | 1 |
Kosten
| Kaltmiete |
1.482 € |
|---|---|
| Nebenkosten | + 213 € |
| Heizkosten | + 134.18 € |
| Gesamtmiete | 1.900 € (zzgl. Heizkosten) |
| Miete für Garage/Stellplatz | 70 € |
| Kaution o. Genossenschaftsanteile | 4440.00 |
Weiter mieten oder doch kaufen?
Wer in Miete wohnt, überweist dem Vermieter im Laufe der Jahre hohe Summen, die sich
auch in die eigenen vier Wände investieren lassen könnten.
Bausubstanz & Energieausweis
| Baujahr | 2023 |
|---|---|
| Objektzustand | Erstbezug |
| Heizungsart | Fernwärme |
| Wesentliche Energieträger | Fernwärme |
| Energieausweistyp | Bedarfsausweis |
| Energieverbrauchskennwert | 50,9 kWh/(m²*a) |
| Energieeffizienzklasse | B |
50,9
kWh/(m²*a)
Energieeffizienzklasse B
- A+
- A
- B
- C
- D
- E
- F
- G
- H
- 0
- 25
- 50
- 75
- 100
- 125
- 150
- 175
- 200
- 225
- >250
Beschreibung des Objekts
Ausstattung
Aufzug, Duschbad, Einbauküche, Erstbezug, Gäste-WC, Hausmeister, Kabel-TV, Keller, Klingel mit Sprechanlage, Parkett, Stellplatz, Terrasse, Vollbad, Waschmaschinenanschluss, Wohnküche,
Lage
Leben am Wasser in einer sympathischen Stadt - Herzlich willkommen in der Drei-Flüsse-Salzstadt Bad Friedrichshall.
Bad Friedrichshall kann ohne Übertreibung behaupten, die einzige Drei-Flüsse-Salzstadt in Deutschland zu sein. In der Stadt münden der Kocher und die Jagst in den Neckar und machen die Drei-Flüsse-Landschaft ebenso einzigartig, wie das einzige besuchbare Salzbergwerk Baden-Württembergs. Durch herrliche Radtouren und schöne Wanderwege, Segway-, Inliner- und Kanutouren entlang Kocher, Jagst und Neckar besitzt unsere Stadt einen hohen Erholungswert und bietet noch echte Naturerlebnisse und reizvolle Landschaften.
In Bad Friedrichshall lässt besonders der Neckar mit einer breiten Aue Platz fürs Wirtschaftsleben, Handel, Dienstleistung, Gewerbe und Industrie in der Drei-Flüsse-Salzstadt weisen ein beeindruckendes Spektrum auf. Hier ist von der international tätigen Firma bis zum Kleinunternehmer alles zuhause.
Der Bahnknotenpunkt Hauptbahnhof Bad Friedrichshall ist Knotenpunkt der Strecken Stuttgart-Würzburg und Stuttgart-Heidelberg/Frankfurt.
Die Autobahnen A6 und A81 schaffen günstige Verbindungen nach Heilbronn, Stuttgart, Würzburg, Karlsruhe, Mannheim und Nürnberg.
Grundriss
9
>
>
Adresse
Salinenstraße 4/4, 74177 Bad Friedrichshall
Interessante Orte
Preis- und Lageinformationen
Preistrend für Bestandsimmobilien in Bad Friedrichshall